Account: R0502101

April 1, 2026

Account Parcel Account Type Tax Year Buildings Actual Value Local Govt Assessed Value School Assessed Value
R0502101 147136031006 Residential 2026 1 426,124 26,630 30,040

Legal
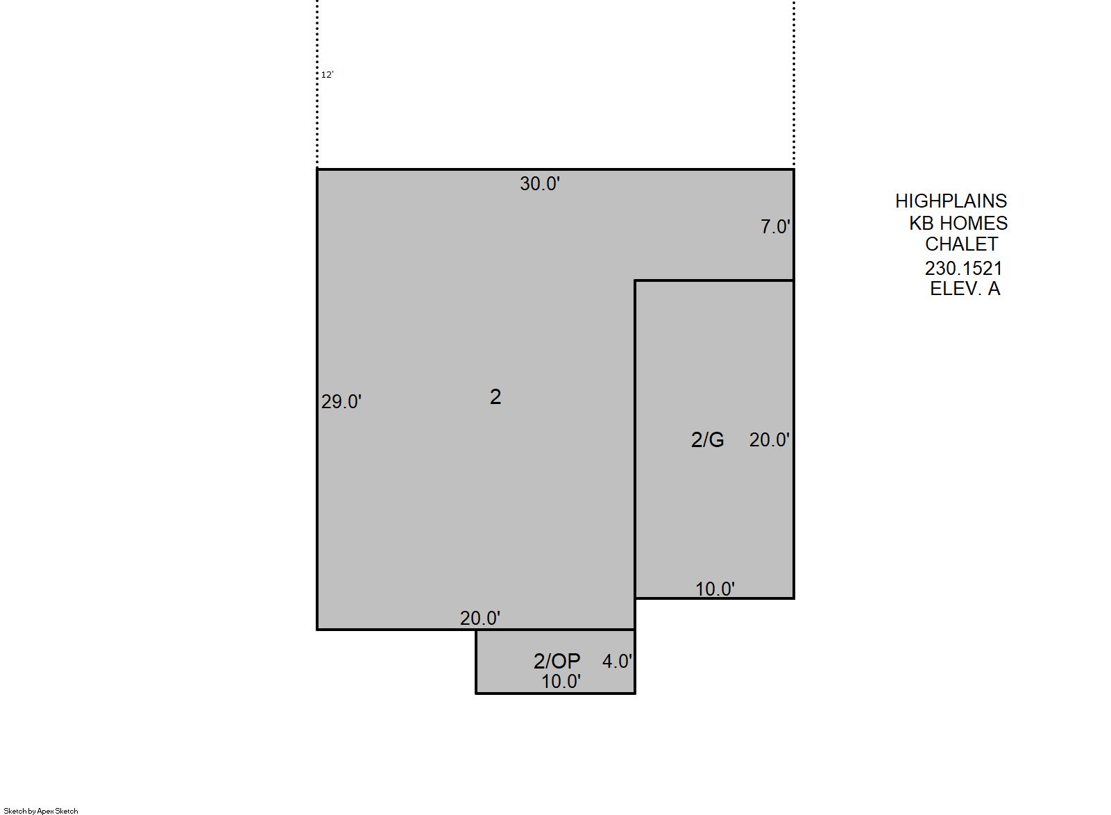
LOC 3HP L6 BLK29 HIGHPLAINS FG #3

Subdivision Block Lot Land Economic Area
HIGHPLAINS FG#3 29 6 HIGHPLAINS

Property Address Property City Section Township Range
838 WILLOW DR LOCHBUIE 36 01 66




Account Parcel Account Type Tax Year Buildings Actual Value Local Govt Assessed Value School Assessed Value
R0502101 147136031006 Residential 2026 1 426,124 26,630 30,040

Account Owner Name Address
R0502101 2019-1 IH BORROWER LP PO BOX 4900 SCOTTSDALE, AZ 852614900


Account Parcel Account Type Tax Year Buildings Actual Value Local Govt Assessed Value School Assessed Value
R0502101 147136031006 Residential 2026 1 426,124 26,630 30,040

Reception Rec Date Type Grantor Grantee Doc Fee Sale Date Sale Price
2805351 NA SUB SUBDIVISION HIGHPLAINS FG #3 0.00 NA 0
2847549 05-10-2001 SWD WELD AND THIRD ASSOCIATES, LLP GALAXY LAND COMPANY, LLC 154.46 05-01-2001 1,544,544
3045566 03-26-2003 SWD GALAXY LAND COMPANY LLC KB HOME COLORADO INC 1,117.20 03-03-2003 11,172,000
3345351 12-07-2005 WD KB HOME COLORADO INC MCCARTY KRISTOPHER P & 19.15 11-30-2005 191,500
4079617 01-29-2015 WD FALBO PATRICIA L; MCCARTY KRISTOPHER P INVERCLYDE LLC 22.00 01-29-2015 220,000
4251241 11-04-2016 SWDN INVERCLYDE LLC CSH 2016 2 BORROWER LLC 0.00 10-28-2016 0
4499523 06-21-2019 SWDN CSH 2016 2 BORROWER LLC 2019-1 IH BORROWER LP 0.00 06-07-2019 0



Account Parcel Account Type Tax Year Buildings Actual Value Local Govt Assessed Value School Assessed Value
R0502101 147136031006 Residential 2026 1 426,124 26,630 30,040

Building 1

AccountNo Building ID Occupancy
R0502101 1 Single Family Residential


ID Type NBHD Occupancy % Complete Bedrooms Baths
1 Residential 4L0002 Single Family Residential 100 4 3.00


ID Exterior Roof Cover Interior HVAC Perimeter Units Unit Type Make
1 Frame Hardboard Composition Shingle Drywall Central Air to Air 244 0 NA NA


ID Square Ft Condo SF Total Basement SF Finished Basement SF Garage SF Carport SF Balcony SF Porch SF
1 1,540 0 0 0 200 0 0 360


Built As Details for Building 1
ID Built As Square Ft Year Built Stories Length Width
1.00 2 Story 1,540 2005 2 0 0


Additional Details for Building 1
ID Detail Type Description Units
1 Fixture Full Bath 2.00
1 Fixture Half Bath 1.00
1 Garage Built In 200.00
1 Porch Open Slab 360.00
1 Porch Slab Roof Ceil 40.00





Account Parcel Account Type Tax Year Buildings Actual Value Local Govt Assessed Value School Assessed Value
R0502101 147136031006 Residential 2026 1 426,124 26,630 30,040

Type Code Description Actual Value Local Govt Assessed Value School Assessed Value Acres Land SqFt
Improvement 1212 SINGLE FAMILY RESIDENTIAL IMPROVEMENTS 326,124 20,380 22,990 0.000 0
Land 1112 SINGLE FAMILY RESIDENTIAL-LAND 100,000 6,250 7,050 0.128 5,584
Totals - - 426,124 26,630 30,040 0.128 5,584


Account Parcel Account Type Tax Year Buildings Actual Value Local Govt Assessed Value School Assessed Value
R0502101 147136031006 Residential 2026 1 426,124 26,630 30,040

Tax Area District ID District Name Local Govt
Mill Levy
School
Mill Levy
Estimated
Taxes
0318 0700 AIMS JUNIOR COLLEGE 6.313 0.000 $168.12
0318 0302 CENTRAL COLORADO WATER (CCW) 0.980 0.000 $26.10
0318 0309 CENTRAL COLORADO WATER SUBDISTRICT (CCS) 1.462 0.000 $38.93
0318 1050 HIGH PLAINS LIBRARY 3.044 0.000 $81.06
0318 0509 HUDSON FIRE 12.237 0.000 $325.87
0318 0419 LOCHBUIE TOWN 6.443 0.000 $171.58
0318 0203 SCHOOL DIST RE3J-KEENESBURG 0.000 15.822 $475.29
0318 0100 WELD COUNTY 15.956 0.000 $424.91
Total - - 46.435 15.822 $1,711.86


The estimate of tax is based on the prior year mill levy and the 2025 projected assessment rates. Mill levies and tax estimates will be updated yearly on December 22nd for the current year. Additional information can be found at https://assessor.weld.gov










Select Reports to Print: