Account: R0502401

April 1, 2026

Account Parcel Account Type Tax Year Buildings Actual Value Local Govt Assessed Value School Assessed Value
R0502401 147136031009 Residential 2026 1 405,658 25,350 28,600

Legal
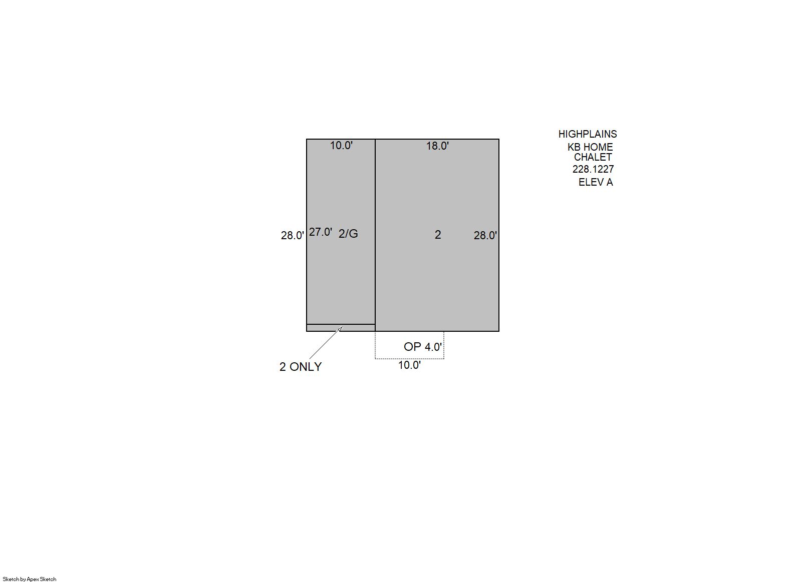
LOC 3HP L9 BLK29 HIGHPLAINS FG #3

Subdivision Block Lot Land Economic Area
HIGHPLAINS FG#3 29 9 HIGHPLAINS

Property Address Property City Section Township Range
846 WILLOW DR LOCHBUIE 36 01 66




Account Parcel Account Type Tax Year Buildings Actual Value Local Govt Assessed Value School Assessed Value
R0502401 147136031009 Residential 2026 1 405,658 25,350 28,600

Account Owner Name Address
R0502401 DURIGAN KATHLEEN 846 WILLOW DR LOCHBUIE, CO 806037742


Account Parcel Account Type Tax Year Buildings Actual Value Local Govt Assessed Value School Assessed Value
R0502401 147136031009 Residential 2026 1 405,658 25,350 28,600

Reception Rec Date Type Grantor Grantee Doc Fee Sale Date Sale Price
2805351 NA SUB SUBDIVISION HIGHPLAINS FG #3 0.00 NA 0
2847549 05-10-2001 SWD WELD AND THIRD ASSOCIATES, LLP GALAXY LAND COMPANY, LLC 154.46 05-01-2001 1,544,544
3045566 03-26-2003 SWD GALAXY LAND COMPANY LLC KB HOME COLORADO INC 1,117.20 03-03-2003 11,172,000
3429540 10-24-2006 WD KB HOME COLORADO INC WHITCHURCH THOMAS E & 14.12 09-29-2006 141,200
3842216 05-01-2012 PTD WHITCHURCH THOMAS E CWALT INC ALTERNATIVE LOAN TRUST 0.00 04-30-2012 0
3886853 11-07-2012 SWD BANK NEW YORK MELLONS LEACH CHRISTOPHER 11.10 10-30-2012 111,000
4185982 03-07-2016 WD LEACH CHRISTOPHER EASTON ROBERT; EASTON ASHLEY 23.60 03-04-2016 236,000
4725614 06-14-2021 SWD EASTON ROBERT; EASTON ASHLEY DURIGAN KATHLEEN 37.60 06-03-2021 376,000



Account Parcel Account Type Tax Year Buildings Actual Value Local Govt Assessed Value School Assessed Value
R0502401 147136031009 Residential 2026 1 405,658 25,350 28,600

Building 1

AccountNo Building ID Occupancy
R0502401 1 Single Family Residential


ID Type NBHD Occupancy % Complete Bedrooms Baths
1 Residential 4L0002 Single Family Residential 100 3 1.00


ID Exterior Roof Cover Interior HVAC Perimeter Units Unit Type Make
1 Frame Hardboard Composition Shingle Drywall Central Air to Air 204 0 NA NA


ID Square Ft Condo SF Total Basement SF Finished Basement SF Garage SF Carport SF Balcony SF Porch SF
1 1,288 0 0 0 270 0 0 40


Built As Details for Building 1
ID Built As Square Ft Year Built Stories Length Width
1.00 2 Story 1,288 2006 2 0 0


Additional Details for Building 1
ID Detail Type Description Units
1 Fixture Full Bath 1.00
1 Garage Attached 270.00
1 Porch Slab Roof Ceil 40.00





Account Parcel Account Type Tax Year Buildings Actual Value Local Govt Assessed Value School Assessed Value
R0502401 147136031009 Residential 2026 1 405,658 25,350 28,600

Type Code Description Actual Value Local Govt Assessed Value School Assessed Value Acres Land SqFt
Improvement 1212 SINGLE FAMILY RESIDENTIAL IMPROVEMENTS 305,658 19,100 21,550 0.000 0
Land 1112 SINGLE FAMILY RESIDENTIAL-LAND 100,000 6,250 7,050 0.139 6,051
Totals - - 405,658 25,350 28,600 0.139 6,051


Account Parcel Account Type Tax Year Buildings Actual Value Local Govt Assessed Value School Assessed Value
R0502401 147136031009 Residential 2026 1 405,658 25,350 28,600

Tax Area District ID District Name Local Govt
Mill Levy
School
Mill Levy
Estimated
Taxes
0318 0700 AIMS JUNIOR COLLEGE 6.313 0.000 $160.03
0318 0302 CENTRAL COLORADO WATER (CCW) 0.980 0.000 $24.84
0318 0309 CENTRAL COLORADO WATER SUBDISTRICT (CCS) 1.462 0.000 $37.06
0318 1050 HIGH PLAINS LIBRARY 3.044 0.000 $77.17
0318 0509 HUDSON FIRE 12.237 0.000 $310.21
0318 0419 LOCHBUIE TOWN 6.443 0.000 $163.33
0318 0203 SCHOOL DIST RE3J-KEENESBURG 0.000 15.822 $452.51
0318 0100 WELD COUNTY 15.956 0.000 $404.48
Total - - 46.435 15.822 $1,629.64


The estimate of tax is based on the prior year mill levy and the 2025 projected assessment rates. Mill levies and tax estimates will be updated yearly on December 22nd for the current year. Additional information can be found at https://assessor.weld.gov










Select Reports to Print: