Account: R0502801

April 1, 2026

Account Parcel Account Type Tax Year Buildings Actual Value Local Govt Assessed Value School Assessed Value
R0502801 147136031013 Residential 2026 1 433,320 27,080 30,550

Legal
LOC 3HP L13 BLK29 HIGHPLAINS FG #3

Subdivision Block Lot Land Economic Area
HIGHPLAINS FG#3 29 13 HIGHPLAINS

Property Address Property City Section Township Range
854 WILLOW DR LOCHBUIE 36 01 66




Account Parcel Account Type Tax Year Buildings Actual Value Local Govt Assessed Value School Assessed Value
R0502801 147136031013 Residential 2026 1 433,320 27,080 30,550

Account Owner Name Address
R0502801 SPILLERS TONJA 854 WILLOW DR LOCHBUIE, CO 806037742


Account Parcel Account Type Tax Year Buildings Actual Value Local Govt Assessed Value School Assessed Value
R0502801 147136031013 Residential 2026 1 433,320 27,080 30,550

Reception Rec Date Type Grantor Grantee Doc Fee Sale Date Sale Price
2805351 NA SUB SUBDIVISION HIGHPLAINS FG #3 0.00 NA 0
2847549 05-10-2001 SWD WELD AND THIRD ASSOCIATES, LLP GALAXY LAND COMPANY, LLC 154.46 05-01-2001 1,544,544
3045566 03-26-2003 SWD GALAXY LAND COMPANY LLC KB HOME COLORADO INC 1,117.20 03-03-2003 11,172,000
3526740 01-02-2008 WD KB HOME COLORADO INC SPILLERS TONJA 14.92 11-09-2007 149,200



Account Parcel Account Type Tax Year Buildings Actual Value Local Govt Assessed Value School Assessed Value
R0502801 147136031013 Residential 2026 1 433,320 27,080 30,550

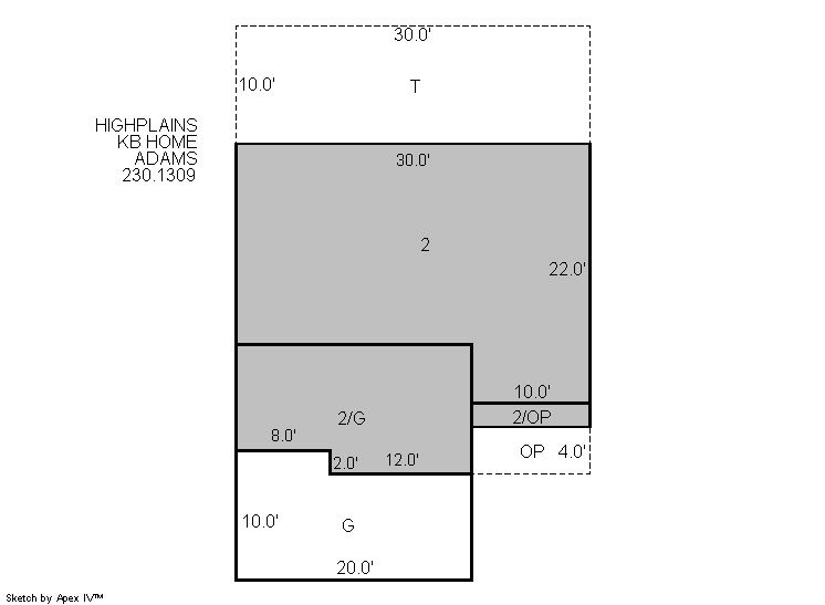
Building 1

AccountNo Building ID Occupancy
R0502801 1 Single Family Residential


ID Type NBHD Occupancy % Complete Bedrooms Baths
1 Residential 4L0002 Single Family Residential 100 3 3.00


ID Exterior Roof Cover Interior HVAC Perimeter Units Unit Type Make
1 Frame Hardboard Composition Shingle Drywall Central Air to Air 0 0 NA NA


ID Square Ft Condo SF Total Basement SF Finished Basement SF Garage SF Carport SF Balcony SF Porch SF
1 1,344 0 0 0 400 0 0 60


Built As Details for Building 1
ID Built As Square Ft Year Built Stories Length Width
1.00 2 Story 1,344 2007 2 0 0


Additional Details for Building 1
ID Detail Type Description Units
1 Fixture Full Bath 2.00
1 Fixture Half Bath 1.00
1 Garage Attached 400.00
1 Porch Open Slab 300.00
1 Porch Slab Roof Ceil 60.00





Account Parcel Account Type Tax Year Buildings Actual Value Local Govt Assessed Value School Assessed Value
R0502801 147136031013 Residential 2026 1 433,320 27,080 30,550

Type Code Description Actual Value Local Govt Assessed Value School Assessed Value Acres Land SqFt
Improvement 1212 SINGLE FAMILY RESIDENTIAL IMPROVEMENTS 333,320 20,830 23,500 0.000 0
Land 1112 SINGLE FAMILY RESIDENTIAL-LAND 100,000 6,250 7,050 0.115 4,993
Totals - - 433,320 27,080 30,550 0.115 4,993


Account Parcel Account Type Tax Year Buildings Actual Value Local Govt Assessed Value School Assessed Value
R0502801 147136031013 Residential 2026 1 433,320 27,080 30,550

Tax Area District ID District Name Local Govt
Mill Levy
School
Mill Levy
Estimated
Taxes
0318 0700 AIMS JUNIOR COLLEGE 6.313 0.000 $170.96
0318 0302 CENTRAL COLORADO WATER (CCW) 0.980 0.000 $26.54
0318 0309 CENTRAL COLORADO WATER SUBDISTRICT (CCS) 1.462 0.000 $39.59
0318 1050 HIGH PLAINS LIBRARY 3.044 0.000 $82.43
0318 0509 HUDSON FIRE 12.237 0.000 $331.38
0318 0419 LOCHBUIE TOWN 6.443 0.000 $174.48
0318 0203 SCHOOL DIST RE3J-KEENESBURG 0.000 15.822 $483.36
0318 0100 WELD COUNTY 15.956 0.000 $432.09
Total - - 46.435 15.822 $1,740.82


The estimate of tax is based on the prior year mill levy and the 2025 projected assessment rates. Mill levies and tax estimates will be updated yearly on December 22nd for the current year. Additional information can be found at https://assessor.weld.gov










Select Reports to Print: