Account: R0508201

April 1, 2026

Account Parcel Account Type Tax Year Buildings Actual Value Local Govt Assessed Value School Assessed Value
R0508201 147136032023 Residential 2026 1 475,440 29,720 33,520

Legal
LOC 3HP L23 BLK30 HIGHPLAINS FG #3

Subdivision Block Lot Land Economic Area
HIGHPLAINS FG#3 30 23 HIGHPLAINS

Property Address Property City Section Township Range
845 WILLOW DR LOCHBUIE 36 01 66




Account Parcel Account Type Tax Year Buildings Actual Value Local Govt Assessed Value School Assessed Value
R0508201 147136032023 Residential 2026 1 475,440 29,720 33,520

Account Owner Name Address
R0508201 ARMSTRONG AUBREY 845 WILLOW DR LOCHBUIE, CO 806037743
R0508201 ARMSTRONG TREVER


Account Parcel Account Type Tax Year Buildings Actual Value Local Govt Assessed Value School Assessed Value
R0508201 147136032023 Residential 2026 1 475,440 29,720 33,520

Reception Rec Date Type Grantor Grantee Doc Fee Sale Date Sale Price
2805351 NA SUB SUBDIVISION HIGHPLAINS FG #3 0.00 NA 0
2847549 05-10-2001 SWD WELD AND THIRD ASSOCIATES, LLP GALAXY LAND COMPANY, LLC 154.46 05-01-2001 1,544,544
3045566 03-26-2003 SWD GALAXY LAND COMPANY LLC KB HOME COLORADO INC 1,117.20 03-03-2003 11,172,000
3611538 03-18-2009 WD KB HOME COLORADO INC MARTINEZ TINA J 16.10 02-26-2009 161,000
4072180 12-31-2014 QCN MARTINEZ TINA J MARTINEZ LISA M; MARTINEZ CATHERINE J 0.00 12-18-2014 0
4192047 03-31-2016 WD MARTINEZ CATHERINE J; MARTINEZ LISA M KRAFT BRITNY; DIXON ZACKARY 27.50 03-28-2016 275,000
4342608 10-09-2017 WD KRAFT BRITNY; DIXON ZACKARY KESLER WILLIAM DWIGHT 32.00 08-31-2017 320,000
4537901 11-04-2019 WD KESLER WILLIAM DWIGHT ARMSTRONG AUBREY; ARMSTRONG TREVER 37.00 10-31-2019 370,000



Account Parcel Account Type Tax Year Buildings Actual Value Local Govt Assessed Value School Assessed Value
R0508201 147136032023 Residential 2026 1 475,440 29,720 33,520

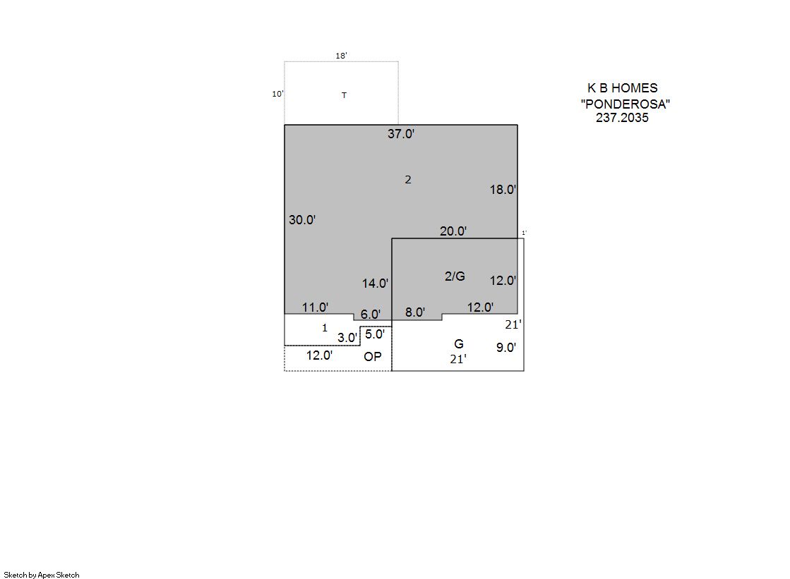
Building 1

AccountNo Building ID Occupancy
R0508201 1 Single Family Residential


ID Type NBHD Occupancy % Complete Bedrooms Baths
1 Residential 4L0002 Single Family Residential 100 4 3.00


ID Exterior Roof Cover Interior HVAC Perimeter Units Unit Type Make
1 Frame Hardboard Composition Shingle Drywall Central Air to Air 280 0 NA NA


ID Square Ft Condo SF Total Basement SF Finished Basement SF Garage SF Carport SF Balcony SF Porch SF
1 2,064 0 0 0 441 0 0 83


Built As Details for Building 1
ID Built As Square Ft Year Built Stories Length Width
1.00 2 Story 2,064 2008 2 0 0


Additional Details for Building 1
ID Detail Type Description Units
1 Fixture Full Bath 2.00
1 Fixture Half Bath 1.00
1 Garage Attached 441.00
1 Porch Open Slab 180.00
1 Porch Slab Roof Ceil 83.00





Account Parcel Account Type Tax Year Buildings Actual Value Local Govt Assessed Value School Assessed Value
R0508201 147136032023 Residential 2026 1 475,440 29,720 33,520

Type Code Description Actual Value Local Govt Assessed Value School Assessed Value Acres Land SqFt
Improvement 1212 SINGLE FAMILY RESIDENTIAL IMPROVEMENTS 375,440 23,470 26,470 0.000 0
Land 1112 SINGLE FAMILY RESIDENTIAL-LAND 100,000 6,250 7,050 0.168 7,301
Totals - - 475,440 29,720 33,520 0.168 7,301


Account Parcel Account Type Tax Year Buildings Actual Value Local Govt Assessed Value School Assessed Value
R0508201 147136032023 Residential 2026 1 475,440 29,720 33,520

Tax Area District ID District Name Local Govt
Mill Levy
School
Mill Levy
Estimated
Taxes
0318 0700 AIMS JUNIOR COLLEGE 6.313 0.000 $187.62
0318 0302 CENTRAL COLORADO WATER (CCW) 0.980 0.000 $29.13
0318 0309 CENTRAL COLORADO WATER SUBDISTRICT (CCS) 1.462 0.000 $43.45
0318 1050 HIGH PLAINS LIBRARY 3.044 0.000 $90.47
0318 0509 HUDSON FIRE 12.237 0.000 $363.68
0318 0419 LOCHBUIE TOWN 6.443 0.000 $191.49
0318 0203 SCHOOL DIST RE3J-KEENESBURG 0.000 15.822 $530.35
0318 0100 WELD COUNTY 15.956 0.000 $474.21
Total - - 46.435 15.822 $1,910.40


The estimate of tax is based on the prior year mill levy and the 2025 projected assessment rates. Mill levies and tax estimates will be updated yearly on December 22nd for the current year. Additional information can be found at https://assessor.weld.gov










Select Reports to Print: