Account: R0532901

April 5, 2026

Account Parcel Account Type Tax Year Buildings Actual Value Local Govt Assessed Value School Assessed Value
R0532901 095903329004 Residential 2026 1 279,524 17,470 19,710

Legal
GR WPC UNIT 4 BLDG E WEST POINT CONDO

Subdivision Block Lot Land Economic Area
WEST POINT CONDOS SUPP#1 BLDG E 4 WEST POINT CONDOS

Property Address Property City Section Township Range
950 52ND AVENUE CT E-4 GREELEY 03 05 66




Account Parcel Account Type Tax Year Buildings Actual Value Local Govt Assessed Value School Assessed Value
R0532901 095903329004 Residential 2026 1 279,524 17,470 19,710

Account Owner Name Address
R0532901 JOHNSON MARK RUSSELL 950 52ND AVENUE CT APT E-4 GREELEY, CO 806344449
R0532901 JOHNSON ANDREA JO


Account Parcel Account Type Tax Year Buildings Actual Value Local Govt Assessed Value School Assessed Value
R0532901 095903329004 Residential 2026 1 279,524 17,470 19,710

Reception Rec Date Type Grantor Grantee Doc Fee Sale Date Sale Price
2823830 NA SUB SUBDIVISION WEST POINT CONDOS SUPP#1 BLDG E 0.00 NA 0
2858641 06-19-2001 WD WEST POINT VINTAGE LLC SMITH KAMEO L 12.20 06-18-2001 122,000
3195481 07-02-2004 WD SMITH KAMEO L JOHNSON MARK RUSSELL 12.35 06-30-2004 123,500
4786617 12-20-2021 QCN JOHNSON MARK RUSSELL JOHNSON MARK RUSSELL; JOHNSON ANDREA JO 0.00 12-15-2021 0



Account Parcel Account Type Tax Year Buildings Actual Value Local Govt Assessed Value School Assessed Value
R0532901 095903329004 Residential 2026 1 279,524 17,470 19,710

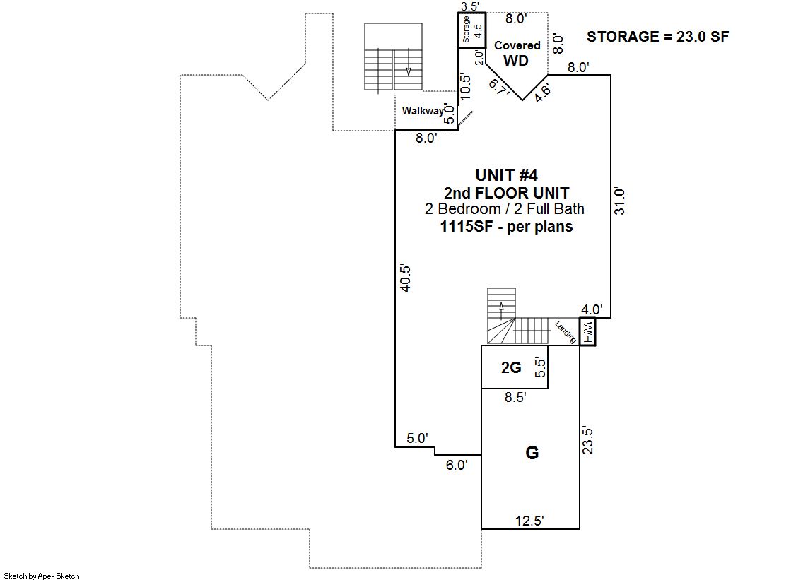
Building 1

AccountNo Building ID Occupancy
R0532901 1 Condominium unit


ID Type NBHD Occupancy % Complete Bedrooms Baths
1 Condo 2G3034 Condominium unit 100 2 2.00


ID Exterior Roof Cover Interior HVAC Perimeter Units Unit Type Make
1 Frame Siding Composition Shingle Drywall Central Air to Air 0 1 End NA


ID Square Ft Condo SF Total Basement SF Finished Basement SF Garage SF Carport SF Balcony SF Porch SF
1 1,077 1,077 0 0 294 0 0 40


Built As Details for Building 1
ID Built As Square Ft Year Built Stories Length Width
1.00 Condo <= 3 Stories 1,077 2000 1 0 0


Additional Details for Building 1
ID Detail Type Description Units
1 Add On Fireplace Gas 1.00
1 Fixture Full Bath 2.00
1 Garage Attached 294.00
1 Porch Cvrd Wood Deck 73.00
1 Porch Slab Roof Ceil 40.00





Account Parcel Account Type Tax Year Buildings Actual Value Local Govt Assessed Value School Assessed Value
R0532901 095903329004 Residential 2026 1 279,524 17,470 19,710

Type Code Description Actual Value Local Govt Assessed Value School Assessed Value Acres Land SqFt
Improvement 1230 CONDOS 279,524 17,470 19,710 0.000 0
Totals - - 279,524 17,470 19,710 0.000 0


Account Parcel Account Type Tax Year Buildings Actual Value Local Govt Assessed Value School Assessed Value
R0532901 095903329004 Residential 2026 1 279,524 17,470 19,710

Tax Area District ID District Name Local Govt
Mill Levy
School
Mill Levy
Estimated
Taxes
0683 0700 AIMS JUNIOR COLLEGE 6.313 0.000 $110.29
0683 0411 GREELEY CITY 11.274 0.000 $196.96
0683 1050 HIGH PLAINS LIBRARY 3.044 0.000 $53.18
0683 0301 NORTHERN COLORADO WATER (NCW) 1.000 0.000 $17.47
0683 0206 SCHOOL DIST 6-GREELEY 0.000 47.615 $938.49
0683 0100 WELD COUNTY 15.956 0.000 $278.75
0683 1200 WEST GREELEY CONSERVATION 0.414 0.000 $7.23
Total - - 38.001 47.615 $1,602.37


The estimate of tax is based on the prior year mill levy and the 2025 projected assessment rates. Mill levies and tax estimates will be updated yearly on December 22nd for the current year. Additional information can be found at https://assessor.weld.gov










Select Reports to Print: