Account: R0542201

April 1, 2026

Account Parcel Account Type Tax Year Buildings Actual Value Local Govt Assessed Value School Assessed Value
R0542201 105910000020 Agricultural 2026 5 645,551 42,800 47,880

Legal
PT SW4 10-4-67 LOT A REC EXEMPT RE-2512 (.43R.44D)

Subdivision Block Lot Land Economic Area
MILLIKEN RURAL

Property Address Property City Section Township Range
9370 COUNTY ROAD 46 1/2 WELD 10 04 67




Account Parcel Account Type Tax Year Buildings Actual Value Local Govt Assessed Value School Assessed Value
R0542201 105910000020 Agricultural 2026 5 645,551 42,800 47,880

Account Owner Name Address
R0542201 MARK R SPAUR REVOCABLE TRUST 9370 COUNTY ROAD 46 1/2 MILLIKEN, CO 805439406
R0542201 ROBIN E SPAUR REVOCABLE TRUST


Account Parcel Account Type Tax Year Buildings Actual Value Local Govt Assessed Value School Assessed Value
R0542201 105910000020 Agricultural 2026 5 645,551 42,800 47,880

Reception Rec Date Type Grantor Grantee Doc Fee Sale Date Sale Price
2772141 06-02-2000 RE RE-2512 RE-2512 0.00 06-02-2000 0
2772141 06-02-2000 RE RECORDED EXEMPTION RE-2512 0.00 NA 0
2945005 04-22-2002 QCN SPAUR MARK R SPAUR MARK R & ROBIN E 0.00 04-16-2002 0
5030124 05-19-2025 BSDN SPAUR ROBIN E; SPAUR MARK R MARK R SPAUR REVOCABLE TRUST; ROBIN E SPAUR REVOCABLE TRUST 0.00 05-02-2025 0



Account Parcel Account Type Tax Year Buildings Actual Value Local Govt Assessed Value School Assessed Value
R0542201 105910000020 Agricultural 2026 5 645,551 42,800 47,880

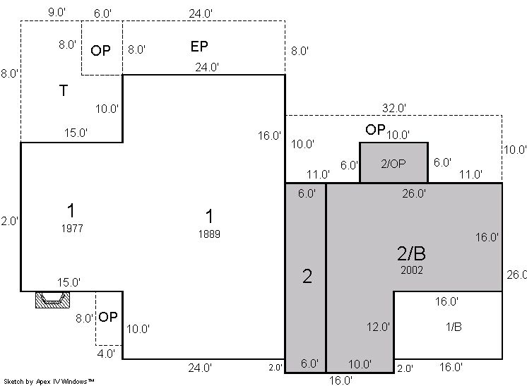
Building 1

AccountNo Building ID Occupancy
R0542201 1 Single Family Residential on Ag


ID Type NBHD Occupancy % Complete Bedrooms Baths
1 Residential 0R1009 Single Family Residential on Ag 100 3 3.00


ID Exterior Roof Cover Interior HVAC Perimeter Units Unit Type Make
1 Frame Stucco Composition Shingle Drywall Central Air to Air 0 0 NA NA


ID Square Ft Condo SF Total Basement SF Finished Basement SF Garage SF Carport SF Balcony SF Porch SF
1 2,966 0 696 0 0 0 0 222


Built As Details for Building 1
ID Built As Square Ft Year Built Stories Length Width
1.00 2 Story 2,966 1889 1 0 0


Additional Details for Building 1
ID Detail Type Description Units
1 Add On Fireplace Wood 1.00
1 Basement Total Basement SF 696.00
1 Fixture Full Bath 2.00
1 Fixture Half Bath 1.00
1 Porch Encl Solid Wall 192.00
1 Porch Open Slab 222.00
1 Porch Slab Roof Ceil 400.00



Building 2

AccountNo Building ID Occupancy
R0542201 2 Barn


ID Type NBHD Occupancy % Complete Bedrooms Baths
2 Out Building NA Barn 100 0 0.00


ID Exterior Roof Cover Interior HVAC Perimeter Units Unit Type Make
2 NA NA NA None 136 0 NA NA


ID Square Ft Condo SF Total Basement SF Finished Basement SF Garage SF Carport SF Balcony SF Porch SF
2 1,012 0 0 0 0 0 0 0


Built As Details for Building 2
ID Built As Square Ft Year Built Stories Length Width
2.00 Barn 1,012 1949 0 46 22

No Additional Details for Building 2




Building 3

AccountNo Building ID Occupancy
R0542201 3 Shed - Utility


ID Type NBHD Occupancy % Complete Bedrooms Baths
3 Out Building NA Shed - Utility 100 0 0.00


ID Exterior Roof Cover Interior HVAC Perimeter Units Unit Type Make
3 NA NA NA None 116 0 NA NA


ID Square Ft Condo SF Total Basement SF Finished Basement SF Garage SF Carport SF Balcony SF Porch SF
3 832 0 0 0 0 0 0 0


Built As Details for Building 3
ID Built As Square Ft Year Built Stories Length Width
3.00 Shed - Utility 832 1932 1 32 26

No Additional Details for Building 3




Building 4

AccountNo Building ID Occupancy
R0542201 4 Shed - Cattle


ID Type NBHD Occupancy % Complete Bedrooms Baths
4 Out Building NA Shed - Cattle 100 0 0.00


ID Exterior Roof Cover Interior HVAC Perimeter Units Unit Type Make
4 NA NA NA None 60 0 NA NA


ID Square Ft Condo SF Total Basement SF Finished Basement SF Garage SF Carport SF Balcony SF Porch SF
4 400 0 0 0 0 0 0 0


Built As Details for Building 4
ID Built As Square Ft Year Built Stories Length Width
4.00 Shed - Cattle 400 1947 1 40 10

No Additional Details for Building 4




Building 5

AccountNo Building ID Occupancy
R0542201 5 Shed - Utility


ID Type NBHD Occupancy % Complete Bedrooms Baths
5 Out Building NA Shed - Utility 100 0 0.00


ID Exterior Roof Cover Interior HVAC Perimeter Units Unit Type Make
5 NA NA NA None 180 0 NA NA


ID Square Ft Condo SF Total Basement SF Finished Basement SF Garage SF Carport SF Balcony SF Porch SF
5 1,664 0 0 0 0 0 0 0


Built As Details for Building 5
ID Built As Square Ft Year Built Stories Length Width
5.00 Shed - Utility 1,664 1947 1 64 26

No Additional Details for Building 5






Account Parcel Account Type Tax Year Buildings Actual Value Local Govt Assessed Value School Assessed Value
R0542201 105910000020 Agricultural 2026 5 645,551 42,800 47,880

Type Code Description Actual Value Local Govt Assessed Value School Assessed Value Acres Land SqFt
Improvement 4277 FARM/RANCH RESIDENCE-IMPS 633,672 39,600 44,680 0.000 0
Improvement 4279 FARM RANCH SUPPORT BLDGS 8,197 2,210 2,210 0.000 0
Land 4117 FLOOD IRRIGATED LAND-AGRICULTURAL 3,682 990 990 4.280 186,437
Totals - - 645,551 42,800 47,880 4.280 186,437


Account Parcel Account Type Tax Year Buildings Actual Value Local Govt Assessed Value School Assessed Value
R0542201 105910000020 Agricultural 2026 5 645,551 42,800 47,880

Tax Area District ID District Name Local Govt
Mill Levy
School
Mill Levy
Estimated
Taxes
0556 0700 AIMS JUNIOR COLLEGE 6.313 0.000 $270.20
0556 0510 FRONT RANGE FIRE RESCUE FIRE PROTECTION DISTRICT 11.483 0.000 $491.47
0556 1050 HIGH PLAINS LIBRARY 3.044 0.000 $130.28
0556 0306 LITTLE THOMPSON WATER (LTW) 0.000 0.000 $0.00
0556 0301 NORTHERN COLORADO WATER (NCW) 1.000 0.000 $42.80
0556 0205 SCHOOL DIST RE5J-JOHNSTOWN 0.000 36.271 $1,736.66
0556 0901 THOMPSON RIVER REC 3.594 0.000 $153.82
0556 0100 WELD COUNTY 15.956 0.000 $682.92
0556 1200 WEST GREELEY CONSERVATION 0.414 0.000 $17.72
Total - - 41.804 36.271 $3,525.87


The estimate of tax is based on the prior year mill levy and the 2025 projected assessment rates. Mill levies and tax estimates will be updated yearly on December 22nd for the current year. Additional information can be found at https://assessor.weld.gov










Select Reports to Print: