Account: R0551001
April 5, 2026
| Account | Parcel | Account Type | Tax Year | Buildings | Actual Value | Local Govt Assessed Value | School Assessed Value |
|---|---|---|---|---|---|---|---|
| R0551001 | 080134000055 | Agricultural | 2026 | 2 | 601,644 | 51,330 | 55,610 |
| Legal |
|---|
| PT N2NW4 34-6-64 LOT A REC EXEMPT RE-2925 (.34R) |
| Subdivision | Block | Lot | Land Economic Area |
|---|---|---|---|
| GILL/ GALETON RURAL |
| Property Address | Property City | Section | Township | Range |
|---|---|---|---|---|
| 30894 COUNTY ROAD 55 | WELD | 34 | 06 | 64 |
| Account | Parcel | Account Type | Tax Year | Buildings | Actual Value | Local Govt Assessed Value | School Assessed Value |
|---|---|---|---|---|---|---|---|
| R0551001 | 080134000055 | Agricultural | 2026 | 2 | 601,644 | 51,330 | 55,610 |
| Account | Owner Name | Address |
|---|---|---|
| R0551001 | BALADEZ PHILLIP | PO BOX 200247 EVANS, CO 806200247 |
| Account | Parcel | Account Type | Tax Year | Buildings | Actual Value | Local Govt Assessed Value | School Assessed Value |
|---|---|---|---|---|---|---|---|
| R0551001 | 080134000055 | Agricultural | 2026 | 2 | 601,644 | 51,330 | 55,610 |
| Reception | Rec Date | Type | Grantor | Grantee | Doc Fee | Sale Date | Sale Price |
|---|---|---|---|---|---|---|---|
| 2831388 | 03-09-2001 | RE | RECORDED EXEMPTION | RE-2925 | 0.00 | NA | 0 |
| 2831388 | 03-09-2001 | RE | RE-2925 | RE-2925 | 0.00 | 03-09-2001 | 0 |
| 2841055 | 04-17-2001 | WD | HOWARD FERN A | MORGAN TED L & TERRI R | 20.38 | 04-13-2001 | 203,800 |
| 2841057 | 04-17-2001 | WD | MORGAN TED L & TERRI R | LINDERMAN GARY R & LORI A | 5.55 | 04-13-2001 | 55,500 |
| 4046991 | 09-18-2014 | WD | LINDERMAN LORI A; LINDERMAN GARY R | BALADEZ PHILLIP | 8.50 | 09-23-2014 | 85,000 |
*If the hyperlink for the reception number does not work, try a manual search in the Clerk and Recorder records. Use the Grantor or Grantee in your search.
| Account | Parcel | Account Type | Tax Year | Buildings | Actual Value | Local Govt Assessed Value | School Assessed Value |
|---|---|---|---|---|---|---|---|
| R0551001 | 080134000055 | Agricultural | 2026 | 2 | 601,644 | 51,330 | 55,610 |
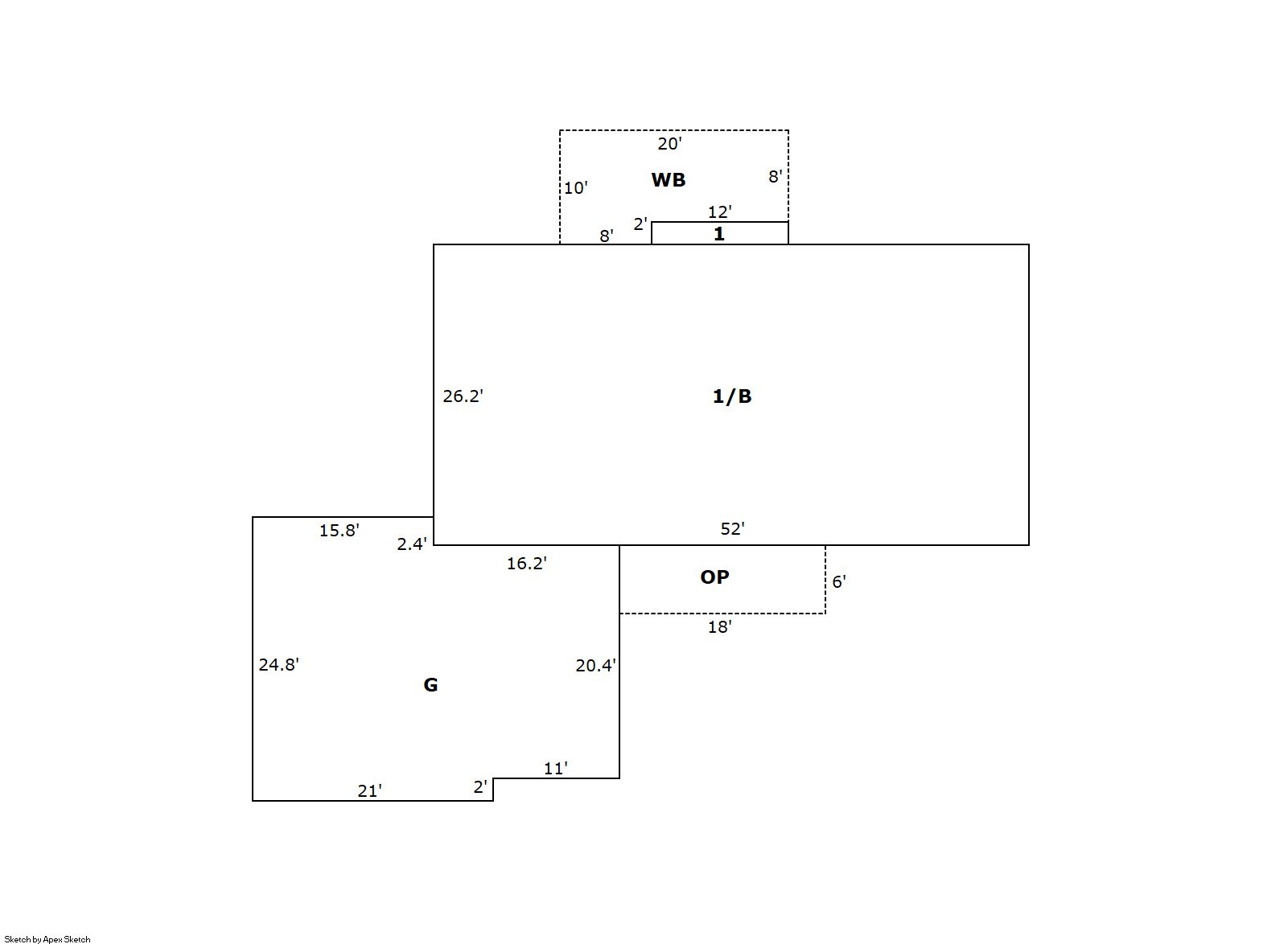
Building 1
| AccountNo | Building ID | Occupancy |
|---|---|---|
| R0551001 | 1 | Single Family Residential on Ag |
| ID | Type | NBHD | Occupancy | % Complete | Bedrooms | Baths |
|---|---|---|---|---|---|---|
| 1 | Residential | 7R0004 | Single Family Residential on Ag | 100 | 4 | 4.00 |
| ID | Exterior | Roof Cover | Interior | HVAC | Perimeter | Units | Unit Type | Make |
|---|---|---|---|---|---|---|---|---|
| 1 | Frame Siding | Composition Shingle | Drywall | Central Air to Air | 160 | 0 | NA | NA |
| ID | Square Ft | Condo SF | Total Basement SF | Finished Basement SF | Garage SF | Carport SF | Balcony SF | Porch SF |
|---|---|---|---|---|---|---|---|---|
| 1 | 1,386 | 0 | 1,362 | 1,362 | 733 | 0 | 176 | 108 |
| ID | Built As | Square Ft | Year Built | Stories | Length | Width |
|---|---|---|---|---|---|---|
| 1.00 | Ranch 1 Story | 1,386 | 2015 | 1 | 0 | 0 |
| ID | Detail Type | Description | Units |
|---|---|---|---|
| 1 | Balcony | Wood Wood Fin | 176.00 |
| 1 | Basement | Finished | 1362.00 |
| 1 | Basement | Total Basement SF | 1362.00 |
| 1 | Fixture | Full Bath | 3.00 |
| 1 | Fixture | Half Bath | 1.00 |
| 1 | Garage | Attached | 733.00 |
| 1 | Porch | Slab Roof Ceil | 108.00 |
Building 2
| AccountNo | Building ID | Occupancy |
|---|---|---|
| R0551001 | 2 | Quonset |
| ID | Type | NBHD | Occupancy | % Complete | Bedrooms | Baths |
|---|---|---|---|---|---|---|
| 2 | Out Building | NA | Quonset | 100 | NA | 0.00 |
| ID | Exterior | Roof Cover | Interior | HVAC | Perimeter | Units | Unit Type | Make |
|---|---|---|---|---|---|---|---|---|
| 2 | NA | NA | NA | None | 240 | 0 | NA | NA |
| ID | Square Ft | Condo SF | Total Basement SF | Finished Basement SF | Garage SF | Carport SF | Balcony SF | Porch SF |
|---|---|---|---|---|---|---|---|---|
| 2 | 3,200 | 0 | 0 | 0 | 0 | 0 | 0 | 0 |
| ID | Built As | Square Ft | Year Built | Stories | Length | Width |
|---|---|---|---|---|---|---|
| 2.00 | Quonset | 3,200 | 2016 | 1 | 80 | 40 |
| ID | Detail Type | Description | Units |
|---|---|---|---|
| 2 | Add On | Suspended Heat | 1.00 |
| Account | Parcel | Account Type | Tax Year | Buildings | Actual Value | Local Govt Assessed Value | School Assessed Value |
|---|---|---|---|---|---|---|---|
| R0551001 | 080134000055 | Agricultural | 2026 | 2 | 601,644 | 51,330 | 55,610 |
| Type | Code | Description | Actual Value | Local Govt Assessed Value | School Assessed Value | Acres | Land SqFt |
|---|---|---|---|---|---|---|---|
| Improvement | 4277 | FARM/RANCH RESIDENCE-IMPS | 535,485 | 33,470 | 37,750 | 0.000 | 0 |
| Improvement | 4279 | FARM RANCH SUPPORT BLDGS | 63,333 | 17,100 | 17,100 | 0.000 | 0 |
| Land | 4117 | FLOOD IRRIGATED LAND-AGRICULTURAL | 2,826 | 760 | 760 | 3.160 | 137,650 |
| Totals | - | - | 601,644 | 51,330 | 55,610 | 3.160 | 137,650 |
Comparable sales for your Residential or Commercial property may be found using our SALES SEARCH TOOL
Values are updated annually on May 1st for Real Property and June 15th for Personal Property and Oil and Gas.
| Account | Parcel | Account Type | Tax Year | Buildings | Actual Value | Local Govt Assessed Value | School Assessed Value |
|---|---|---|---|---|---|---|---|
| R0551001 | 080134000055 | Agricultural | 2026 | 2 | 601,644 | 51,330 | 55,610 |
| Tax Area | District ID | District Name | Local Govt Mill Levy |
School Mill Levy |
Estimated Taxes |
|---|---|---|---|---|---|
| 0743 | 0700 | AIMS JUNIOR COLLEGE | 6.313 | 0.000 | $324.05 |
| 0743 | 1050 | HIGH PLAINS LIBRARY | 3.044 | 0.000 | $156.25 |
| 0743 | 0304 | NORTH WELD COUNTY WATER (NWC) | 0.000 | 0.000 | $0.00 |
| 0743 | 0301 | NORTHERN COLORADO WATER (NCW) | 1.000 | 0.000 | $51.33 |
| 0743 | 0515 | PLATTE VALLEY FIRE | 5.165 | 0.000 | $265.12 |
| 0743 | 0207 | SCHOOL DIST RE7-KERSEY | 0.000 | 11.014 | $612.49 |
| 0743 | 0100 | WELD COUNTY | 15.956 | 0.000 | $819.02 |
| 0743 | 1200 | WEST GREELEY CONSERVATION | 0.414 | 0.000 | $21.25 |
| Total | - | - | 31.892 | 11.014 | $2,249.50 |
The estimate of tax is based on the prior year mill levy and the 2025 projected assessment rates. Mill levies and tax estimates will be updated yearly on December 22nd for the current year. Additional information can be found at https://assessor.weld.gov


