Account: R0596201

April 1, 2026

Account Parcel Account Type Tax Year Buildings Actual Value Local Govt Assessed Value School Assessed Value
R0596201 095925015030 Residential 2026 1 416,659 26,040 29,370

Legal
EVS WB L30 BLK1 WILLOWBROOK

Subdivision Block Lot Land Economic Area
WILLOWBROOK SUB 1 30 WILLOWBROOK

Property Address Property City Section Township Range
2417 DOCK DR EVANS 25 05 66




Account Parcel Account Type Tax Year Buildings Actual Value Local Govt Assessed Value School Assessed Value
R0596201 095925015030 Residential 2026 1 416,659 26,040 29,370

Account Owner Name Address
R0596201 KOSAKEWICH REBECCA C 2417 DOCK DR EVANS, CO 806209582


Account Parcel Account Type Tax Year Buildings Actual Value Local Govt Assessed Value School Assessed Value
R0596201 095925015030 Residential 2026 1 416,659 26,040 29,370

Reception Rec Date Type Grantor Grantee Doc Fee Sale Date Sale Price
2817730 NA SUB SUBDIVISION WILLOWBROOK 0.00 NA 0
2820848 01-23-2001 WD BOEHNER DALE L & DIANNA (JT 25%) & WILLOWBROOK DEVELOPMENT LLC 281.41 01-18-2001 2,814,100
2877855 08-27-2001 WD WILLOWBROOK DEVELOPMENT LLC PIERUCCINI MICHAEL N 81.90 08-23-2001 819,000
3163874 03-23-2004 WD PIERUCCINI MICHAEL N DOMINGUEZ JOSE E JR & 19.39 03-19-2004 193,900
3579572 09-23-2008 PTD WELD CO PUBLIC TRUSTEE SECRETARY OF HOUSING & URBAN DEV 0.00 09-22-2008 0
3596513 12-23-2008 SWD USA HUD TOPPING ROBERT 0.00 12-19-2008 132,000
3830106 03-07-2012 WD TOPPING ROBERT HODGINS CURTIS 15.50 02-29-2012 155,000
3888739 11-15-2012 QCN HODGINS CURTIS HODGINS CURTIS 0.00 11-13-2012 0
3952815 08-02-2013 WDE HODGINS CURTIS FLORES FRANCISCO 17.99 07-31-2013 179,900
4173937 01-19-2016 WD FLORES OLGA P; FLORES FRANCISCO KOSAKEWICH REBECCA C; KOSAKEWICH LUKE W 22.50 01-18-2016 225,000
4779241 11-24-2021 QCN KOSAKEWICH REBECCA C; KOSAKEWICH LUKE W KOSAKEWICH REBECCA C 0.00 11-19-2021 0



Account Parcel Account Type Tax Year Buildings Actual Value Local Govt Assessed Value School Assessed Value
R0596201 095925015030 Residential 2026 1 416,659 26,040 29,370

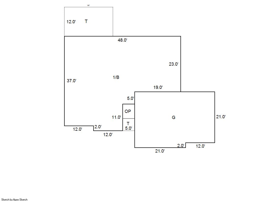
Building 1

AccountNo Building ID Occupancy
R0596201 1 Single Family Residential


ID Type NBHD Occupancy % Complete Bedrooms Baths
1 Residential 6E1062 Single Family Residential 100 3 2.00


ID Exterior Roof Cover Interior HVAC Perimeter Units Unit Type Make
1 Frame Vinyl Composition Roll Drywall Central Air to Air 174 0 NA NA


ID Square Ft Condo SF Total Basement SF Finished Basement SF Garage SF Carport SF Balcony SF Porch SF
1 1,489 0 1,489 0 735 0 0 30


Built As Details for Building 1
ID Built As Square Ft Year Built Stories Length Width
1.00 Ranch 1 Story 1,489 2003 1 0 0


Additional Details for Building 1
ID Detail Type Description Units
1 Add On Fireplace Gas 1.00
1 Basement Total Basement SF 1489.00
1 Fixture Full Bath 2.00
1 Garage Attached 735.00
1 Porch Open Slab 265.00
1 Porch Slab Roof Ceil 30.00
1 Rough In Rough In 1.00





Account Parcel Account Type Tax Year Buildings Actual Value Local Govt Assessed Value School Assessed Value
R0596201 095925015030 Residential 2026 1 416,659 26,040 29,370

Type Code Description Actual Value Local Govt Assessed Value School Assessed Value Acres Land SqFt
Improvement 1212 SINGLE FAMILY RESIDENTIAL IMPROVEMENTS 336,659 21,040 23,730 0.000 0
Land 1112 SINGLE FAMILY RESIDENTIAL-LAND 80,000 5,000 5,640 0.219 9,545
Totals - - 416,659 26,040 29,370 0.219 9,545


Account Parcel Account Type Tax Year Buildings Actual Value Local Govt Assessed Value School Assessed Value
R0596201 095925015030 Residential 2026 1 416,659 26,040 29,370

Tax Area District ID District Name Local Govt
Mill Levy
School
Mill Levy
Estimated
Taxes
0699 0700 AIMS JUNIOR COLLEGE 6.313 0.000 $164.39
0699 0305 CENTRAL WELD COUNTY WATER (CWC) 0.000 0.000 $0.00
0699 0405 EVANS CITY 3.536 0.000 $92.08
0699 0534 EVANS FIRE 15.500 0.000 $403.62
0699 1050 HIGH PLAINS LIBRARY 3.044 0.000 $79.27
0699 0301 NORTHERN COLORADO WATER (NCW) 1.000 0.000 $26.04
0699 0206 SCHOOL DIST 6-GREELEY 0.000 47.615 $1,398.45
0699 0100 WELD COUNTY 15.956 0.000 $415.49
0699 1200 WEST GREELEY CONSERVATION 0.414 0.000 $10.78
Total - - 45.763 47.615 $2,590.12


The estimate of tax is based on the prior year mill levy and the 2025 projected assessment rates. Mill levies and tax estimates will be updated yearly on December 22nd for the current year. Additional information can be found at https://assessor.weld.gov










Select Reports to Print: