Account: R0599601
April 2, 2026
| Account | Parcel | Account Type | Tax Year | Buildings | Actual Value | Local Govt Assessed Value | School Assessed Value |
|---|---|---|---|---|---|---|---|
| R0599601 | 095925015064 | Residential | 2026 | 1 | 369,702 | 23,110 | 26,060 |
| Legal |
|---|
| EVS WB L64 BLK1 WILLOWBROOK |
| Subdivision | Block | Lot | Land Economic Area |
|---|---|---|---|
| WILLOWBROOK SUB | 1 | 64 | WILLOWBROOK |
| Property Address | Property City | Section | Township | Range |
|---|---|---|---|---|
| 2503 MARINA ST | EVANS | 25 | 05 | 66 |
| Account | Parcel | Account Type | Tax Year | Buildings | Actual Value | Local Govt Assessed Value | School Assessed Value |
|---|---|---|---|---|---|---|---|
| R0599601 | 095925015064 | Residential | 2026 | 1 | 369,702 | 23,110 | 26,060 |
| Account | Owner Name | Address |
|---|---|---|
| R0599601 | CARPENTER KATHLEEN A | PO BOX 337554 GREELEY, CO 806330626 |
| Account | Parcel | Account Type | Tax Year | Buildings | Actual Value | Local Govt Assessed Value | School Assessed Value |
|---|---|---|---|---|---|---|---|
| R0599601 | 095925015064 | Residential | 2026 | 1 | 369,702 | 23,110 | 26,060 |
| Reception | Rec Date | Type | Grantor | Grantee | Doc Fee | Sale Date | Sale Price |
|---|---|---|---|---|---|---|---|
| 2817730 | NA | SUB | SUBDIVISION | WILLOWBROOK | 0.00 | NA | 0 |
| 2820848 | 01-23-2001 | WD | BOEHNER DALE L & DIANNA (JT 25%) & | WILLOWBROOK DEVELOPMENT LLC | 281.41 | 01-18-2001 | 2,814,100 |
| 2877107 | 08-23-2001 | WD | WILLOWBROOK DEVELOPMENT LLC | J & J CONSTRUCTION OF NORTHERN COLO LLC | 78.00 | 08-21-2001 | 780,000 |
| 2917533 | 01-17-2002 | WD | J & J CONSTRUCTION | FELLINGER ROBERT J & JANEL J | 14.99 | 01-15-2002 | 149,900 |
| 3150946 | 02-03-2004 | WD | FELLINGER ROBERT J & | RODRIGUEZ ADAN | 16.47 | 01-30-2004 | 164,700 |
| 3426045 | 10-09-2006 | PTD | RODRIGUEZ ADAN | DEUTSCHE BANK TRUST | 0.00 | 10-09-2006 | 0 |
| 3456603 | 02-21-2007 | SWD | DEUTSCHE BANK TRUST | WALLACE RICK L | 13.40 | 02-16-2007 | 134,000 |
| 3481394 | 06-06-2007 | WD | WALLACE RICK L | CARPENTER KATHLEEN A | 13.40 | 06-05-2007 | 134,000 |
*If the hyperlink for the reception number does not work, try a manual search in the Clerk and Recorder records. Use the Grantor or Grantee in your search.
| Account | Parcel | Account Type | Tax Year | Buildings | Actual Value | Local Govt Assessed Value | School Assessed Value |
|---|---|---|---|---|---|---|---|
| R0599601 | 095925015064 | Residential | 2026 | 1 | 369,702 | 23,110 | 26,060 |
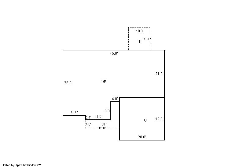
Building 1
| AccountNo | Building ID | Occupancy |
|---|---|---|
| R0599601 | 1 | Single Family Residential |
| ID | Type | NBHD | Occupancy | % Complete | Bedrooms | Baths |
|---|---|---|---|---|---|---|
| 1 | Residential | 6E1062 | Single Family Residential | 100 | 3 | 2.00 |
| ID | Exterior | Roof Cover | Interior | HVAC | Perimeter | Units | Unit Type | Make |
|---|---|---|---|---|---|---|---|---|
| 1 | Frame Hardboard | Composition Shingle | Drywall | Forced Air | 0 | 0 | NA | NA |
| ID | Square Ft | Condo SF | Total Basement SF | Finished Basement SF | Garage SF | Carport SF | Balcony SF | Porch SF |
|---|---|---|---|---|---|---|---|---|
| 1 | 1,143 | 0 | 1,143 | 0 | 380 | 0 | 0 | 92 |
| ID | Built As | Square Ft | Year Built | Stories | Length | Width |
|---|---|---|---|---|---|---|
| 1.00 | Ranch 1 Story | 1,143 | 2001 | 1 | 0 | 0 |
| ID | Detail Type | Description | Units |
|---|---|---|---|
| 1 | Basement | Total Basement SF | 1143.00 |
| 1 | Fixture | Full Bath | 2.00 |
| 1 | Garage | Attached | 380.00 |
| 1 | Porch | Open Slab | 100.00 |
| 1 | Porch | Slab Roof Ceil | 92.00 |
| 1 | Rough In | Rough In | 2.00 |
| Account | Parcel | Account Type | Tax Year | Buildings | Actual Value | Local Govt Assessed Value | School Assessed Value |
|---|---|---|---|---|---|---|---|
| R0599601 | 095925015064 | Residential | 2026 | 1 | 369,702 | 23,110 | 26,060 |
| Type | Code | Description | Actual Value | Local Govt Assessed Value | School Assessed Value | Acres | Land SqFt |
|---|---|---|---|---|---|---|---|
| Improvement | 1212 | SINGLE FAMILY RESIDENTIAL IMPROVEMENTS | 289,702 | 18,110 | 20,420 | 0.000 | 0 |
| Land | 1112 | SINGLE FAMILY RESIDENTIAL-LAND | 80,000 | 5,000 | 5,640 | 0.188 | 8,207 |
| Totals | - | - | 369,702 | 23,110 | 26,060 | 0.188 | 8,207 |
Comparable sales for your Residential or Commercial property may be found using our SALES SEARCH TOOL
Values are updated annually on May 1st for Real Property and June 15th for Personal Property and Oil and Gas.
| Account | Parcel | Account Type | Tax Year | Buildings | Actual Value | Local Govt Assessed Value | School Assessed Value |
|---|---|---|---|---|---|---|---|
| R0599601 | 095925015064 | Residential | 2026 | 1 | 369,702 | 23,110 | 26,060 |
| Tax Area | District ID | District Name | Local Govt Mill Levy |
School Mill Levy |
Estimated Taxes |
|---|---|---|---|---|---|
| 0699 | 0700 | AIMS JUNIOR COLLEGE | 6.313 | 0.000 | $145.89 |
| 0699 | 0305 | CENTRAL WELD COUNTY WATER (CWC) | 0.000 | 0.000 | $0.00 |
| 0699 | 0405 | EVANS CITY | 3.536 | 0.000 | $81.72 |
| 0699 | 0534 | EVANS FIRE | 15.500 | 0.000 | $358.21 |
| 0699 | 1050 | HIGH PLAINS LIBRARY | 3.044 | 0.000 | $70.35 |
| 0699 | 0301 | NORTHERN COLORADO WATER (NCW) | 1.000 | 0.000 | $23.11 |
| 0699 | 0206 | SCHOOL DIST 6-GREELEY | 0.000 | 47.615 | $1,240.85 |
| 0699 | 0100 | WELD COUNTY | 15.956 | 0.000 | $368.74 |
| 0699 | 1200 | WEST GREELEY CONSERVATION | 0.414 | 0.000 | $9.57 |
| Total | - | - | 45.763 | 47.615 | $2,298.43 |
The estimate of tax is based on the prior year mill levy and the 2025 projected assessment rates. Mill levies and tax estimates will be updated yearly on December 22nd for the current year. Additional information can be found at https://assessor.weld.gov



