Account: R0602101

April 1, 2026

Account Parcel Account Type Tax Year Buildings Actual Value Local Govt Assessed Value School Assessed Value
R0602101 095925017004 Residential 2026 1 404,897 25,310 28,550

Legal
EVS WB L4 BLK3 WILLOWBROOK

Subdivision Block Lot Land Economic Area
WILLOWBROOK SUB 3 4 WILLOWBROOK

Property Address Property City Section Township Range
2704 HAVEN CT EVANS 25 05 66




Account Parcel Account Type Tax Year Buildings Actual Value Local Govt Assessed Value School Assessed Value
R0602101 095925017004 Residential 2026 1 404,897 25,310 28,550

Account Owner Name Address
R0602101 VAZQUEZ OCTAVIO 2704 HAVEN CT EVANS, CO 806209590


Account Parcel Account Type Tax Year Buildings Actual Value Local Govt Assessed Value School Assessed Value
R0602101 095925017004 Residential 2026 1 404,897 25,310 28,550

Reception Rec Date Type Grantor Grantee Doc Fee Sale Date Sale Price
2817730 NA SUB SUBDIVISION WILLOWBROOK 0.00 NA 0
2820848 01-23-2001 WD BOEHNER DALE L & DIANNA (JT 25%) & WILLOWBROOK DEVELOPMENT LLC 281.41 01-18-2001 2,814,100
2877860 08-27-2001 WD WILLOWBROOK DEVELOPMENT LLC SCHNEIDER KEVIN 45.60 08-23-2001 456,000
3011465 12-04-2002 WD SCHNEIDER KEVIN SHERMAN HERBERT 16.67 11-26-2002 166,700
3024395 01-16-2003 QCN SHERMAN HERBERT R & S ENTERPRISES LLC 0.00 01-16-2003 0
3102136 09-02-2003 WD R & S ENTERPRISES LLC ROWLEY DANEIL JAMES & 18.50 08-29-2003 185,000
3357151 01-24-2006 QCN ROWLEY DANEIL JAMES & R& S ENTERPRISE LLC & 0.00 01-18-2006 0
3873817 09-17-2012 QCN R&S ENTERPRISE LLC SHERMAN HERBERT 0.00 09-13-2012 0
3912353 02-25-2013 PTD ROWLEY BARBARA J WELLS FARGO BANK N A 0.00 02-22-2013 0
3931181 05-10-2013 SWD WELLS FARGO BANK NATIONAL ASSOCIATION HODGINS CURTIS 13.79 04-29-2013 137,900
4032561 07-22-2014 WD HODGINS CURTIS VAZQUEZ OCTAVIO 19.69 07-18-2014 196,900



Account Parcel Account Type Tax Year Buildings Actual Value Local Govt Assessed Value School Assessed Value
R0602101 095925017004 Residential 2026 1 404,897 25,310 28,550

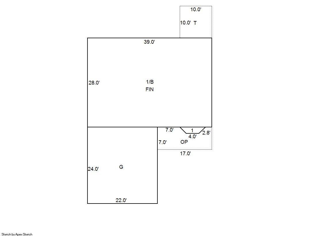
Building 1

AccountNo Building ID Occupancy
R0602101 1 Single Family Residential


ID Type NBHD Occupancy % Complete Bedrooms Baths
1 Residential 6E1062 Single Family Residential 100 5 3.00


ID Exterior Roof Cover Interior HVAC Perimeter Units Unit Type Make
1 Frame Hardboard Composition Shingle Drywall Central Air to Air 136 0 NA NA


ID Square Ft Condo SF Total Basement SF Finished Basement SF Garage SF Carport SF Balcony SF Porch SF
1 1,104 0 1,092 1,092 528 0 0 100


Built As Details for Building 1
ID Built As Square Ft Year Built Stories Length Width
1.00 Ranch 1 Story 1,104 2002 1 0 0


Additional Details for Building 1
ID Detail Type Description Units
1 Basement Finished 1092.00
1 Basement Total Basement SF 1092.00
1 Fixture Full Bath 3.00
1 Garage Attached 528.00
1 Porch Open Slab 100.00
1 Porch Slab Roof Ceil 107.00





Account Parcel Account Type Tax Year Buildings Actual Value Local Govt Assessed Value School Assessed Value
R0602101 095925017004 Residential 2026 1 404,897 25,310 28,550

Type Code Description Actual Value Local Govt Assessed Value School Assessed Value Acres Land SqFt
Improvement 1212 SINGLE FAMILY RESIDENTIAL IMPROVEMENTS 324,897 20,310 22,910 0.000 0
Land 1112 SINGLE FAMILY RESIDENTIAL-LAND 80,000 5,000 5,640 0.185 8,077
Totals - - 404,897 25,310 28,550 0.185 8,077


Account Parcel Account Type Tax Year Buildings Actual Value Local Govt Assessed Value School Assessed Value
R0602101 095925017004 Residential 2026 1 404,897 25,310 28,550

Tax Area District ID District Name Local Govt
Mill Levy
School
Mill Levy
Estimated
Taxes
0699 0700 AIMS JUNIOR COLLEGE 6.313 0.000 $159.78
0699 0305 CENTRAL WELD COUNTY WATER (CWC) 0.000 0.000 $0.00
0699 0405 EVANS CITY 3.536 0.000 $89.50
0699 0534 EVANS FIRE 15.500 0.000 $392.31
0699 1050 HIGH PLAINS LIBRARY 3.044 0.000 $77.04
0699 0301 NORTHERN COLORADO WATER (NCW) 1.000 0.000 $25.31
0699 0206 SCHOOL DIST 6-GREELEY 0.000 47.615 $1,359.41
0699 0100 WELD COUNTY 15.956 0.000 $403.85
0699 1200 WEST GREELEY CONSERVATION 0.414 0.000 $10.48
Total - - 45.763 47.615 $2,517.67


The estimate of tax is based on the prior year mill levy and the 2025 projected assessment rates. Mill levies and tax estimates will be updated yearly on December 22nd for the current year. Additional information can be found at https://assessor.weld.gov










Select Reports to Print: