Account: R0609101
April 1, 2026
| Account | Parcel | Account Type | Tax Year | Buildings | Actual Value | Local Govt Assessed Value | School Assessed Value |
|---|---|---|---|---|---|---|---|
| R0609101 | 095925020016 | Residential | 2026 | 1 | 437,471 | 27,340 | 30,840 |
| Legal |
|---|
| EVS WB L16 BLK6 WILLOWBROOK |
| Subdivision | Block | Lot | Land Economic Area |
|---|---|---|---|
| WILLOWBROOK SUB | 6 | 16 | WILLOWBROOK |
| Property Address | Property City | Section | Township | Range |
|---|---|---|---|---|
| 2414 LAGOON CT | EVANS | 25 | 05 | 66 |
| Account | Parcel | Account Type | Tax Year | Buildings | Actual Value | Local Govt Assessed Value | School Assessed Value |
|---|---|---|---|---|---|---|---|
| R0609101 | 095925020016 | Residential | 2026 | 1 | 437,471 | 27,340 | 30,840 |
| Account | Owner Name | Address |
|---|---|---|
| R0609101 | ESIFANOS YONAS BITEW | 2414 LAGOON CT EVANS, CO 806209578 |
| Account | Parcel | Account Type | Tax Year | Buildings | Actual Value | Local Govt Assessed Value | School Assessed Value |
|---|---|---|---|---|---|---|---|
| R0609101 | 095925020016 | Residential | 2026 | 1 | 437,471 | 27,340 | 30,840 |
| Reception | Rec Date | Type | Grantor | Grantee | Doc Fee | Sale Date | Sale Price |
|---|---|---|---|---|---|---|---|
| 2817730 | NA | SUB | SUBDIVISION | WILLOWBROOK | 0.00 | NA | 0 |
| 2820848 | 01-23-2001 | WD | BOEHNER DALE L & DIANNA (JT 25%) & | WILLOWBROOK DEVELOPMENT LLC | 281.41 | 01-18-2001 | 2,814,100 |
| 2886552 | 09-26-2001 | WD | WILLOWBROOK DEVELOPMENT LLC | FAITH HOMES AND LAND INC | 76.50 | 09-21-2001 | 765,000 |
| 2916560 | 01-14-2002 | WD | FAITH HOMES LAND INC | COOK SHERYL A & TONY E | 3.98 | 01-14-2002 | 39,800 |
| 2985582 | 09-06-2002 | WD | COOK SHERYL A & TONY E | WYPERD PHIL & REBECCA | 18.15 | 09-05-2002 | 181,500 |
| 3849765 | 06-01-2012 | WD | WYPERD PHIL | VANBUSKIRK RONNIE JAMES | 17.50 | 05-31-2012 | 175,000 |
| 4014146 | 05-06-2014 | WD | VANBUSKIRK RONNIE JAMES | ESTIFANOS YONAS BITEW | 18.99 | 05-01-2014 | 189,900 |
*If the hyperlink for the reception number does not work, try a manual search in the Clerk and Recorder records. Use the Grantor or Grantee in your search.
| Account | Parcel | Account Type | Tax Year | Buildings | Actual Value | Local Govt Assessed Value | School Assessed Value |
|---|---|---|---|---|---|---|---|
| R0609101 | 095925020016 | Residential | 2026 | 1 | 437,471 | 27,340 | 30,840 |
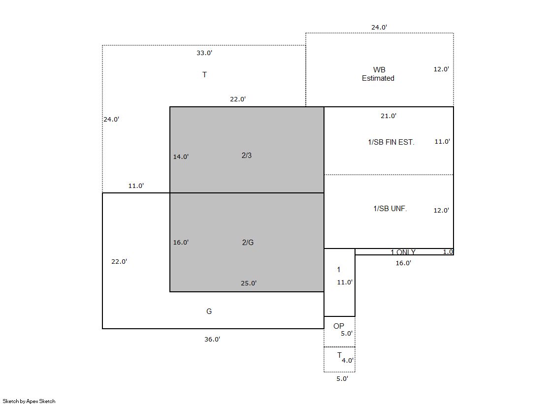
Building 1
| AccountNo | Building ID | Occupancy |
|---|---|---|
| R0609101 | 1 | Single Family Residential |
| ID | Type | NBHD | Occupancy | % Complete | Bedrooms | Baths |
|---|---|---|---|---|---|---|
| 1 | Residential | 6E1062 | Single Family Residential | 100 | 4 | 3.00 |
| ID | Exterior | Roof Cover | Interior | HVAC | Perimeter | Units | Unit Type | Make |
|---|---|---|---|---|---|---|---|---|
| 1 | Frame Hardboard | Composition Shingle | Drywall | Central Air to Air | 0 | 0 | NA | NA |
| ID | Square Ft | Condo SF | Total Basement SF | Finished Basement SF | Garage SF | Carport SF | Balcony SF | Porch SF |
|---|---|---|---|---|---|---|---|---|
| 1 | 1,654 | 0 | 483 | 231 | 792 | 0 | 288 | 504 |
| ID | Built As | Square Ft | Year Built | Stories | Length | Width |
|---|---|---|---|---|---|---|
| 1.00 | Split Level | 1,654 | 2002 | 1 | 0 | 0 |
| ID | Detail Type | Description | Units |
|---|---|---|---|
| 1 | Add On | Fireplace Gas | 1.00 |
| 1 | Balcony | Wood Wood Fin | 288.00 |
| 1 | Basement | Finished | 231.00 |
| 1 | Basement | Total Basement SF | 483.00 |
| 1 | Fixture | Full Bath | 3.00 |
| 1 | Garage | Built In | 792.00 |
| 1 | Porch | Open Slab | 504.00 |
| 1 | Porch | Slab Roof Ceil | 25.00 |
| Account | Parcel | Account Type | Tax Year | Buildings | Actual Value | Local Govt Assessed Value | School Assessed Value |
|---|---|---|---|---|---|---|---|
| R0609101 | 095925020016 | Residential | 2026 | 1 | 437,471 | 27,340 | 30,840 |
| Type | Code | Description | Actual Value | Local Govt Assessed Value | School Assessed Value | Acres | Land SqFt |
|---|---|---|---|---|---|---|---|
| Improvement | 1212 | SINGLE FAMILY RESIDENTIAL IMPROVEMENTS | 357,471 | 22,340 | 25,200 | 0.000 | 0 |
| Land | 1112 | SINGLE FAMILY RESIDENTIAL-LAND | 80,000 | 5,000 | 5,640 | 0.197 | 8,581 |
| Totals | - | - | 437,471 | 27,340 | 30,840 | 0.197 | 8,581 |
Comparable sales for your Residential or Commercial property may be found using our SALES SEARCH TOOL
Values are updated annually on May 1st for Real Property and June 15th for Personal Property and Oil and Gas.
| Account | Parcel | Account Type | Tax Year | Buildings | Actual Value | Local Govt Assessed Value | School Assessed Value |
|---|---|---|---|---|---|---|---|
| R0609101 | 095925020016 | Residential | 2026 | 1 | 437,471 | 27,340 | 30,840 |
| Tax Area | District ID | District Name | Local Govt Mill Levy |
School Mill Levy |
Estimated Taxes |
|---|---|---|---|---|---|
| 0699 | 0700 | AIMS JUNIOR COLLEGE | 6.313 | 0.000 | $172.60 |
| 0699 | 0305 | CENTRAL WELD COUNTY WATER (CWC) | 0.000 | 0.000 | $0.00 |
| 0699 | 0405 | EVANS CITY | 3.536 | 0.000 | $96.67 |
| 0699 | 0534 | EVANS FIRE | 15.500 | 0.000 | $423.77 |
| 0699 | 1050 | HIGH PLAINS LIBRARY | 3.044 | 0.000 | $83.22 |
| 0699 | 0301 | NORTHERN COLORADO WATER (NCW) | 1.000 | 0.000 | $27.34 |
| 0699 | 0206 | SCHOOL DIST 6-GREELEY | 0.000 | 47.615 | $1,468.45 |
| 0699 | 0100 | WELD COUNTY | 15.956 | 0.000 | $436.24 |
| 0699 | 1200 | WEST GREELEY CONSERVATION | 0.414 | 0.000 | $11.32 |
| Total | - | - | 45.763 | 47.615 | $2,719.61 |
The estimate of tax is based on the prior year mill levy and the 2025 projected assessment rates. Mill levies and tax estimates will be updated yearly on December 22nd for the current year. Additional information can be found at https://assessor.weld.gov



