Account: R0609701

April 1, 2026

Account Parcel Account Type Tax Year Buildings Actual Value Local Govt Assessed Value School Assessed Value
R0609701 095925020022 Residential 2026 1 376,444 23,530 26,540

Legal
EVS WB L22 BLK6 WILLOWBROOK

Subdivision Block Lot Land Economic Area
WILLOWBROOK SUB 6 22 WILLOWBROOK

Property Address Property City Section Township Range
2407 QUAY ST EVANS 25 05 66




Account Parcel Account Type Tax Year Buildings Actual Value Local Govt Assessed Value School Assessed Value
R0609701 095925020022 Residential 2026 1 376,444 23,530 26,540

Account Owner Name Address
R0609701 ATKINSON JENNIFER R 2629 TIMBERHAVEN DR FLOWER MOUND, TX 750282239


Account Parcel Account Type Tax Year Buildings Actual Value Local Govt Assessed Value School Assessed Value
R0609701 095925020022 Residential 2026 1 376,444 23,530 26,540

Reception Rec Date Type Grantor Grantee Doc Fee Sale Date Sale Price
2817730 NA SUB SUBDIVISION WILLOWBROOK 0.00 NA 0
2820848 01-23-2001 WD BOEHNER DALE L & DIANNA (JT 25%) & WILLOWBROOK DEVELOPMENT LLC 281.41 01-18-2001 2,814,100
2886175 09-25-2001 WD WILLOWBROOK DEVELOPMENT LLC MAJESTY ENTERPRISES LLC 7.80 09-21-2001 78,000
2936147 03-25-2002 WD MAJESTY ENTERPRISES LLC LOBDELL MATTHEW C & ALICIA K 14.80 03-22-2002 148,000
3157976 03-01-2004 WDN LOBDELL MATTHEW C & PRIMACY CLOSING CORPORATION 0.00 02-27-2004 0
3157977 03-01-2004 WD PRIMACY CLOSING CORPORATION ATKINSON JAMES A & 15.80 02-20-2004 158,000
3295532 06-16-2005 PRDN ATKINSON JAMES A & ATKINSON JENNIFER R 0.00 06-14-2005 0



Account Parcel Account Type Tax Year Buildings Actual Value Local Govt Assessed Value School Assessed Value
R0609701 095925020022 Residential 2026 1 376,444 23,530 26,540

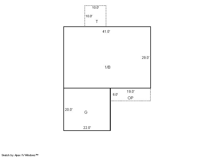
Building 1

AccountNo Building ID Occupancy
R0609701 1 Single Family Residential


ID Type NBHD Occupancy % Complete Bedrooms Baths
1 Residential 6E1062 Single Family Residential 100 3 2.00


ID Exterior Roof Cover Interior HVAC Perimeter Units Unit Type Make
1 Frame Hardboard Composition Shingle Drywall Forced Air 0 0 NA NA


ID Square Ft Condo SF Total Basement SF Finished Basement SF Garage SF Carport SF Balcony SF Porch SF
1 1,189 0 1,189 0 440 0 0 100


Built As Details for Building 1
ID Built As Square Ft Year Built Stories Length Width
1.00 Ranch 1 Story 1,189 2002 1 0 0


Additional Details for Building 1
ID Detail Type Description Units
1 Basement Total Basement SF 1189.00
1 Fixture Full Bath 2.00
1 Garage Attached 440.00
1 Porch Open Slab 100.00
1 Porch Slab Roof Ceil 114.00
1 Rough In Rough In 1.00





Account Parcel Account Type Tax Year Buildings Actual Value Local Govt Assessed Value School Assessed Value
R0609701 095925020022 Residential 2026 1 376,444 23,530 26,540

Type Code Description Actual Value Local Govt Assessed Value School Assessed Value Acres Land SqFt
Improvement 1212 SINGLE FAMILY RESIDENTIAL IMPROVEMENTS 296,444 18,530 20,900 0.000 0
Land 1112 SINGLE FAMILY RESIDENTIAL-LAND 80,000 5,000 5,640 0.176 7,667
Totals - - 376,444 23,530 26,540 0.176 7,667


Account Parcel Account Type Tax Year Buildings Actual Value Local Govt Assessed Value School Assessed Value
R0609701 095925020022 Residential 2026 1 376,444 23,530 26,540

Tax Area District ID District Name Local Govt
Mill Levy
School
Mill Levy
Estimated
Taxes
0699 0700 AIMS JUNIOR COLLEGE 6.313 0.000 $148.54
0699 0305 CENTRAL WELD COUNTY WATER (CWC) 0.000 0.000 $0.00
0699 0405 EVANS CITY 3.536 0.000 $83.20
0699 0534 EVANS FIRE 15.500 0.000 $364.72
0699 1050 HIGH PLAINS LIBRARY 3.044 0.000 $71.63
0699 0301 NORTHERN COLORADO WATER (NCW) 1.000 0.000 $23.53
0699 0206 SCHOOL DIST 6-GREELEY 0.000 47.615 $1,263.70
0699 0100 WELD COUNTY 15.956 0.000 $375.44
0699 1200 WEST GREELEY CONSERVATION 0.414 0.000 $9.74
Total - - 45.763 47.615 $2,340.51


The estimate of tax is based on the prior year mill levy and the 2025 projected assessment rates. Mill levies and tax estimates will be updated yearly on December 22nd for the current year. Additional information can be found at https://assessor.weld.gov










Select Reports to Print: