Account: R0612001

April 1, 2026

Account Parcel Account Type Tax Year Buildings Actual Value Local Govt Assessed Value School Assessed Value
R0612001 095925022007 Residential 2026 1 416,325 26,020 29,350

Legal
EVS WB L7 BLK8 WILLOWBROOK

Subdivision Block Lot Land Economic Area
WILLOWBROOK SUB 8 7 WILLOWBROOK

Property Address Property City Section Township Range
3927 28TH AVE EVANS 25 05 66




Account Parcel Account Type Tax Year Buildings Actual Value Local Govt Assessed Value School Assessed Value
R0612001 095925022007 Residential 2026 1 416,325 26,020 29,350

Account Owner Name Address
R0612001 BROCK KENDRA A 3927 28TH AVE EVANS, CO 806209200
R0612001 BROCK GARRETT L


Account Parcel Account Type Tax Year Buildings Actual Value Local Govt Assessed Value School Assessed Value
R0612001 095925022007 Residential 2026 1 416,325 26,020 29,350

Reception Rec Date Type Grantor Grantee Doc Fee Sale Date Sale Price
2817730 NA SUB SUBDIVISION WILLOWBROOK 0.00 NA 0
2878152 08-28-2001 WD BOEHNER DALE L & DIANNA (JT 25%) & WILLOWBROOK DEVELOPMENT LLC 180.00 08-23-2001 1,800,000
2899775 11-13-2001 WD WILLOWBROOK DEVELOPMENT LLC RANBO DEVELOPMENT 36.00 11-07-2001 360,000
3115123 10-09-2003 WD RANBO DEVELOPMENT BRUNO BETTY M 16.93 09-30-2003 169,300
3174032 04-26-2004 QCN BRUNO BETTY M BRUNO ROBERT A 0.00 04-22-2004 0
3412079 08-15-2006 PTD BRUNO ROBERT A BANK OF NEW YORK 0.00 08-15-2006 0
3413564 08-22-2006 PTD BRUNO BETTY M BANK OF NEW YORK 0.00 08-15-2006 0
3414726 08-25-2006 PTD BRUNO ROBERT 3927 28TH AVE TRUST 0.00 08-25-2006 0
3612472 03-24-2009 QCN 3927 28TH AVENUE TRUST FOGLESONG JOY 0.00 03-04-2009 0
3665467 12-16-2009 WD FOGLESONG JOY BROCK KENDRA A 14.25 12-08-2009 142,500



Account Parcel Account Type Tax Year Buildings Actual Value Local Govt Assessed Value School Assessed Value
R0612001 095925022007 Residential 2026 1 416,325 26,020 29,350

Building 1

AccountNo Building ID Occupancy
R0612001 1 Single Family Residential


ID Type NBHD Occupancy % Complete Bedrooms Baths
1 Residential 6E1062 Single Family Residential 100 5 3.00


ID Exterior Roof Cover Interior HVAC Perimeter Units Unit Type Make
1 Frame Hardboard Composition Shingle Drywall Forced Air 0 0 NA NA


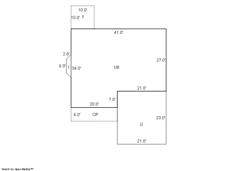
ID Square Ft Condo SF Total Basement SF Finished Basement SF Garage SF Carport SF Balcony SF Porch SF
1 1,263 0 1,247 1,247 483 0 0 120


Built As Details for Building 1
ID Built As Square Ft Year Built Stories Length Width
1.00 Ranch 1 Story 1,263 2002 1 0 0


Additional Details for Building 1
ID Detail Type Description Units
1 Basement Finished 1247.00
1 Basement Total Basement SF 1247.00
1 Fixture Full Bath 3.00
1 Garage Attached 483.00
1 Porch Open Slab 100.00
1 Porch Slab Roof Ceil 120.00





Account Parcel Account Type Tax Year Buildings Actual Value Local Govt Assessed Value School Assessed Value
R0612001 095925022007 Residential 2026 1 416,325 26,020 29,350

Type Code Description Actual Value Local Govt Assessed Value School Assessed Value Acres Land SqFt
Improvement 1212 SINGLE FAMILY RESIDENTIAL IMPROVEMENTS 336,325 21,020 23,710 0.000 0
Land 1112 SINGLE FAMILY RESIDENTIAL-LAND 80,000 5,000 5,640 0.165 7,200
Totals - - 416,325 26,020 29,350 0.165 7,200


Account Parcel Account Type Tax Year Buildings Actual Value Local Govt Assessed Value School Assessed Value
R0612001 095925022007 Residential 2026 1 416,325 26,020 29,350

Tax Area District ID District Name Local Govt
Mill Levy
School
Mill Levy
Estimated
Taxes
0699 0700 AIMS JUNIOR COLLEGE 6.313 0.000 $164.26
0699 0305 CENTRAL WELD COUNTY WATER (CWC) 0.000 0.000 $0.00
0699 0405 EVANS CITY 3.536 0.000 $92.01
0699 0534 EVANS FIRE 15.500 0.000 $403.31
0699 1050 HIGH PLAINS LIBRARY 3.044 0.000 $79.20
0699 0301 NORTHERN COLORADO WATER (NCW) 1.000 0.000 $26.02
0699 0206 SCHOOL DIST 6-GREELEY 0.000 47.615 $1,397.50
0699 0100 WELD COUNTY 15.956 0.000 $415.18
0699 1200 WEST GREELEY CONSERVATION 0.414 0.000 $10.77
Total - - 45.763 47.615 $2,588.25


The estimate of tax is based on the prior year mill levy and the 2025 projected assessment rates. Mill levies and tax estimates will be updated yearly on December 22nd for the current year. Additional information can be found at https://assessor.weld.gov










Select Reports to Print: