Account: R0612601

April 2, 2026

Account Parcel Account Type Tax Year Buildings Actual Value Local Govt Assessed Value School Assessed Value
R0612601 095925022013 Residential 2026 1 422,957 26,430 29,820

Legal
EVS WB L13 BLK8 WILLOWBROOK

Subdivision Block Lot Land Economic Area
WILLOWBROOK SUB 8 13 WILLOWBROOK

Property Address Property City Section Township Range
4015 28TH AVE EVANS 25 05 66




Account Parcel Account Type Tax Year Buildings Actual Value Local Govt Assessed Value School Assessed Value
R0612601 095925022013 Residential 2026 1 422,957 26,430 29,820

Account Owner Name Address
R0612601 IBARRA CARLOS OMAR 4015 28TH AVE EVANS, CO 806209201
R0612601 PAYAN ADRIANA AGUILAR


Account Parcel Account Type Tax Year Buildings Actual Value Local Govt Assessed Value School Assessed Value
R0612601 095925022013 Residential 2026 1 422,957 26,430 29,820

Reception Rec Date Type Grantor Grantee Doc Fee Sale Date Sale Price
2817730 NA SUB SUBDIVISION WILLOWBROOK 0.00 NA 0
2878152 08-28-2001 WD BOEHNER DALE L & DIANNA (JT 25%) & WILLOWBROOK DEVELOPMENT LLC 180.00 08-23-2001 1,800,000
2899335 11-09-2001 WD WILLOWBROOK DEVELOPMENT LLC RNV CONSTRUCTION LLC 36.00 11-07-2001 360,000
2950021 05-09-2002 WDN RNV CONSTRUCTION LLC FRANCIS JANICE K 0.00 04-30-2002 0
3000544 10-30-2002 QCN FRANCIS JANICE K SAPPHIRE CUSTOM HOMES INC 0.00 10-14-2002 0
3000545 10-30-2002 WD SAPPHIRE CUSTOM HOMES INC CROWLEY WILLIAM D & HOLLY A 16.00 10-28-2002 160,000
3409710 08-07-2006 WD CROWLEY WILLIAM D & PAYNE DEAN A & 16.80 08-04-2006 168,000
4116622 06-17-2015 WD PAYNE LORNA J; PAYNE DEAN A GREENSTREET BRANDEN LANE; GREENSTREET SARA A 18.85 06-15-2015 188,500
4447845 11-20-2018 WD GREENSTREET BRANDEN LANE; GREENSTREET SARA A GREEN LEANNE; GREEN TROY; BAKER ROGER; BAKER FAEBIAN 31.00 11-16-2018 310,000
4691278 03-10-2021 QCN BAKER ROGER; BAKER FAEBIAN GREEN LEANNE; GREEN TROY 0.00 03-02-2021 0
4901574 06-02-2023 WD GREEN LEANNE; GREEN TROY IBARRA CARLOS OMAR; PAYAN ADRIANA AGUILAR 43.10 06-01-2023 431,000



Account Parcel Account Type Tax Year Buildings Actual Value Local Govt Assessed Value School Assessed Value
R0612601 095925022013 Residential 2026 1 422,957 26,430 29,820

Building 1

AccountNo Building ID Occupancy
R0612601 1 Single Family Residential


ID Type NBHD Occupancy % Complete Bedrooms Baths
1 Residential 6E1062 Single Family Residential 100 5 3.00


ID Exterior Roof Cover Interior HVAC Perimeter Units Unit Type Make
1 Frame Hardboard Composition Shingle Drywall Central Air to Air 170 0 NA NA


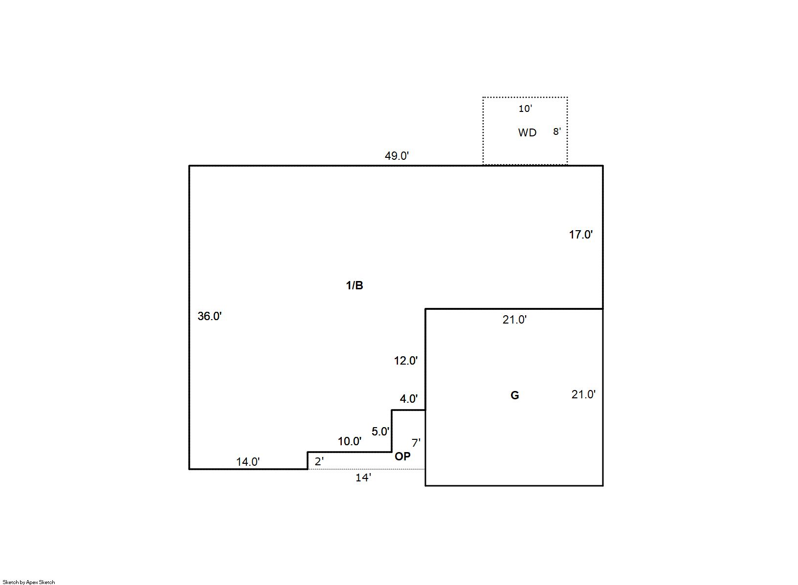
ID Square Ft Condo SF Total Basement SF Finished Basement SF Garage SF Carport SF Balcony SF Porch SF
1 1,317 0 1,317 1,317 441 0 0 80


Built As Details for Building 1
ID Built As Square Ft Year Built Stories Length Width
1.00 Ranch 1 Story 1,317 2002 1 0 0


Additional Details for Building 1
ID Detail Type Description Units
1 Basement Finished 1317.00
1 Basement Total Basement SF 1317.00
1 Fixture Full Bath 3.00
1 Garage Attached 441.00
1 Porch Slab Roof Ceil 48.00
1 Porch Wood Deck 80.00





Account Parcel Account Type Tax Year Buildings Actual Value Local Govt Assessed Value School Assessed Value
R0612601 095925022013 Residential 2026 1 422,957 26,430 29,820

Type Code Description Actual Value Local Govt Assessed Value School Assessed Value Acres Land SqFt
Improvement 1212 SINGLE FAMILY RESIDENTIAL IMPROVEMENTS 342,957 21,430 24,180 0.000 0
Land 1112 SINGLE FAMILY RESIDENTIAL-LAND 80,000 5,000 5,640 0.165 7,200
Totals - - 422,957 26,430 29,820 0.165 7,200


Account Parcel Account Type Tax Year Buildings Actual Value Local Govt Assessed Value School Assessed Value
R0612601 095925022013 Residential 2026 1 422,957 26,430 29,820

Tax Area District ID District Name Local Govt
Mill Levy
School
Mill Levy
Estimated
Taxes
0699 0700 AIMS JUNIOR COLLEGE 6.313 0.000 $166.85
0699 0305 CENTRAL WELD COUNTY WATER (CWC) 0.000 0.000 $0.00
0699 0405 EVANS CITY 3.536 0.000 $93.46
0699 0534 EVANS FIRE 15.500 0.000 $409.67
0699 1050 HIGH PLAINS LIBRARY 3.044 0.000 $80.45
0699 0301 NORTHERN COLORADO WATER (NCW) 1.000 0.000 $26.43
0699 0206 SCHOOL DIST 6-GREELEY 0.000 47.615 $1,419.88
0699 0100 WELD COUNTY 15.956 0.000 $421.72
0699 1200 WEST GREELEY CONSERVATION 0.414 0.000 $10.94
Total - - 45.763 47.615 $2,629.40


The estimate of tax is based on the prior year mill levy and the 2025 projected assessment rates. Mill levies and tax estimates will be updated yearly on December 22nd for the current year. Additional information can be found at https://assessor.weld.gov










Select Reports to Print: