Account: R0617701

April 1, 2026

Account Parcel Account Type Tax Year Buildings Actual Value Local Govt Assessed Value School Assessed Value
R0617701 095925025004 Residential 2026 1 396,553 24,780 27,960

Legal
EVS WB L4 BLK11 WILLOWBROOK

Subdivision Block Lot Land Economic Area
WILLOWBROOK SUB 11 4 WILLOWBROOK

Property Address Property City Section Township Range
2612 PORT ST EVANS 25 05 66




Account Parcel Account Type Tax Year Buildings Actual Value Local Govt Assessed Value School Assessed Value
R0617701 095925025004 Residential 2026 1 396,553 24,780 27,960

Account Owner Name Address
R0617701 VELASQUEZ WILLIAM FRANCISCO LOPEZ 2612 PORT ST EVANS, CO 806209477
R0617701 LOPEZ ADRIANA ANGELINE LOPEZ


Account Parcel Account Type Tax Year Buildings Actual Value Local Govt Assessed Value School Assessed Value
R0617701 095925025004 Residential 2026 1 396,553 24,780 27,960

Reception Rec Date Type Grantor Grantee Doc Fee Sale Date Sale Price
2817730 NA SUB SUBDIVISION WILLOWBROOK 0.00 NA 0
2878152 08-28-2001 WD BOEHNER DALE L & DIANNA (JT 25%) & WILLOWBROOK DEVELOPMENT LLC 180.00 08-23-2001 1,800,000
3003674 11-08-2002 WDN WILLOWBROOK DEVELOPMENT LLC JOURNEY HOMES LLC 0.00 11-04-2002 0
3003675 11-08-2002 WD JOURNEY HOMES LLC VILLALOBOS JOSE GOMEZ & GOMEZ EVELYN 17.26 11-05-2002 172,600
3482587 06-11-2007 PTD VILLALOBOS JOSE GOMEZ & SECRETARY OF HOUSING AND URBAN DEVELOPME 0.00 06-11-2007 0
3499208 08-23-2007 SWD SECRETARY OF HOUSING AND URBAN DEVELOPME BRIGGS CHARLES E & 0.00 08-20-2007 130,900
4072674 01-05-2015 WDN BRIGGS SANDRA A; BRIGGS CHARLES E BRIGGS REVOCABLE LIVING TRUST 0.00 12-30-2014 0
4847314 08-09-2022 WD BRIGGS REVOCABLE LIVING TRUST VELASQUEZ WILLIAM FRANCISCO LOPEZ; LOPEZ ADRIANA ANGELINE LOPEZ 37.30 08-02-2022 373,000



Account Parcel Account Type Tax Year Buildings Actual Value Local Govt Assessed Value School Assessed Value
R0617701 095925025004 Residential 2026 1 396,553 24,780 27,960

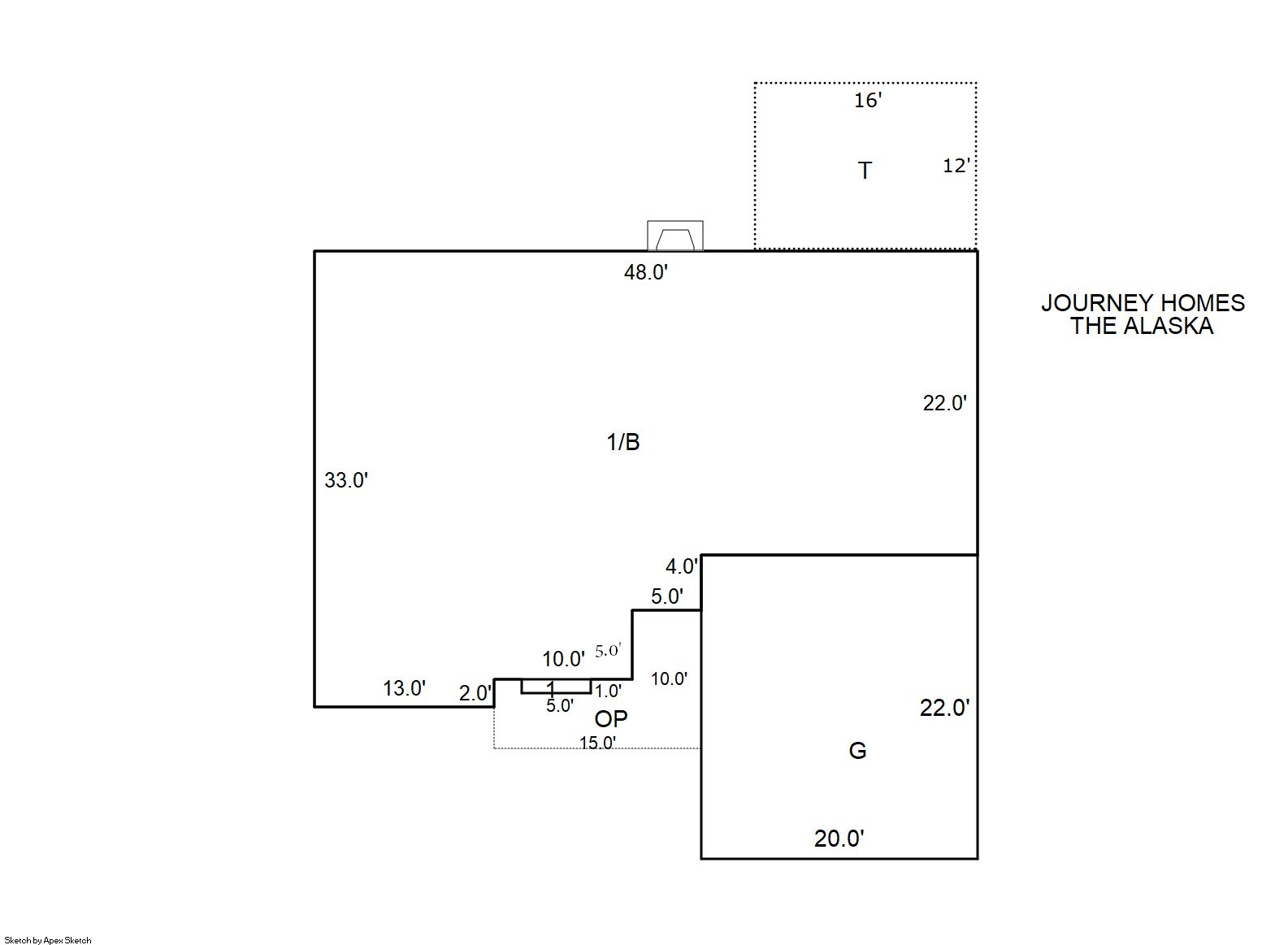
Building 1

AccountNo Building ID Occupancy
R0617701 1 Single Family Residential


ID Type NBHD Occupancy % Complete Bedrooms Baths
1 Residential 6E1062 Single Family Residential 100 3 2.00


ID Exterior Roof Cover Interior HVAC Perimeter Units Unit Type Make
1 Frame Vinyl Composition Shingle Drywall Central Air to Air 164 0 NA NA


ID Square Ft Condo SF Total Basement SF Finished Basement SF Garage SF Carport SF Balcony SF Porch SF
1 1,314 0 1,309 0 440 0 0 95


Built As Details for Building 1
ID Built As Square Ft Year Built Stories Length Width
1.00 Ranch 1 Story 1,314 2002 1 0 0


Additional Details for Building 1
ID Detail Type Description Units
1 Add On Fireplace Gas 1.00
1 Basement Total Basement SF 1309.00
1 Fixture Full Bath 2.00
1 Garage Attached 440.00
1 Porch Open Slab 192.00
1 Porch Slab Roof Ceil 95.00
1 Rough In Rough In 1.00





Account Parcel Account Type Tax Year Buildings Actual Value Local Govt Assessed Value School Assessed Value
R0617701 095925025004 Residential 2026 1 396,553 24,780 27,960

Type Code Description Actual Value Local Govt Assessed Value School Assessed Value Acres Land SqFt
Improvement 1212 SINGLE FAMILY RESIDENTIAL IMPROVEMENTS 316,553 19,780 22,320 0.000 0
Land 1112 SINGLE FAMILY RESIDENTIAL-LAND 80,000 5,000 5,640 0.146 6,355
Totals - - 396,553 24,780 27,960 0.146 6,355


Account Parcel Account Type Tax Year Buildings Actual Value Local Govt Assessed Value School Assessed Value
R0617701 095925025004 Residential 2026 1 396,553 24,780 27,960

Tax Area District ID District Name Local Govt
Mill Levy
School
Mill Levy
Estimated
Taxes
0699 0700 AIMS JUNIOR COLLEGE 6.313 0.000 $156.44
0699 0305 CENTRAL WELD COUNTY WATER (CWC) 0.000 0.000 $0.00
0699 0405 EVANS CITY 3.536 0.000 $87.62
0699 0534 EVANS FIRE 15.500 0.000 $384.09
0699 1050 HIGH PLAINS LIBRARY 3.044 0.000 $75.43
0699 0301 NORTHERN COLORADO WATER (NCW) 1.000 0.000 $24.78
0699 0206 SCHOOL DIST 6-GREELEY 0.000 47.615 $1,331.32
0699 0100 WELD COUNTY 15.956 0.000 $395.39
0699 1200 WEST GREELEY CONSERVATION 0.414 0.000 $10.26
Total - - 45.763 47.615 $2,465.32


The estimate of tax is based on the prior year mill levy and the 2025 projected assessment rates. Mill levies and tax estimates will be updated yearly on December 22nd for the current year. Additional information can be found at https://assessor.weld.gov










Select Reports to Print: