Account: R0618201

April 1, 2026

Account Parcel Account Type Tax Year Buildings Actual Value Local Govt Assessed Value School Assessed Value
R0618201 095925025009 Residential 2026 1 379,169 23,700 26,730

Legal
EVS WB L9 BLK11 WILLOWBROOK

Subdivision Block Lot Land Economic Area
WILLOWBROOK SUB 11 9 WILLOWBROOK

Property Address Property City Section Township Range
2526 PORT ST EVANS 25 05 66




Account Parcel Account Type Tax Year Buildings Actual Value Local Govt Assessed Value School Assessed Value
R0618201 095925025009 Residential 2026 1 379,169 23,700 26,730

Account Owner Name Address
R0618201 GULLICKSON WAYNE T 2526 PORT ST EVANS, CO 806209477
R0618201 GULLICKSON ERIC B


Account Parcel Account Type Tax Year Buildings Actual Value Local Govt Assessed Value School Assessed Value
R0618201 095925025009 Residential 2026 1 379,169 23,700 26,730

Reception Rec Date Type Grantor Grantee Doc Fee Sale Date Sale Price
2817730 NA SUB SUBDIVISION WILLOWBROOK 0.00 NA 0
2878152 08-28-2001 WD BOEHNER DALE L & DIANNA (JT 25%) & WILLOWBROOK DEVELOPMENT LLC 180.00 08-23-2001 1,800,000
2969372 07-16-2002 WDN WILLOWBROOK DEVELOPMENT LLC JOURNEY HOMES LLC 0.00 07-12-2002 0
2969373 07-16-2002 WD JOURNEY HOMES LLC BROOKS DELAYNE D 14.93 07-12-2002 149,300
3610069 03-11-2009 PTD BROOKS DELAYNE D & JAMIE AURORA LOAN SERVICES LLC 0.00 03-10-2009 0
3610271 03-12-2009 SWDN AURORA LOAN SERVICES LLC FEDERAL NATIONAL MORTGAGE ASSOCIATION 0.00 01-09-2009 0
3619920 05-01-2009 SWD FEDERAL NATIONAL MORTGAGE ASSOCIATION GULLICKSON WAYNE T 12.30 04-24-2009 123,000



Account Parcel Account Type Tax Year Buildings Actual Value Local Govt Assessed Value School Assessed Value
R0618201 095925025009 Residential 2026 1 379,169 23,700 26,730

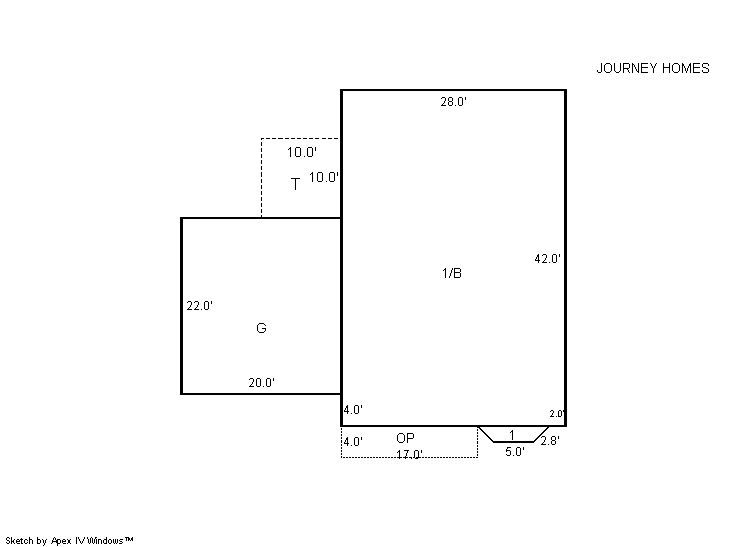
Building 1

AccountNo Building ID Occupancy
R0618201 1 Single Family Residential


ID Type NBHD Occupancy % Complete Bedrooms Baths
1 Residential 6E1062 Single Family Residential 100 3 2.00


ID Exterior Roof Cover Interior HVAC Perimeter Units Unit Type Make
1 Frame Vinyl Composition Shingle Drywall Central Air to Air 0 0 NA NA


ID Square Ft Condo SF Total Basement SF Finished Basement SF Garage SF Carport SF Balcony SF Porch SF
1 1,190 0 1,176 0 440 0 0 100


Built As Details for Building 1
ID Built As Square Ft Year Built Stories Length Width
1.00 Ranch 1 Story 1,190 2002 1 0 0


Additional Details for Building 1
ID Detail Type Description Units
1 Basement Total Basement SF 1176.00
1 Fixture Full Bath 2.00
1 Garage Attached 440.00
1 Porch Open Slab 100.00
1 Porch Slab Roof Ceil 68.00
1 Rough In Rough In 1.00





Account Parcel Account Type Tax Year Buildings Actual Value Local Govt Assessed Value School Assessed Value
R0618201 095925025009 Residential 2026 1 379,169 23,700 26,730

Type Code Description Actual Value Local Govt Assessed Value School Assessed Value Acres Land SqFt
Improvement 1212 SINGLE FAMILY RESIDENTIAL IMPROVEMENTS 299,169 18,700 21,090 0.000 0
Land 1112 SINGLE FAMILY RESIDENTIAL-LAND 80,000 5,000 5,640 0.146 6,355
Totals - - 379,169 23,700 26,730 0.146 6,355


Account Parcel Account Type Tax Year Buildings Actual Value Local Govt Assessed Value School Assessed Value
R0618201 095925025009 Residential 2026 1 379,169 23,700 26,730

Tax Area District ID District Name Local Govt
Mill Levy
School
Mill Levy
Estimated
Taxes
0699 0700 AIMS JUNIOR COLLEGE 6.313 0.000 $149.62
0699 0305 CENTRAL WELD COUNTY WATER (CWC) 0.000 0.000 $0.00
0699 0405 EVANS CITY 3.536 0.000 $83.80
0699 0534 EVANS FIRE 15.500 0.000 $367.35
0699 1050 HIGH PLAINS LIBRARY 3.044 0.000 $72.14
0699 0301 NORTHERN COLORADO WATER (NCW) 1.000 0.000 $23.70
0699 0206 SCHOOL DIST 6-GREELEY 0.000 47.615 $1,272.75
0699 0100 WELD COUNTY 15.956 0.000 $378.16
0699 1200 WEST GREELEY CONSERVATION 0.414 0.000 $9.81
Total - - 45.763 47.615 $2,357.33


The estimate of tax is based on the prior year mill levy and the 2025 projected assessment rates. Mill levies and tax estimates will be updated yearly on December 22nd for the current year. Additional information can be found at https://assessor.weld.gov










Select Reports to Print: