Account: R0621186
April 5, 2026
| Account | Parcel | Account Type | Tax Year | Buildings | Actual Value | Local Govt Assessed Value | School Assessed Value |
|---|---|---|---|---|---|---|---|
| R0621186 | 055129000032 | Residential | 2026 | 1 | 392,867 | 24,550 | 27,690 |
| Legal |
|---|
| 14724-C PT SW4 29-8-65 BEG S0D08'E 1317.96' FROM NW COR OF SW4 S0D08'E 187.19' N89D41'E 349.06' N0D09'W 190.51' S89D08'W 349.06' TO BEG L-C REC EXEMP #RE167 (.12R) |
| Subdivision | Block | Lot | Land Economic Area |
|---|---|---|---|
| PIERCE RURAL |
| Property Address | Property City | Section | Township | Range |
|---|---|---|---|---|
| 43208 COUNTY ROAD 39 | WELD | 29 | 08 | 65 |
| Account | Parcel | Account Type | Tax Year | Buildings | Actual Value | Local Govt Assessed Value | School Assessed Value |
|---|---|---|---|---|---|---|---|
| R0621186 | 055129000032 | Residential | 2026 | 1 | 392,867 | 24,550 | 27,690 |
| Account | Owner Name | Address |
|---|---|---|
| R0621186 | BONILLA-RAMOS CARLOS | 43140 COUNTY ROAD 39 PIERCE, CO 806508101 |
| R0621186 | GONZALEZ MARIA |
| Account | Parcel | Account Type | Tax Year | Buildings | Actual Value | Local Govt Assessed Value | School Assessed Value |
|---|---|---|---|---|---|---|---|
| R0621186 | 055129000032 | Residential | 2026 | 1 | 392,867 | 24,550 | 27,690 |
| Reception | Rec Date | Type | Grantor | Grantee | Doc Fee | Sale Date | Sale Price |
|---|---|---|---|---|---|---|---|
| 01662918 | 06-16-1975 | WDN | 0.00 | 01-01-1900 | 0 | ||
| 1657717 | 04-09-1975 | RE | RECORDED EXEMPTION | RE-167 | 0.00 | NA | 0 |
| 2706568 | 07-14-1999 | WD | BLATTER RALPH E & RITA | ORR MICHAEL K & REBECCA SUE | 10.70 | 07-12-1999 | 107,000 |
| 4060849 | 11-12-2014 | PTD | ORR REBECCA SUE; ORR MICHAEL K | OCWEN LOAN SERVICING LLC | 0.00 | 11-10-2014 | 0 |
| 4064632 | 11-26-2014 | SWDN | OCWEN LOAN SERVICING LLC | FEDERAL NATIONAL MORTGAGE ASSOCIATION | 0.00 | 11-24-2014 | 0 |
| 4098216 | 04-13-2015 | SWD | FEDERAL NATIONAL MORTGAGE ASSOCIATION | CLIFTON TREVOR; CLIFTON DEIDRE | 13.40 | 02-02-2015 | 134,000 |
| 4325500 | 08-09-2017 | WD | CLIFTON TREVOR; CLIFTON DEIDRE | BONILLA-RAMOS CARLOS; GONZALEZ MARIA | 21.50 | 08-08-2017 | 215,000 |
*If the hyperlink for the reception number does not work, try a manual search in the Clerk and Recorder records. Use the Grantor or Grantee in your search.
| Account | Parcel | Account Type | Tax Year | Buildings | Actual Value | Local Govt Assessed Value | School Assessed Value |
|---|---|---|---|---|---|---|---|
| R0621186 | 055129000032 | Residential | 2026 | 1 | 392,867 | 24,550 | 27,690 |
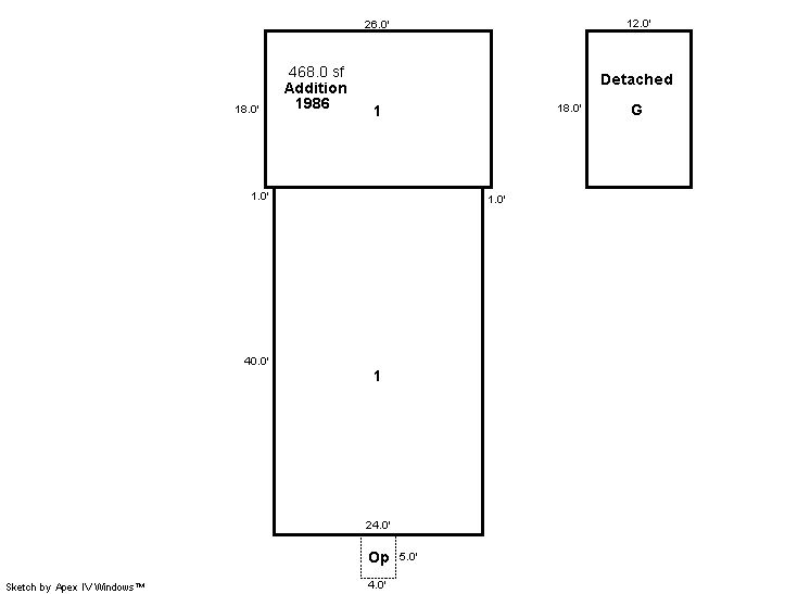
Building 1
| AccountNo | Building ID | Occupancy |
|---|---|---|
| R0621186 | 1 | Single Family Residential |
| ID | Type | NBHD | Occupancy | % Complete | Bedrooms | Baths |
|---|---|---|---|---|---|---|
| 1 | Residential | 8R0007 | Single Family Residential | 100 | 2 | 2.00 |
| ID | Exterior | Roof Cover | Interior | HVAC | Perimeter | Units | Unit Type | Make |
|---|---|---|---|---|---|---|---|---|
| 1 | Frame Vinyl | Composition Shingle | Drywall | Forced Air | 0 | 0 | NA | NA |
| ID | Square Ft | Condo SF | Total Basement SF | Finished Basement SF | Garage SF | Carport SF | Balcony SF | Porch SF |
|---|---|---|---|---|---|---|---|---|
| 1 | 1,428 | 0 | 0 | 0 | 216 | 0 | 0 | 20 |
| ID | Built As | Square Ft | Year Built | Stories | Length | Width |
|---|---|---|---|---|---|---|
| 1.00 | Ranch 1 Story | 1,428 | 1934 | 1 | 0 | 0 |
| ID | Detail Type | Description | Units |
|---|---|---|---|
| 1 | Fixture | Full Bath | 1.00 |
| 1 | Fixture | Half Bath | 1.00 |
| 1 | Garage | Detached | 216.00 |
| 1 | Porch | Slab Roof Ceil | 20.00 |
| Account | Parcel | Account Type | Tax Year | Buildings | Actual Value | Local Govt Assessed Value | School Assessed Value |
|---|---|---|---|---|---|---|---|
| R0621186 | 055129000032 | Residential | 2026 | 1 | 392,867 | 24,550 | 27,690 |
| Type | Code | Description | Actual Value | Local Govt Assessed Value | School Assessed Value | Acres | Land SqFt |
|---|---|---|---|---|---|---|---|
| Improvement | 1212 | SINGLE FAMILY RESIDENTIAL IMPROVEMENTS | 315,360 | 19,710 | 22,230 | 0.000 | 0 |
| Land | 1112 | SINGLE FAMILY RESIDENTIAL-LAND | 77,507 | 4,840 | 5,460 | 1.390 | 60,548 |
| Totals | - | - | 392,867 | 24,550 | 27,690 | 1.390 | 60,548 |
Comparable sales for your Residential or Commercial property may be found using our SALES SEARCH TOOL
Values are updated annually on May 1st for Real Property and June 15th for Personal Property and Oil and Gas.
| Account | Parcel | Account Type | Tax Year | Buildings | Actual Value | Local Govt Assessed Value | School Assessed Value |
|---|---|---|---|---|---|---|---|
| R0621186 | 055129000032 | Residential | 2026 | 1 | 392,867 | 24,550 | 27,690 |
| Tax Area | District ID | District Name | Local Govt Mill Levy |
School Mill Levy |
Estimated Taxes |
|---|---|---|---|---|---|
| 0919 | 0700 | AIMS JUNIOR COLLEGE | 6.313 | 0.000 | $154.98 |
| 0919 | 0501 | AULT FIRE | 7.266 | 0.000 | $178.38 |
| 0919 | 1050 | HIGH PLAINS LIBRARY | 3.044 | 0.000 | $74.73 |
| 0919 | 0304 | NORTH WELD COUNTY WATER (NWC) | 0.000 | 0.000 | $0.00 |
| 0919 | 0301 | NORTHERN COLORADO WATER (NCW) | 1.000 | 0.000 | $24.55 |
| 0919 | 0209 | SCHOOL DIST RE9-AULT | 0.000 | 34.176 | $946.33 |
| 0919 | 0100 | WELD COUNTY | 15.956 | 0.000 | $391.72 |
| 0919 | 1200 | WEST GREELEY CONSERVATION | 0.414 | 0.000 | $10.16 |
| Total | - | - | 33.993 | 34.176 | $1,780.86 |
The estimate of tax is based on the prior year mill levy and the 2025 projected assessment rates. Mill levies and tax estimates will be updated yearly on December 22nd for the current year. Additional information can be found at https://assessor.weld.gov



