Account: R0621301

April 1, 2026

Account Parcel Account Type Tax Year Buildings Actual Value Local Govt Assessed Value School Assessed Value
R0621301 095925026018 Residential 2026 1 398,969 24,940 28,130

Legal
EVS WB L18 BLK12 WILLOWBROOK

Subdivision Block Lot Land Economic Area
WILLOWBROOK SUB 12 18 WILLOWBROOK

Property Address Property City Section Township Range
4002 28TH AVE EVANS 25 05 66




Account Parcel Account Type Tax Year Buildings Actual Value Local Govt Assessed Value School Assessed Value
R0621301 095925026018 Residential 2026 1 398,969 24,940 28,130

Account Owner Name Address
R0621301 KRAUSMAN ALEX 4002 28TH AVE EVANS, CO 806209203
R0621301 FRY JACKSON


Account Parcel Account Type Tax Year Buildings Actual Value Local Govt Assessed Value School Assessed Value
R0621301 095925026018 Residential 2026 1 398,969 24,940 28,130

Reception Rec Date Type Grantor Grantee Doc Fee Sale Date Sale Price
2817730 NA SUB SUBDIVISION WILLOWBROOK 0.00 NA 0
2878152 08-28-2001 WD BOEHNER DALE L & DIANNA (JT 25%) & WILLOWBROOK DEVELOPMENT LLC 180.00 08-23-2001 1,800,000
2899335 11-09-2001 WD WILLOWBROOK DEVELOPMENT LLC RNV CONSTRUCTION LLC 36.00 11-07-2001 360,000
2907550 12-10-2001 QCN RNV CONSTRUCTION LLC HELMS MASONRY CORP 0.00 11-21-2001 0
2991812 10-01-2002 WD HELMS MASONRY CORP HOOD CAROL 17.35 09-27-2002 173,500
3429513 10-24-2006 PRDN HOOD CAROL SILBY CRYSTAL L 0.00 10-17-2006 0
4085091 02-23-2015 QCN SILBY CRYSTAL L CURRIER MICHAEL ALAN 0.00 02-23-2015 0
4251669 11-07-2016 QCN CURRIER MICHAEL ALAN CURRIER CRYSTAL 0.00 11-07-2016 0
4508005 07-23-2019 WD CURRIER MICHAEL ALAN; CURRIER CRYSTAL BROWN TYLER W; BROWN LACIE J 30.00 07-22-2019 300,000
4773962 11-08-2021 WD BROWN TYLER W; BROWN LACIE J KRAUSMAN ALEX; FRY JACKSON 39.00 10-29-2021 390,000



Account Parcel Account Type Tax Year Buildings Actual Value Local Govt Assessed Value School Assessed Value
R0621301 095925026018 Residential 2026 1 398,969 24,940 28,130

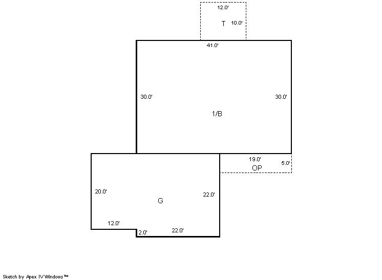
Building 1

AccountNo Building ID Occupancy
R0621301 1 Single Family Residential


ID Type NBHD Occupancy % Complete Bedrooms Baths
1 Residential 6E1062 Single Family Residential 100 3 2.00


ID Exterior Roof Cover Interior HVAC Perimeter Units Unit Type Make
1 Frame Hardboard Composition Shingle Drywall Central Air to Air 0 0 NA NA


ID Square Ft Condo SF Total Basement SF Finished Basement SF Garage SF Carport SF Balcony SF Porch SF
1 1,230 0 1,230 0 724 0 0 95


Built As Details for Building 1
ID Built As Square Ft Year Built Stories Length Width
1.00 Ranch 1 Story 1,230 2002 1 0 0


Additional Details for Building 1
ID Detail Type Description Units
1 Basement Total Basement SF 1230.00
1 Basement Walkout 1.00
1 Fixture Full Bath 2.00
1 Garage Attached 724.00
1 Porch Open Slab 120.00
1 Porch Slab Roof Ceil 95.00
1 Rough In Rough In 1.00





Account Parcel Account Type Tax Year Buildings Actual Value Local Govt Assessed Value School Assessed Value
R0621301 095925026018 Residential 2026 1 398,969 24,940 28,130

Type Code Description Actual Value Local Govt Assessed Value School Assessed Value Acres Land SqFt
Improvement 1212 SINGLE FAMILY RESIDENTIAL IMPROVEMENTS 318,969 19,940 22,490 0.000 0
Land 1112 SINGLE FAMILY RESIDENTIAL-LAND 80,000 5,000 5,640 0.146 6,360
Totals - - 398,969 24,940 28,130 0.146 6,360


Account Parcel Account Type Tax Year Buildings Actual Value Local Govt Assessed Value School Assessed Value
R0621301 095925026018 Residential 2026 1 398,969 24,940 28,130

Tax Area District ID District Name Local Govt
Mill Levy
School
Mill Levy
Estimated
Taxes
0699 0700 AIMS JUNIOR COLLEGE 6.313 0.000 $157.45
0699 0305 CENTRAL WELD COUNTY WATER (CWC) 0.000 0.000 $0.00
0699 0405 EVANS CITY 3.536 0.000 $88.19
0699 0534 EVANS FIRE 15.500 0.000 $386.57
0699 1050 HIGH PLAINS LIBRARY 3.044 0.000 $75.92
0699 0301 NORTHERN COLORADO WATER (NCW) 1.000 0.000 $24.94
0699 0206 SCHOOL DIST 6-GREELEY 0.000 47.615 $1,339.41
0699 0100 WELD COUNTY 15.956 0.000 $397.94
0699 1200 WEST GREELEY CONSERVATION 0.414 0.000 $10.33
Total - - 45.763 47.615 $2,480.74


The estimate of tax is based on the prior year mill levy and the 2025 projected assessment rates. Mill levies and tax estimates will be updated yearly on December 22nd for the current year. Additional information can be found at https://assessor.weld.gov










Select Reports to Print: