Account: R0623501

April 1, 2026

Account Parcel Account Type Tax Year Buildings Actual Value Local Govt Assessed Value School Assessed Value
R0623501 095925027018 Residential 2026 1 391,726 24,480 27,620

Legal
EVS WB L18 BLK13 WILLOWBROOK

Subdivision Block Lot Land Economic Area
WILLOWBROOK SUB 13 18 WILLOWBROOK

Property Address Property City Section Township Range
2605 WHARF ST EVANS 25 05 66




Account Parcel Account Type Tax Year Buildings Actual Value Local Govt Assessed Value School Assessed Value
R0623501 095925027018 Residential 2026 1 391,726 24,480 27,620

Account Owner Name Address
R0623501 LINN JACOB 2605 WHARF ST EVANS, CO 806209208
R0623501 HOLT AMBER


Account Parcel Account Type Tax Year Buildings Actual Value Local Govt Assessed Value School Assessed Value
R0623501 095925027018 Residential 2026 1 391,726 24,480 27,620

Reception Rec Date Type Grantor Grantee Doc Fee Sale Date Sale Price
2817730 NA SUB SUBDIVISION WILLOWBROOK 0.00 NA 0
2878152 08-28-2001 WD BOEHNER DALE L & DIANNA (JT 25%) & WILLOWBROOK DEVELOPMENT LLC 180.00 08-23-2001 1,800,000
2899776 11-13-2001 WD WILLOWBROOK DEVELOPMENT LLC PIERUCCINI MIKE 42.90 11-07-2001 429,000
2939822 04-04-2002 WD PIERUCCINI MIKE JOHNSON MELVIN C DBA & MC BUILDERS 8.30 04-02-2002 83,000
3100356 08-27-2003 WD JOHNSON MELVIN C DBA RAINWATER BERDET J 16.29 08-13-2003 162,900
3329442 10-06-2005 QCN RAINWATER BERDETE SANTANA CHRISTOPHER & 0.00 10-04-2005 0
3474187 05-07-2007 PTD WELD CO PUBLIC TRUSTEE LASALLE BANK NATIONAL 0.00 05-07-2007 0
3538081 02-28-2008 SWD LASALLE BANK NATIONAL ASSOCIATION WAGGENER JOSHUA R & 13.00 09-13-2007 130,000
4434657 09-28-2018 WD WAGGENER JACKIE L; WAGGENER JOSHUA R LINN JACOB; HOLT AMBER 28.49 09-27-2018 284,900



Account Parcel Account Type Tax Year Buildings Actual Value Local Govt Assessed Value School Assessed Value
R0623501 095925027018 Residential 2026 1 391,726 24,480 27,620

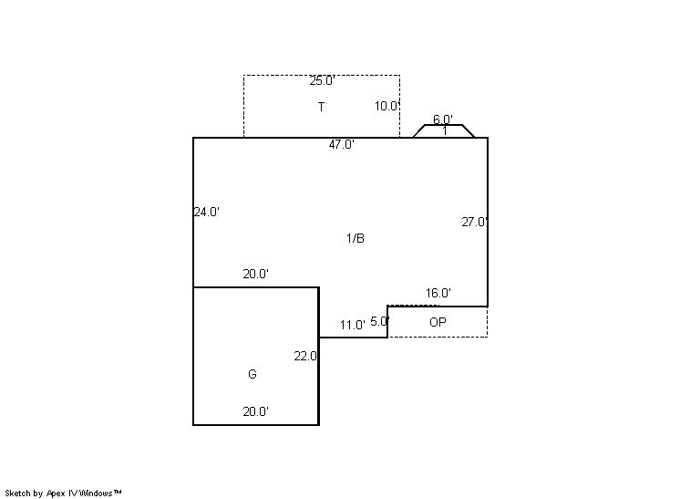
Building 1

AccountNo Building ID Occupancy
R0623501 1 Single Family Residential


ID Type NBHD Occupancy % Complete Bedrooms Baths
1 Residential 6E1062 Single Family Residential 100 3 2.00


ID Exterior Roof Cover Interior HVAC Perimeter Units Unit Type Make
1 Frame Vinyl Composition Shingle Drywall Central Air to Air 0 0 NA NA


ID Square Ft Condo SF Total Basement SF Finished Basement SF Garage SF Carport SF Balcony SF Porch SF
1 1,280 0 1,264 0 440 0 0 250


Built As Details for Building 1
ID Built As Square Ft Year Built Stories Length Width
1.00 Ranch 1 Story 1,280 2003 1 0 0


Additional Details for Building 1
ID Detail Type Description Units
1 Basement Total Basement SF 1264.00
1 Fixture Full Bath 2.00
1 Garage Attached 440.00
1 Porch Open Slab 250.00
1 Porch Slab Roof Ceil 82.00
1 Rough In Rough In 1.00





Account Parcel Account Type Tax Year Buildings Actual Value Local Govt Assessed Value School Assessed Value
R0623501 095925027018 Residential 2026 1 391,726 24,480 27,620

Type Code Description Actual Value Local Govt Assessed Value School Assessed Value Acres Land SqFt
Improvement 1212 SINGLE FAMILY RESIDENTIAL IMPROVEMENTS 311,726 19,480 21,980 0.000 0
Land 1112 SINGLE FAMILY RESIDENTIAL-LAND 80,000 5,000 5,640 0.146 6,350
Totals - - 391,726 24,480 27,620 0.146 6,350


Account Parcel Account Type Tax Year Buildings Actual Value Local Govt Assessed Value School Assessed Value
R0623501 095925027018 Residential 2026 1 391,726 24,480 27,620

Tax Area District ID District Name Local Govt
Mill Levy
School
Mill Levy
Estimated
Taxes
0699 0700 AIMS JUNIOR COLLEGE 6.313 0.000 $154.54
0699 0305 CENTRAL WELD COUNTY WATER (CWC) 0.000 0.000 $0.00
0699 0405 EVANS CITY 3.536 0.000 $86.56
0699 0534 EVANS FIRE 15.500 0.000 $379.44
0699 1050 HIGH PLAINS LIBRARY 3.044 0.000 $74.52
0699 0301 NORTHERN COLORADO WATER (NCW) 1.000 0.000 $24.48
0699 0206 SCHOOL DIST 6-GREELEY 0.000 47.615 $1,315.13
0699 0100 WELD COUNTY 15.956 0.000 $390.60
0699 1200 WEST GREELEY CONSERVATION 0.414 0.000 $10.13
Total - - 45.763 47.615 $2,435.40


The estimate of tax is based on the prior year mill levy and the 2025 projected assessment rates. Mill levies and tax estimates will be updated yearly on December 22nd for the current year. Additional information can be found at https://assessor.weld.gov










Select Reports to Print: