Account: R0624601

April 1, 2026

Account Parcel Account Type Tax Year Buildings Actual Value Local Govt Assessed Value School Assessed Value
R0624601 095925028007 Residential 2026 1 402,247 25,140 28,360

Legal
EVS WB L7 BLK14 WILLOWBROOK

Subdivision Block Lot Land Economic Area
WILLOWBROOK SUB 14 7 WILLOWBROOK

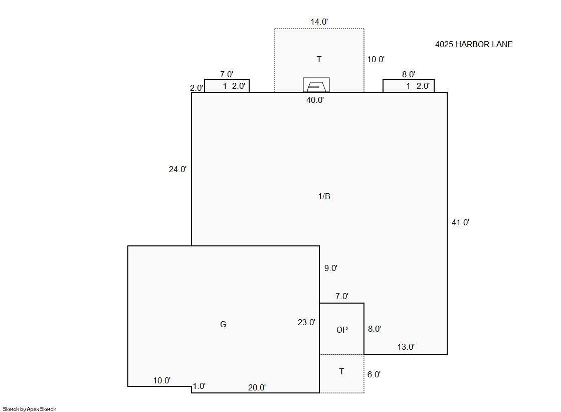
Property Address Property City Section Township Range
4025 HARBOR LN EVANS 25 05 66




Account Parcel Account Type Tax Year Buildings Actual Value Local Govt Assessed Value School Assessed Value
R0624601 095925028007 Residential 2026 1 402,247 25,140 28,360

Account Owner Name Address
R0624601 ESPINO FELIPE 4025 HARBOR LN EVANS, CO 806209221


Account Parcel Account Type Tax Year Buildings Actual Value Local Govt Assessed Value School Assessed Value
R0624601 095925028007 Residential 2026 1 402,247 25,140 28,360

Reception Rec Date Type Grantor Grantee Doc Fee Sale Date Sale Price
2817730 NA SUB SUBDIVISION WILLOWBROOK 0.00 NA 0
2878152 08-28-2001 WD BOEHNER DALE L & DIANNA (JT 25%) & WILLOWBROOK DEVELOPMENT LLC 180.00 08-23-2001 1,800,000
2934542 03-19-2002 WD WILLOWBROOK DEVELOPMENT LLC BUIE NATE 11.70 03-15-2002 117,000
2984356 09-03-2002 QCN BUIE NATE PRECISION HOME BUILDINGS LLC 0.00 09-03-2002 0
2984357 09-03-2002 WD PRECISION HOME BUILDINGS LLC CARLSON ERIC J 17.42 08-30-2002 174,200
4223383 07-29-2016 WD CARLSON ERIC J MCKAY TANNER 24.20 07-28-2016 242,000
4516576 08-22-2019 WD MCKAY TANNER ESPINO FELIPE 31.00 08-20-2019 310,000



Account Parcel Account Type Tax Year Buildings Actual Value Local Govt Assessed Value School Assessed Value
R0624601 095925028007 Residential 2026 1 402,247 25,140 28,360

Building 1

AccountNo Building ID Occupancy
R0624601 1 Single Family Residential


ID Type NBHD Occupancy % Complete Bedrooms Baths
1 Residential 6E1062 Single Family Residential 100 3 2.00


ID Exterior Roof Cover Interior HVAC Perimeter Units Unit Type Make
1 Frame Hardboard Composition Shingle Drywall Central Air to Air 170 0 NA NA


ID Square Ft Condo SF Total Basement SF Finished Basement SF Garage SF Carport SF Balcony SF Porch SF
1 1,274 0 1,244 0 680 0 0 182


Built As Details for Building 1
ID Built As Square Ft Year Built Stories Length Width
1.00 Ranch 1 Story 1,274 2002 1 0 0


Additional Details for Building 1
ID Detail Type Description Units
1 Add On Fireplace Gas 2.00
1 Basement Total Basement SF 1244.00
1 Fixture Full Bath 2.00
1 Garage Attached 680.00
1 Porch Open Slab 182.00
1 Porch Slab Roof Ceil 56.00
1 Rough In Rough In 1.00





Account Parcel Account Type Tax Year Buildings Actual Value Local Govt Assessed Value School Assessed Value
R0624601 095925028007 Residential 2026 1 402,247 25,140 28,360

Type Code Description Actual Value Local Govt Assessed Value School Assessed Value Acres Land SqFt
Improvement 1212 SINGLE FAMILY RESIDENTIAL IMPROVEMENTS 322,247 20,140 22,720 0.000 0
Land 1112 SINGLE FAMILY RESIDENTIAL-LAND 80,000 5,000 5,640 0.173 7,549
Totals - - 402,247 25,140 28,360 0.173 7,549


Account Parcel Account Type Tax Year Buildings Actual Value Local Govt Assessed Value School Assessed Value
R0624601 095925028007 Residential 2026 1 402,247 25,140 28,360

Tax Area District ID District Name Local Govt
Mill Levy
School
Mill Levy
Estimated
Taxes
0699 0700 AIMS JUNIOR COLLEGE 6.313 0.000 $158.71
0699 0305 CENTRAL WELD COUNTY WATER (CWC) 0.000 0.000 $0.00
0699 0405 EVANS CITY 3.536 0.000 $88.90
0699 0534 EVANS FIRE 15.500 0.000 $389.67
0699 1050 HIGH PLAINS LIBRARY 3.044 0.000 $76.53
0699 0301 NORTHERN COLORADO WATER (NCW) 1.000 0.000 $25.14
0699 0206 SCHOOL DIST 6-GREELEY 0.000 47.615 $1,350.36
0699 0100 WELD COUNTY 15.956 0.000 $401.13
0699 1200 WEST GREELEY CONSERVATION 0.414 0.000 $10.41
Total - - 45.763 47.615 $2,500.84


The estimate of tax is based on the prior year mill levy and the 2025 projected assessment rates. Mill levies and tax estimates will be updated yearly on December 22nd for the current year. Additional information can be found at https://assessor.weld.gov










Select Reports to Print: