Account: R0624901

April 1, 2026

Account Parcel Account Type Tax Year Buildings Actual Value Local Govt Assessed Value School Assessed Value
R0624901 095925028010 Residential 2026 1 376,189 23,510 26,520

Legal
EVS WB L10 BLK14 WILLOWBROOK

Subdivision Block Lot Land Economic Area
WILLOWBROOK SUB 14 10 WILLOWBROOK

Property Address Property City Section Township Range
4016 25TH AVE EVANS 25 05 66




Account Parcel Account Type Tax Year Buildings Actual Value Local Govt Assessed Value School Assessed Value
R0624901 095925028010 Residential 2026 1 376,189 23,510 26,520

Account Owner Name Address
R0624901 GONZALES RAY 4016 25TH AVE EVANS, CO 806209211


Account Parcel Account Type Tax Year Buildings Actual Value Local Govt Assessed Value School Assessed Value
R0624901 095925028010 Residential 2026 1 376,189 23,510 26,520

Reception Rec Date Type Grantor Grantee Doc Fee Sale Date Sale Price
2817730 NA SUB SUBDIVISION WILLOWBROOK 0.00 NA 0
2878152 08-28-2001 WD BOEHNER DALE L & DIANNA (JT 25%) & WILLOWBROOK DEVELOPMENT LLC 180.00 08-23-2001 1,800,000
2996017 10-15-2002 WDN WILLOWBROOK DEVELOPMENT LLC JOURNEY HOMES LLC 0.00 10-11-2002 0
2996018 10-15-2002 WD JOURNEY HOMES LLC MARGETTS JAMES A & COLLEEN C 15.35 10-11-2002 153,500
3213592 08-30-2004 WD MARGETTS JAMES A & LOPEZ MERCED & 17.15 08-27-2004 171,500
3555242 05-20-2008 PTD LOPEZ MERCED & COLORADO HOUSING & FINANCE AUTH 0.00 05-19-2008 0
3559618 06-09-2008 SWDN COLORADO HOUSING & FINANCE AUTH SECRETARY HOUSING URBAN DEVELOPMENT 0.00 05-29-2008 0
3574484 08-26-2008 SWD SECRETARY HOUSING URBAN DEV ABRAHAMSON PATRICIA C 0.00 08-21-2008 115,200
4357274 12-04-2017 QCN ABRAHAMSON PATRICIA COLLEEN ISACKSON MOLLY CAROL 0.00 09-12-2008 0
4432005 09-19-2018 PRD ISACKSON MOLLY CAROL OCAMPO MANOLO (UND 50%) 12.75 09-17-2018 127,500
4432006 09-19-2018 WD ISACKSON MOLLY C (UND 50%) OCAMPO MANOLO 25.50 09-17-2018 127,500
4911448 07-26-2023 SWD OCAMPO MANOLO GONZALES RAY 40.00 07-26-2023 400,000



Account Parcel Account Type Tax Year Buildings Actual Value Local Govt Assessed Value School Assessed Value
R0624901 095925028010 Residential 2026 1 376,189 23,510 26,520

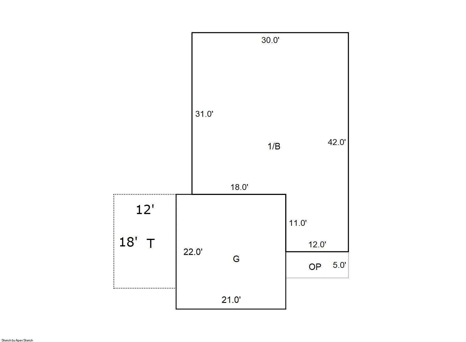
Building 1

AccountNo Building ID Occupancy
R0624901 1 Single Family Residential


ID Type NBHD Occupancy % Complete Bedrooms Baths
1 Residential 6E1062 Single Family Residential 100 3 2.00


ID Exterior Roof Cover Interior HVAC Perimeter Units Unit Type Make
1 Frame Vinyl Composition Shingle Drywall Central Air to Air 144 0 NA NA


ID Square Ft Condo SF Total Basement SF Finished Basement SF Garage SF Carport SF Balcony SF Porch SF
1 1,062 0 1,062 0 462 0 0 60


Built As Details for Building 1
ID Built As Square Ft Year Built Stories Length Width
1.00 Ranch 1 Story 1,062 2002 1 0 0


Additional Details for Building 1
ID Detail Type Description Units
1 Add On Fireplace Wood 1.00
1 Basement Total Basement SF 1062.00
1 Fixture Full Bath 2.00
1 Garage Attached 462.00
1 Porch Open Slab 216.00
1 Porch Slab Roof Ceil 60.00
1 Rough In Rough In 1.00





Account Parcel Account Type Tax Year Buildings Actual Value Local Govt Assessed Value School Assessed Value
R0624901 095925028010 Residential 2026 1 376,189 23,510 26,520

Type Code Description Actual Value Local Govt Assessed Value School Assessed Value Acres Land SqFt
Improvement 1212 SINGLE FAMILY RESIDENTIAL IMPROVEMENTS 296,189 18,510 20,880 0.000 0
Land 1112 SINGLE FAMILY RESIDENTIAL-LAND 80,000 5,000 5,640 0.148 6,432
Totals - - 376,189 23,510 26,520 0.148 6,432


Account Parcel Account Type Tax Year Buildings Actual Value Local Govt Assessed Value School Assessed Value
R0624901 095925028010 Residential 2026 1 376,189 23,510 26,520

Tax Area District ID District Name Local Govt
Mill Levy
School
Mill Levy
Estimated
Taxes
0699 0700 AIMS JUNIOR COLLEGE 6.313 0.000 $148.42
0699 0305 CENTRAL WELD COUNTY WATER (CWC) 0.000 0.000 $0.00
0699 0405 EVANS CITY 3.536 0.000 $83.13
0699 0534 EVANS FIRE 15.500 0.000 $364.41
0699 1050 HIGH PLAINS LIBRARY 3.044 0.000 $71.56
0699 0301 NORTHERN COLORADO WATER (NCW) 1.000 0.000 $23.51
0699 0206 SCHOOL DIST 6-GREELEY 0.000 47.615 $1,262.75
0699 0100 WELD COUNTY 15.956 0.000 $375.13
0699 1200 WEST GREELEY CONSERVATION 0.414 0.000 $9.73
Total - - 45.763 47.615 $2,338.64


The estimate of tax is based on the prior year mill levy and the 2025 projected assessment rates. Mill levies and tax estimates will be updated yearly on December 22nd for the current year. Additional information can be found at https://assessor.weld.gov










Select Reports to Print: