Account: R0627101

April 2, 2026

Account Parcel Account Type Tax Year Buildings Actual Value Local Govt Assessed Value School Assessed Value
R0627101 095925030010 Residential 2026 1 391,900 24,490 27,630

Legal
EVS WB L10 BLK16 WILLOWBROOK

Subdivision Block Lot Land Economic Area
WILLOWBROOK SUB 16 10 WILLOWBROOK

Property Address Property City Section Township Range
2504 WHARF ST EVANS 25 05 66




Account Parcel Account Type Tax Year Buildings Actual Value Local Govt Assessed Value School Assessed Value
R0627101 095925030010 Residential 2026 1 391,900 24,490 27,630

Account Owner Name Address
R0627101 RAMAKER JOSHUA F 2504 WHARF ST EVANS, CO 806209210


Account Parcel Account Type Tax Year Buildings Actual Value Local Govt Assessed Value School Assessed Value
R0627101 095925030010 Residential 2026 1 391,900 24,490 27,630

Reception Rec Date Type Grantor Grantee Doc Fee Sale Date Sale Price
2817730 NA SUB SUBDIVISION WILLOWBROOK 0.00 NA 0
2878152 08-28-2001 WD BOEHNER DALE L & DIANNA (JT 25%) & WILLOWBROOK DEVELOPMENT LLC 180.00 08-23-2001 1,800,000
2979212 08-19-2002 WD WILLOWBROOK DEVELOPMENT LLC HERNANDEZ RAMON JR & SUSAN A 15.93 08-14-2002 159,300
3003210 11-07-2002 WDN WILLOWBROOK DEVELOPMENT LLC J & J CONSTRUCTION OF NORTHERN COLO LLC 0.00 11-05-2002 0
3013671 12-11-2002 WDN J & J CONSTRUCTION OF NORTHERN COLO LLC HERNANDEZ RAMON JR & 0.00 12-11-2002 0
3399374 06-28-2006 PTD HERNANDEZ RAMON JR & WM SPECIALTY MORTGAGE LLC 0.00 06-28-2006 0
3422231 09-26-2006 SWD WM SPECIALTY MORTGAGE LLC RAMAKER JOSHUA F 15.20 09-25-2006 152,000



Account Parcel Account Type Tax Year Buildings Actual Value Local Govt Assessed Value School Assessed Value
R0627101 095925030010 Residential 2026 1 391,900 24,490 27,630

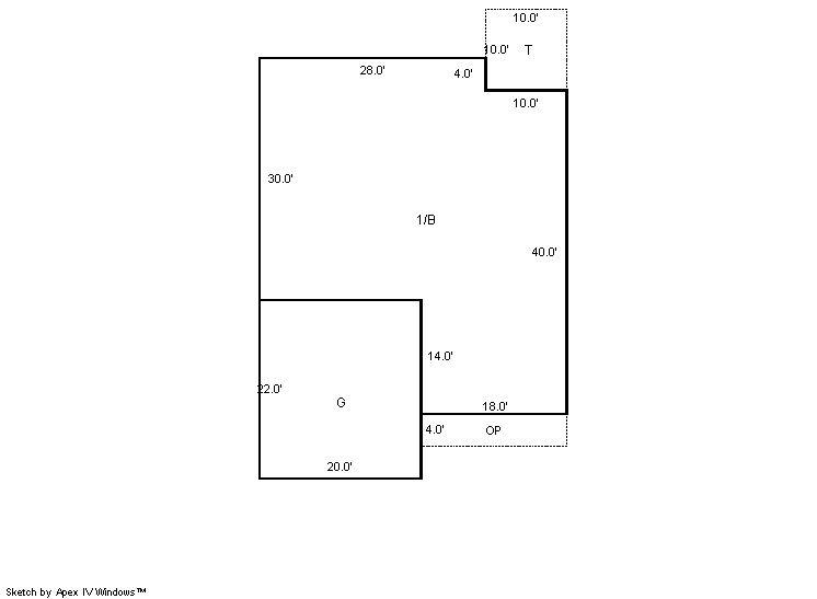
Building 1

AccountNo Building ID Occupancy
R0627101 1 Single Family Residential


ID Type NBHD Occupancy % Complete Bedrooms Baths
1 Residential 6E1062 Single Family Residential 100 3 2.00


ID Exterior Roof Cover Interior HVAC Perimeter Units Unit Type Make
1 Frame Hardboard Composition Shingle Drywall Central Air to Air 0 0 NA NA


ID Square Ft Condo SF Total Basement SF Finished Basement SF Garage SF Carport SF Balcony SF Porch SF
1 1,352 0 1,352 0 440 0 0 100


Built As Details for Building 1
ID Built As Square Ft Year Built Stories Length Width
1.00 Ranch 1 Story 1,352 2002 1 0 0


Additional Details for Building 1
ID Detail Type Description Units
1 Basement Total Basement SF 1352.00
1 Fixture Full Bath 2.00
1 Garage Attached 440.00
1 Porch Open Slab 100.00
1 Porch Slab Roof Ceil 72.00
1 Rough In Rough In 1.00





Account Parcel Account Type Tax Year Buildings Actual Value Local Govt Assessed Value School Assessed Value
R0627101 095925030010 Residential 2026 1 391,900 24,490 27,630

Type Code Description Actual Value Local Govt Assessed Value School Assessed Value Acres Land SqFt
Improvement 1212 SINGLE FAMILY RESIDENTIAL IMPROVEMENTS 311,900 19,490 21,990 0.000 0
Land 1112 SINGLE FAMILY RESIDENTIAL-LAND 80,000 5,000 5,640 0.146 6,350
Totals - - 391,900 24,490 27,630 0.146 6,350


Account Parcel Account Type Tax Year Buildings Actual Value Local Govt Assessed Value School Assessed Value
R0627101 095925030010 Residential 2026 1 391,900 24,490 27,630

Tax Area District ID District Name Local Govt
Mill Levy
School
Mill Levy
Estimated
Taxes
0699 0700 AIMS JUNIOR COLLEGE 6.313 0.000 $154.61
0699 0305 CENTRAL WELD COUNTY WATER (CWC) 0.000 0.000 $0.00
0699 0405 EVANS CITY 3.536 0.000 $86.60
0699 0534 EVANS FIRE 15.500 0.000 $379.60
0699 1050 HIGH PLAINS LIBRARY 3.044 0.000 $74.55
0699 0301 NORTHERN COLORADO WATER (NCW) 1.000 0.000 $24.49
0699 0206 SCHOOL DIST 6-GREELEY 0.000 47.615 $1,315.60
0699 0100 WELD COUNTY 15.956 0.000 $390.76
0699 1200 WEST GREELEY CONSERVATION 0.414 0.000 $10.14
Total - - 45.763 47.615 $2,436.34


The estimate of tax is based on the prior year mill levy and the 2025 projected assessment rates. Mill levies and tax estimates will be updated yearly on December 22nd for the current year. Additional information can be found at https://assessor.weld.gov










Select Reports to Print: