Account: R0629701

April 1, 2026

Account Parcel Account Type Tax Year Buildings Actual Value Local Govt Assessed Value School Assessed Value
R0629701 095925031014 Residential 2026 1 391,900 24,490 27,630

Legal
EVS WB L14 BLK17 WILLOWBROOK

Subdivision Block Lot Land Economic Area
WILLOWBROOK SUB 17 14 WILLOWBROOK

Property Address Property City Section Township Range
2510 HAWK DR EVANS 25 05 66




Account Parcel Account Type Tax Year Buildings Actual Value Local Govt Assessed Value School Assessed Value
R0629701 095925031014 Residential 2026 1 391,900 24,490 27,630

Account Owner Name Address
R0629701 NOHR CYNTHIA SUSAN 2510 HAWK DR EVANS, CO 806209213


Account Parcel Account Type Tax Year Buildings Actual Value Local Govt Assessed Value School Assessed Value
R0629701 095925031014 Residential 2026 1 391,900 24,490 27,630

Reception Rec Date Type Grantor Grantee Doc Fee Sale Date Sale Price
2817730 NA SUB SUBDIVISION WILLOWBROOK 0.00 NA 0
2878152 08-28-2001 WD BOEHNER DALE L & DIANNA (JT 25%) & WILLOWBROOK DEVELOPMENT LLC 180.00 08-23-2001 1,800,000
2973211 07-30-2002 QCN WILLOWBROOK DEVELOPMENT LLC J & J CONSTRUCTION NORTHERN COLORADO LLC 0.00 07-23-2002 0
2989851 09-24-2002 WD J & J CONSTRUCTION NORTHERN COLORADO LLC SHAFFER ROBERT D & MARIBEL 15.66 09-20-2002 156,600
3599508 01-14-2009 PTD WELD CO PUBLIC TRUSTEE ARROWHEAD HOME SERVICES 0.00 01-13-2009 0
3613521 03-31-2009 SWD ARROWHEAD HOME SERVICESLLC FLOREZ JESUS E 13.05 03-27-2009 130,500
4037267 08-11-2014 WD FLOREZ JESUS E NOHR CYNTHIA SUSAN 17.40 07-31-2014 174,000



Account Parcel Account Type Tax Year Buildings Actual Value Local Govt Assessed Value School Assessed Value
R0629701 095925031014 Residential 2026 1 391,900 24,490 27,630

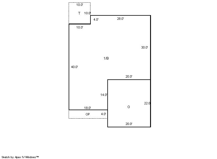
Building 1

AccountNo Building ID Occupancy
R0629701 1 Single Family Residential


ID Type NBHD Occupancy % Complete Bedrooms Baths
1 Residential 6E1062 Single Family Residential 100 3 2.00


ID Exterior Roof Cover Interior HVAC Perimeter Units Unit Type Make
1 Frame Hardboard Composition Shingle Drywall Central Air to Air 0 0 NA NA


ID Square Ft Condo SF Total Basement SF Finished Basement SF Garage SF Carport SF Balcony SF Porch SF
1 1,352 0 1,352 0 440 0 0 100


Built As Details for Building 1
ID Built As Square Ft Year Built Stories Length Width
1.00 Ranch 1 Story 1,352 2002 1 0 0


Additional Details for Building 1
ID Detail Type Description Units
1 Basement Total Basement SF 1352.00
1 Fixture Full Bath 2.00
1 Garage Attached 440.00
1 Porch Open Slab 100.00
1 Porch Slab Roof Ceil 72.00
1 Rough In Rough In 1.00





Account Parcel Account Type Tax Year Buildings Actual Value Local Govt Assessed Value School Assessed Value
R0629701 095925031014 Residential 2026 1 391,900 24,490 27,630

Type Code Description Actual Value Local Govt Assessed Value School Assessed Value Acres Land SqFt
Improvement 1212 SINGLE FAMILY RESIDENTIAL IMPROVEMENTS 311,900 19,490 21,990 0.000 0
Land 1112 SINGLE FAMILY RESIDENTIAL-LAND 80,000 5,000 5,640 0.150 6,526
Totals - - 391,900 24,490 27,630 0.150 6,526


Account Parcel Account Type Tax Year Buildings Actual Value Local Govt Assessed Value School Assessed Value
R0629701 095925031014 Residential 2026 1 391,900 24,490 27,630

Tax Area District ID District Name Local Govt
Mill Levy
School
Mill Levy
Estimated
Taxes
0699 0700 AIMS JUNIOR COLLEGE 6.313 0.000 $154.61
0699 0305 CENTRAL WELD COUNTY WATER (CWC) 0.000 0.000 $0.00
0699 0405 EVANS CITY 3.536 0.000 $86.60
0699 0534 EVANS FIRE 15.500 0.000 $379.60
0699 1050 HIGH PLAINS LIBRARY 3.044 0.000 $74.55
0699 0301 NORTHERN COLORADO WATER (NCW) 1.000 0.000 $24.49
0699 0206 SCHOOL DIST 6-GREELEY 0.000 47.615 $1,315.60
0699 0100 WELD COUNTY 15.956 0.000 $390.76
0699 1200 WEST GREELEY CONSERVATION 0.414 0.000 $10.14
Total - - 45.763 47.615 $2,436.34


The estimate of tax is based on the prior year mill levy and the 2025 projected assessment rates. Mill levies and tax estimates will be updated yearly on December 22nd for the current year. Additional information can be found at https://assessor.weld.gov










Select Reports to Print: