Account: R0633001

April 1, 2026

Account Parcel Account Type Tax Year Buildings Actual Value Local Govt Assessed Value School Assessed Value
R0633001 095925032007 Residential 2026 1 404,778 25,300 28,540

Legal
EVS WB L7 BLK18 WILLOWBROOK

Subdivision Block Lot Land Economic Area
WILLOWBROOK SUB 18 7 WILLOWBROOK

Property Address Property City Section Township Range
2708 WATER FRONT ST EVANS 25 05 66




Account Parcel Account Type Tax Year Buildings Actual Value Local Govt Assessed Value School Assessed Value
R0633001 095925032007 Residential 2026 1 404,778 25,300 28,540

Account Owner Name Address
R0633001 GOMEZ MARIO R 2708 WATER FRONT ST EVANS, CO 806209218


Account Parcel Account Type Tax Year Buildings Actual Value Local Govt Assessed Value School Assessed Value
R0633001 095925032007 Residential 2026 1 404,778 25,300 28,540

Reception Rec Date Type Grantor Grantee Doc Fee Sale Date Sale Price
2817730 NA SUB SUBDIVISION WILLOWBROOK 0.00 NA 0
2878152 08-28-2001 WD BOEHNER DALE L & DIANNA (JT 25%) & WILLOWBROOK DEVELOPMENT LLC 180.00 08-23-2001 1,800,000
2899343 11-09-2001 WD WILLOWBROOK DEVELOPMENT LLC HOMES BY BATES CONSTRUCTION LLC 39.00 11-07-2001 390,000
2965047 06-27-2002 WD HOMES BY BATES CONSTRUCTION LLC GOMEZ MARIO R & 14.45 06-26-2002 144,500
5030108 05-19-2025 QCN GOMEZ DENISE M GOMEZ MARIO R 0.00 03-31-2025 0



Account Parcel Account Type Tax Year Buildings Actual Value Local Govt Assessed Value School Assessed Value
R0633001 095925032007 Residential 2026 1 404,778 25,300 28,540

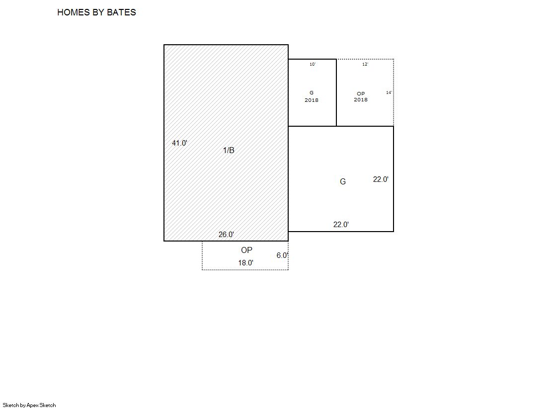
Building 1

AccountNo Building ID Occupancy
R0633001 1 Single Family Residential


ID Type NBHD Occupancy % Complete Bedrooms Baths
1 Residential 6E1062 Single Family Residential 100 4 2.00


ID Exterior Roof Cover Interior HVAC Perimeter Units Unit Type Make
1 Frame Vinyl Composition Shingle Drywall Central Air to Air 134 0 NA NA


ID Square Ft Condo SF Total Basement SF Finished Basement SF Garage SF Carport SF Balcony SF Porch SF
1 1,066 0 1,066 1,066 624 0 0 276


Built As Details for Building 1
ID Built As Square Ft Year Built Stories Length Width
1.00 Ranch 1 Story 1,066 2002 1 0 0


Additional Details for Building 1
ID Detail Type Description Units
1 Basement Finished 1066.00
1 Basement Total Basement SF 1066.00
1 Fixture Full Bath 3.00
1 Garage Attached 624.00
1 Porch Slab Roof Ceil 276.00





Account Parcel Account Type Tax Year Buildings Actual Value Local Govt Assessed Value School Assessed Value
R0633001 095925032007 Residential 2026 1 404,778 25,300 28,540

Type Code Description Actual Value Local Govt Assessed Value School Assessed Value Acres Land SqFt
Improvement 1212 SINGLE FAMILY RESIDENTIAL IMPROVEMENTS 324,778 20,300 22,900 0.000 0
Land 1112 SINGLE FAMILY RESIDENTIAL-LAND 80,000 5,000 5,640 0.193 8,419
Totals - - 404,778 25,300 28,540 0.193 8,419


Account Parcel Account Type Tax Year Buildings Actual Value Local Govt Assessed Value School Assessed Value
R0633001 095925032007 Residential 2026 1 404,778 25,300 28,540

Tax Area District ID District Name Local Govt
Mill Levy
School
Mill Levy
Estimated
Taxes
0699 0700 AIMS JUNIOR COLLEGE 6.313 0.000 $159.72
0699 0305 CENTRAL WELD COUNTY WATER (CWC) 0.000 0.000 $0.00
0699 0405 EVANS CITY 3.536 0.000 $89.46
0699 0534 EVANS FIRE 15.500 0.000 $392.15
0699 1050 HIGH PLAINS LIBRARY 3.044 0.000 $77.01
0699 0301 NORTHERN COLORADO WATER (NCW) 1.000 0.000 $25.30
0699 0206 SCHOOL DIST 6-GREELEY 0.000 47.615 $1,358.93
0699 0100 WELD COUNTY 15.956 0.000 $403.69
0699 1200 WEST GREELEY CONSERVATION 0.414 0.000 $10.47
Total - - 45.763 47.615 $2,516.74


The estimate of tax is based on the prior year mill levy and the 2025 projected assessment rates. Mill levies and tax estimates will be updated yearly on December 22nd for the current year. Additional information can be found at https://assessor.weld.gov










Select Reports to Print: