Account: R0660701

April 4, 2026

Account Parcel Account Type Tax Year Buildings Actual Value Local Govt Assessed Value School Assessed Value
R0660701 147104205003 Residential 2026 1 521,394 32,590 36,760

Legal
FTL 3CC L3 BLK4 COYOTE CREEK FG#3

Subdivision Block Lot Land Economic Area
COYOTE CREEK FG#3 4 3 COYOTE CREEK

Property Address Property City Section Township Range
316 MOUNTAIN VIEW AVE FORT LUPTON 04 01 66




Account Parcel Account Type Tax Year Buildings Actual Value Local Govt Assessed Value School Assessed Value
R0660701 147104205003 Residential 2026 1 521,394 32,590 36,760

Account Owner Name Address
R0660701 BARRON PATRICIA A 316 MOUNTAIN VIEW AVE FORT LUPTON, CO 806212732


Account Parcel Account Type Tax Year Buildings Actual Value Local Govt Assessed Value School Assessed Value
R0660701 147104205003 Residential 2026 1 521,394 32,590 36,760

Reception Rec Date Type Grantor Grantee Doc Fee Sale Date Sale Price
2832671 NA SUB SUBDIVISION COYOTE CREEK FG #3 0.00 NA 0
2863062 07-03-2001 WD MATRIX FUNDING CORP LIFESTYLE HOMES INC 60.72 06-28-2001 607,200
2863557 07-06-2001 WDN LIFESTYLE HOMES INC CLARKSON LAND LLC 0.00 06-28-2001 0
2962712 06-20-2002 WD CLARKSON LAND LLC LIFESTYLE HOMES INC 5.00 06-19-2002 50,000
3144254 01-14-2004 QCN LIFESTYLE HOMES INC CLARKSON JOHN R 0.00 01-13-2004 0
3589216 11-12-2008 QCN CLARKSON JOHN R LIFETYLE HOMES LLC 0.00 11-07-2008 0
3717059 09-08-2010 WD LIFESTYLE HOMES LLC BARRON PATRICIA A 18.00 09-07-2010 180,000



Account Parcel Account Type Tax Year Buildings Actual Value Local Govt Assessed Value School Assessed Value
R0660701 147104205003 Residential 2026 1 521,394 32,590 36,760

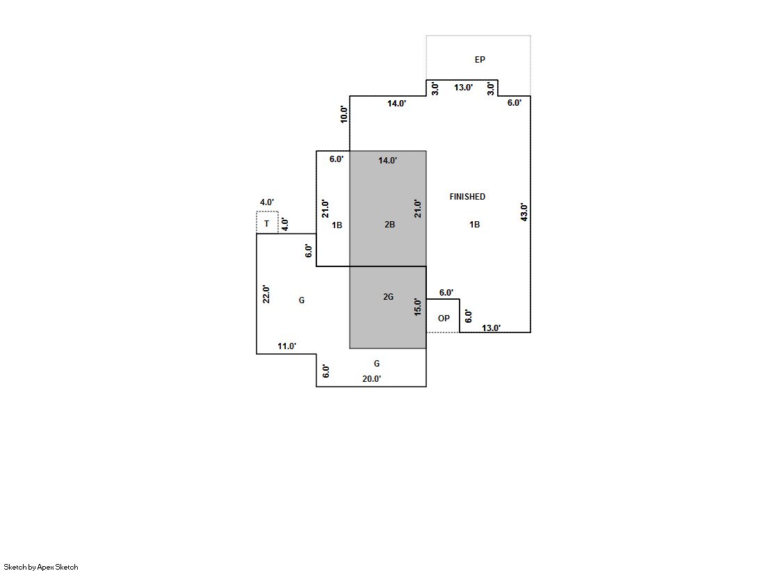
Building 1

AccountNo Building ID Occupancy
R0660701 1 Single Family Residential


ID Type NBHD Occupancy % Complete Bedrooms Baths
1 Residential 4F3002 Single Family Residential 100 4 4.00


ID Exterior Roof Cover Interior HVAC Perimeter Units Unit Type Make
1 Frame Hardboard Composition Shingle Drywall Central Air to Air 270 0 NA NA


ID Square Ft Condo SF Total Basement SF Finished Basement SF Garage SF Carport SF Balcony SF Porch SF
1 1,884 0 1,380 1,380 682 0 0 16


Built As Details for Building 1
ID Built As Square Ft Year Built Stories Length Width
1.00 2 Story 1,884 2002 2 0 0


Additional Details for Building 1
ID Detail Type Description Units
1 Add On Fireplace Gas 1.00
1 Basement Finished 1380.00
1 Basement Total Basement SF 1380.00
1 Fixture Full Bath 3.00
1 Fixture Half Bath 1.00
1 Garage Attached 682.00
1 Porch Encl Solid Wall 170.00
1 Porch Open Slab 16.00
1 Porch Slab Roof Ceil 36.00





Account Parcel Account Type Tax Year Buildings Actual Value Local Govt Assessed Value School Assessed Value
R0660701 147104205003 Residential 2026 1 521,394 32,590 36,760

Type Code Description Actual Value Local Govt Assessed Value School Assessed Value Acres Land SqFt
Improvement 1212 SINGLE FAMILY RESIDENTIAL IMPROVEMENTS 426,394 26,650 30,060 0.000 0
Land 1112 SINGLE FAMILY RESIDENTIAL-LAND 95,000 5,940 6,700 0.166 7,243
Totals - - 521,394 32,590 36,760 0.166 7,243


Account Parcel Account Type Tax Year Buildings Actual Value Local Govt Assessed Value School Assessed Value
R0660701 147104205003 Residential 2026 1 521,394 32,590 36,760

Tax Area District ID District Name Local Govt
Mill Levy
School
Mill Levy
Estimated
Taxes
0882 0700 AIMS JUNIOR COLLEGE 6.313 0.000 $205.74
0882 0302 CENTRAL COLORADO WATER (CCW) 0.980 0.000 $31.94
0882 0309 CENTRAL COLORADO WATER SUBDISTRICT (CCS) 1.462 0.000 $47.65
0882 0407 FORT LUPTON CITY 42.931 0.000 $1,399.12
0882 0506 FORT LUPTON FIRE 9.357 0.000 $304.94
0882 1050 HIGH PLAINS LIBRARY 3.044 0.000 $99.20
0882 0301 NORTHERN COLORADO WATER (NCW) 1.000 0.000 $32.59
0882 0208 SCHOOL DIST RE8-FORT LUPTON AND DACONO 0.000 18.198 $668.96
0882 0100 WELD COUNTY 15.956 0.000 $520.01
Total - - 81.043 18.198 $3,310.15


The estimate of tax is based on the prior year mill levy and the 2025 projected assessment rates. Mill levies and tax estimates will be updated yearly on December 22nd for the current year. Additional information can be found at https://assessor.weld.gov










Select Reports to Print: