Account: R0693101
April 5, 2026
| Account | Parcel | Account Type | Tax Year | Buildings | Actual Value | Local Govt Assessed Value | School Assessed Value |
|---|---|---|---|---|---|---|---|
| R0693101 | 080532414001 | Residential | 2026 | 1 | 721,120 | 45,080 | 50,840 |
| Legal |
|---|
| GR 2PRR L1 BLK4 POUDRE RIVER RANCH 2ND FG |
| Subdivision | Block | Lot | Land Economic Area |
|---|---|---|---|
| POUDRE RIVER RANCH 2ND FG | 4 | 1 | POUDRE RIVER RANCH |
| Property Address | Property City | Section | Township | Range |
|---|---|---|---|---|
| 7510 POUDRE RIVER RD | GREELEY | 32 | 06 | 66 |
| Account | Parcel | Account Type | Tax Year | Buildings | Actual Value | Local Govt Assessed Value | School Assessed Value |
|---|---|---|---|---|---|---|---|
| R0693101 | 080532414001 | Residential | 2026 | 1 | 721,120 | 45,080 | 50,840 |
| Account | Owner Name | Address |
|---|---|---|
| R0693101 | GARRETT RUSSELL L | 7510 POUDRE RIVER RD GREELEY, CO 806349381 |
| R0693101 | GARRETT CATHLEEN R |
| Account | Parcel | Account Type | Tax Year | Buildings | Actual Value | Local Govt Assessed Value | School Assessed Value |
|---|---|---|---|---|---|---|---|
| R0693101 | 080532414001 | Residential | 2026 | 1 | 721,120 | 45,080 | 50,840 |
| Reception | Rec Date | Type | Grantor | Grantee | Doc Fee | Sale Date | Sale Price |
|---|---|---|---|---|---|---|---|
| 2826681 | NA | SUB | SUBDIVISION | POUDRE RIVER RANCH 2ND FG | 0.00 | NA | 0 |
| 2883887 | 09-17-2001 | QCN | ORR ED & SUSIE ANN | POUDRE RIVER RANCH COMPANY INC | 0.00 | 05-31-2001 | 0 |
| 3325057 | 09-22-2005 | WD | POUDRE RIVER RANCH COMPANY INC | BECKER ROGER A | 5.70 | 09-20-2005 | 57,000 |
| 3365564 | 02-24-2006 | QCN | BECKER ROGER A | BECKER ROGER A & | 0.00 | 02-08-2006 | 0 |
| 3377727 | 04-10-2006 | QCN | BECKER ROGER A & | BECKER DOROTHY | 0.00 | 03-31-2006 | 0 |
| 3881090 | 10-15-2012 | WDE | BECKER DOROTHY | LANGMAN MICHAEL A | 37.25 | 10-12-2012 | 372,500 |
| 4577021 | 03-23-2020 | WD | LANGMAN MICHAEL A; PATCH HEIDI | GARRETT RUSSELL L; GARRETT CATHLEEN R | 51.50 | 03-20-2020 | 515,000 |
*If the hyperlink for the reception number does not work, try a manual search in the Clerk and Recorder records. Use the Grantor or Grantee in your search.
| Account | Parcel | Account Type | Tax Year | Buildings | Actual Value | Local Govt Assessed Value | School Assessed Value |
|---|---|---|---|---|---|---|---|
| R0693101 | 080532414001 | Residential | 2026 | 1 | 721,120 | 45,080 | 50,840 |
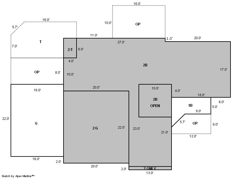
Building 1
| AccountNo | Building ID | Occupancy |
|---|---|---|
| R0693101 | 1 | Single Family Residential |
| ID | Type | NBHD | Occupancy | % Complete | Bedrooms | Baths |
|---|---|---|---|---|---|---|
| 1 | Residential | 2G1021 | Single Family Residential | 100 | 5 | 5.00 |
| ID | Exterior | Roof Cover | Interior | HVAC | Perimeter | Units | Unit Type | Make |
|---|---|---|---|---|---|---|---|---|
| 1 | Frame Stucco | Composition Shingle | Drywall | Central Air to Air | 0 | 0 | NA | NA |
| ID | Square Ft | Condo SF | Total Basement SF | Finished Basement SF | Garage SF | Carport SF | Balcony SF | Porch SF |
|---|---|---|---|---|---|---|---|---|
| 1 | 2,659 | 0 | 1,175 | 1,175 | 792 | 0 | 0 | 352 |
| ID | Built As | Square Ft | Year Built | Stories | Length | Width |
|---|---|---|---|---|---|---|
| 1.00 | 2 Story | 2,659 | 2005 | 2 | 0 | 0 |
| ID | Detail Type | Description | Units |
|---|---|---|---|
| 1 | Add On | Fireplace Gas | 3.00 |
| 1 | Basement | Finished | 1175.00 |
| 1 | Basement | Total Basement SF | 1175.00 |
| 1 | Fixture | Full Bath | 4.00 |
| 1 | Fixture | Half Bath | 1.00 |
| 1 | Garage | Attached | 792.00 |
| 1 | Porch | Open Slab | 212.00 |
| 1 | Porch | Slab Roof Ceil | 352.00 |
| Account | Parcel | Account Type | Tax Year | Buildings | Actual Value | Local Govt Assessed Value | School Assessed Value |
|---|---|---|---|---|---|---|---|
| R0693101 | 080532414001 | Residential | 2026 | 1 | 721,120 | 45,080 | 50,840 |
| Type | Code | Description | Actual Value | Local Govt Assessed Value | School Assessed Value | Acres | Land SqFt |
|---|---|---|---|---|---|---|---|
| Improvement | 1212 | SINGLE FAMILY RESIDENTIAL IMPROVEMENTS | 631,120 | 39,450 | 44,490 | 0.000 | 0 |
| Land | 1112 | SINGLE FAMILY RESIDENTIAL-LAND | 90,000 | 5,630 | 6,350 | 0.227 | 9,888 |
| Totals | - | - | 721,120 | 45,080 | 50,840 | 0.227 | 9,888 |
Comparable sales for your Residential or Commercial property may be found using our SALES SEARCH TOOL
Values are updated annually on May 1st for Real Property and June 15th for Personal Property and Oil and Gas.
| Account | Parcel | Account Type | Tax Year | Buildings | Actual Value | Local Govt Assessed Value | School Assessed Value |
|---|---|---|---|---|---|---|---|
| R0693101 | 080532414001 | Residential | 2026 | 1 | 721,120 | 45,080 | 50,840 |
| Tax Area | District ID | District Name | Local Govt Mill Levy |
School Mill Levy |
Estimated Taxes |
|---|---|---|---|---|---|
| 0446 | 0700 | AIMS JUNIOR COLLEGE | 6.313 | 0.000 | $284.59 |
| 0446 | 1051 | CLEARVIEW LIBRARY | 3.546 | 0.000 | $159.85 |
| 0446 | 0411 | GREELEY CITY | 11.274 | 0.000 | $508.23 |
| 0446 | 0301 | NORTHERN COLORADO WATER (NCW) | 1.000 | 0.000 | $45.08 |
| 0446 | 0204 | SCHOOL DIST RE4-WINDSOR | 0.000 | 46.646 | $2,371.48 |
| 0446 | 0100 | WELD COUNTY | 15.956 | 0.000 | $719.30 |
| 0446 | 1200 | WEST GREELEY CONSERVATION | 0.414 | 0.000 | $18.66 |
| Total | - | - | 38.503 | 46.646 | $4,107.20 |
The estimate of tax is based on the prior year mill levy and the 2025 projected assessment rates. Mill levies and tax estimates will be updated yearly on December 22nd for the current year. Additional information can be found at https://assessor.weld.gov



