*If the hyperlink for the reception number does not work, try a manual search in the Clerk and Recorder records. Use the Grantor or Grantee in your search.
Account
Parcel
Account Type
Tax Year
Buildings
Actual Value
Local Govt Assessed Value
School Assessed Value
R0705286
055532000032
Residential
2026
7
1,055,801
114,980
121,540
Building 1
AccountNo
Building ID
Occupancy
R0705286
1
Single Family Residential
ID
Type
NBHD
Occupancy
% Complete
Bedrooms
Baths
1
Residential
8R0005
Single Family Residential
100
4
4.00
ID
Exterior
Roof Cover
Interior
HVAC
Perimeter
Units
Unit Type
Make
1
Frame Siding
Composition Shingle
Drywall
Central Air to Air
0
0
NA
NA
ID
Square Ft
Condo SF
Total Basement SF
Finished Basement SF
Garage SF
Carport SF
Balcony SF
Porch SF
1
2,283
0
2,267
1,532
699
0
1,223
0
Built As Details for Building 1
ID
Built As
Square Ft
Year Built
Stories
Length
Width
1.00
Ranch 1 Story
2,283
1996
1
0
0
Additional Details for Building 1
ID
Detail Type
Description
Units
1
Add On
Fireplace Gas
1.00
1
Balcony
Cover Wood Balc
40.00
1
Balcony
Wood Wood Fin
1223.00
1
Basement
Finished
1532.00
1
Basement
Total Basement SF
2267.00
1
Fixture
Full Bath
3.00
1
Fixture
Half Bath
1.00
1
Fixture
Wet Bar
1.00
1
Garage
Attached
699.00
Building 2
AccountNo
Building ID
Occupancy
R0705286
2
Utility Building
ID
Type
NBHD
Occupancy
% Complete
Bedrooms
Baths
2
Out Building
NA
Utility Building
100
0
0.00
ID
Exterior
Roof Cover
Interior
HVAC
Perimeter
Units
Unit Type
Make
2
NA
NA
NA
Electric Baseboard
0
0
NA
NA
ID
Square Ft
Condo SF
Total Basement SF
Finished Basement SF
Garage SF
Carport SF
Balcony SF
Porch SF
2
471
0
0
0
0
0
0
0
Built As Details for Building 2
ID
Built As
Square Ft
Year Built
Stories
Length
Width
2.00
Utility Building
471
1996
0
0
0
Additional Details for Building 2
ID
Detail Type
Description
Units
2
Add On
Finished Space in OutBldg
471.00
2
Add On
OB Plumbing Fixture
3.00
2
Fixture
Full Bath
1.00
Building 3
AccountNo
Building ID
Occupancy
R0705286
3
Utility Building
ID
Type
NBHD
Occupancy
% Complete
Bedrooms
Baths
3
Out Building
NA
Utility Building
100
0
0.00
ID
Exterior
Roof Cover
Interior
HVAC
Perimeter
Units
Unit Type
Make
3
NA
NA
NA
None
112
0
NA
NA
ID
Square Ft
Condo SF
Total Basement SF
Finished Basement SF
Garage SF
Carport SF
Balcony SF
Porch SF
3
756
0
0
0
0
0
0
0
Built As Details for Building 3
ID
Built As
Square Ft
Year Built
Stories
Length
Width
3.00
Utility Building
756
1930
1
42
18
Additional Details for Building 3
ID
Detail Type
Description
Units
3
Add On
OB Open Shelter Lean To Wood
340.00
Building 4
AccountNo
Building ID
Occupancy
R0705286
4
Utility Building
ID
Type
NBHD
Occupancy
% Complete
Bedrooms
Baths
4
Out Building
NA
Utility Building
100
0
0.00
ID
Exterior
Roof Cover
Interior
HVAC
Perimeter
Units
Unit Type
Make
4
NA
NA
NA
Electric
88
0
NA
NA
ID
Square Ft
Condo SF
Total Basement SF
Finished Basement SF
Garage SF
Carport SF
Balcony SF
Porch SF
4
420
0
0
0
0
0
0
0
Built As Details for Building 4
ID
Built As
Square Ft
Year Built
Stories
Length
Width
4.00
Utility Building
420
1935
1
30
14
No Additional Details for Building 4
Building 5
AccountNo
Building ID
Occupancy
R0705286
5
Utility Building
ID
Type
NBHD
Occupancy
% Complete
Bedrooms
Baths
5
Out Building
NA
Utility Building
100
0
0.00
ID
Exterior
Roof Cover
Interior
HVAC
Perimeter
Units
Unit Type
Make
5
NA
NA
NA
None
84
0
NA
NA
ID
Square Ft
Condo SF
Total Basement SF
Finished Basement SF
Garage SF
Carport SF
Balcony SF
Porch SF
5
392
0
0
0
0
0
0
0
Built As Details for Building 5
ID
Built As
Square Ft
Year Built
Stories
Length
Width
5.00
Utility Building
392
1947
1
28
14
No Additional Details for Building 5
Building 6
AccountNo
Building ID
Occupancy
R0705286
6
Utility Building
ID
Type
NBHD
Occupancy
% Complete
Bedrooms
Baths
6
Out Building
NA
Utility Building
100
0
0.00
ID
Exterior
Roof Cover
Interior
HVAC
Perimeter
Units
Unit Type
Make
6
NA
NA
NA
None
66
0
NA
NA
ID
Square Ft
Condo SF
Total Basement SF
Finished Basement SF
Garage SF
Carport SF
Balcony SF
Porch SF
6
216
0
0
0
0
0
0
0
Built As Details for Building 6
ID
Built As
Square Ft
Year Built
Stories
Length
Width
6.00
Utility Building
216
1930
1
24
9
No Additional Details for Building 6
Building 7
AccountNo
Building ID
Occupancy
R0705286
7
Warehouse
ID
Type
NBHD
Occupancy
% Complete
Bedrooms
Baths
7
Commercial
NA
Warehouse
100
NA
0.00
ID
Exterior
Roof Cover
Interior
HVAC
Perimeter
Units
Unit Type
Make
7
NA
NA
NA
NA
364
0
NA
NA
ID
Square Ft
Condo SF
Total Basement SF
Finished Basement SF
Garage SF
Carport SF
Balcony SF
Porch SF
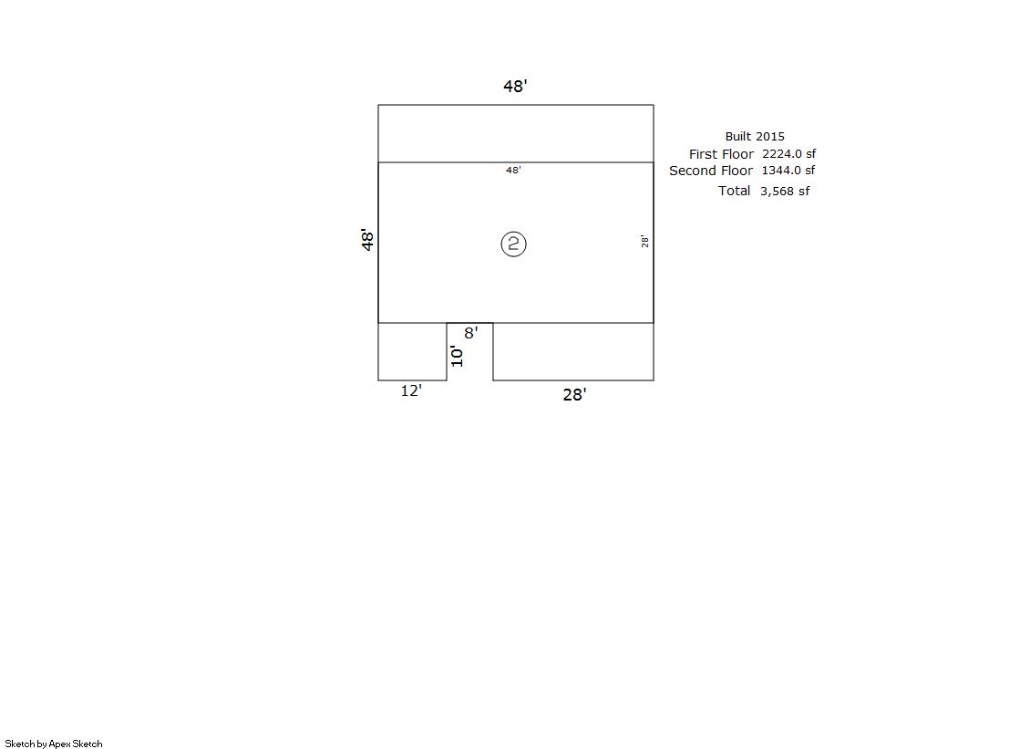
7
3,568
0
0
0
0
0
0
0
Built As Details for Building 7
ID
Built As
Square Ft
Year Built
Stories
Length
Width
7.00
Indust Lght Manufacturing
3,568
2015
2
0
0
No Additional Details for Building 7
Account
Parcel
Account Type
Tax Year
Buildings
Actual Value
Local Govt Assessed Value
School Assessed Value
R0705286
055532000032
Residential
2026
7
1,055,801
114,980
121,540
Type
Code
Description
Actual Value
Local Govt Assessed Value
School Assessed Value
Acres
Land SqFt
Improvement
1212
SINGLE FAMILY RESIDENTIAL IMPROVEMENTS
709,068
44,320
49,990
0.000
0
Improvement
3215
MANUFACTURED PROCESSING-IMPS
226,418
61,130
61,130
0.000
0
Land
1112
SINGLE FAMILY RESIDENTIAL-LAND
110,624
6,910
7,800
4.717
205,463
Land
3115
MANUFACTURED/PROCESSING-LAND
9,691
2,620
2,620
0.413
18,000
Totals
-
-
1,055,801
114,980
121,540
5.130
223,463
Comparable sales for your Residential or Commercial property may be found using our SALES SEARCH TOOL
Values are updated annually on May 1st for Real Property and June 15th for Personal Property and Oil and Gas.
Account
Parcel
Account Type
Tax Year
Buildings
Actual Value
Local Govt Assessed Value
School Assessed Value
R0705286
055532000032
Residential
2026
7
1,055,801
114,980
121,540
Tax Area
District ID
District Name
Local Govt Mill Levy
School Mill Levy
Estimated Taxes
0411
0700
AIMS JUNIOR COLLEGE
6.313
0.000
$725.87
0411
0501
AULT FIRE
7.266
0.000
$835.44
0411
1051
CLEARVIEW LIBRARY
3.546
0.000
$407.72
0411
0304
NORTH WELD COUNTY WATER (NWC)
0.000
0.000
$0.00
0411
0301
NORTHERN COLORADO WATER (NCW)
1.000
0.000
$114.98
0411
0204
SCHOOL DIST RE4-WINDSOR
0.000
46.646
$5,669.35
0411
0100
WELD COUNTY
15.956
0.000
$1,834.62
Total
-
-
34.081
46.646
$9,587.99
The estimate of tax is based on the prior year mill levy and the 2025 projected assessment rates. Mill levies and tax estimates will be updated yearly on December 22nd for the current year. Additional information can be found at https://assessor.weld.gov