Account: R0720001
April 1, 2026
| Account | Parcel | Account Type | Tax Year | Buildings | Actual Value | Local Govt Assessed Value | School Assessed Value |
|---|---|---|---|---|---|---|---|
| R0720001 | 105915403001 | Residential | 2026 | 1 | 484,181 | 30,260 | 34,130 |
| Legal |
|---|
| MIL 2RES L1 REUBEN EHRLICH 2ND |
| Subdivision | Block | Lot | Land Economic Area |
|---|---|---|---|
| REUBEN EHRLICH 2ND SUB | 1 | PEREGRINE/EHRLICH |
| Property Address | Property City | Section | Township | Range |
|---|---|---|---|---|
| 9525 COUNTY ROAD 44 | MILLIKEN | 15 | 04 | 67 |
| Account | Parcel | Account Type | Tax Year | Buildings | Actual Value | Local Govt Assessed Value | School Assessed Value |
|---|---|---|---|---|---|---|---|
| R0720001 | 105915403001 | Residential | 2026 | 1 | 484,181 | 30,260 | 34,130 |
| Account | Owner Name | Address |
|---|---|---|
| R0720001 | COPYRITE BARBARA A PLOE | C/O GENERAL DELIVERY PO BOX 206 JOHNSTOWN, CO 805340206 |
| Account | Parcel | Account Type | Tax Year | Buildings | Actual Value | Local Govt Assessed Value | School Assessed Value |
|---|---|---|---|---|---|---|---|
| R0720001 | 105915403001 | Residential | 2026 | 1 | 484,181 | 30,260 | 34,130 |
| Reception | Rec Date | Type | Grantor | Grantee | Doc Fee | Sale Date | Sale Price |
|---|---|---|---|---|---|---|---|
| 2823084 | NA | SUB | SUBDIVISION | REUBEN EHRLICH 2ND | 0.00 | NA | 0 |
| 3110560 | 09-26-2003 | DTHC | EHRLICH REUBEN N & RUBY MYREE | EHRLICH RUBY MYREE | 0.00 | 05-21-2002 | 0 |
| 3218586 | 09-14-2004 | WD | EHRLICH RUBY MYREE | SMALL ALAN | 8.49 | 09-03-2004 | 84,900 |
| 3264730 | 03-02-2005 | QCN | SMALL ALAN | SMALL ALAN M | 0.00 | 02-22-2005 | 0 |
| 3591009 | 11-21-2008 | PTD | SMALL ALAN M | HOMESALES INC | 0.00 | 11-20-2008 | 0 |
| 3604057 | 02-09-2009 | SWD | HOMESALES INC | PLOE BARBARA A | 8.75 | 01-28-2009 | 87,500 |
*If the hyperlink for the reception number does not work, try a manual search in the Clerk and Recorder records. Use the Grantor or Grantee in your search.
| Account | Parcel | Account Type | Tax Year | Buildings | Actual Value | Local Govt Assessed Value | School Assessed Value |
|---|---|---|---|---|---|---|---|
| R0720001 | 105915403001 | Residential | 2026 | 1 | 484,181 | 30,260 | 34,130 |
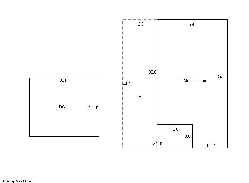
Building 1
| AccountNo | Building ID | Occupancy |
|---|---|---|
| R0720001 | 1 | Single Family Residential |
| ID | Type | NBHD | Occupancy | % Complete | Bedrooms | Baths |
|---|---|---|---|---|---|---|
| 1 | Manufactured Hm | 0R1009 | Single Family Residential | 100 | 3 | 2.00 |
| ID | Exterior | Roof Cover | Interior | HVAC | Perimeter | Units | Unit Type | Make |
|---|---|---|---|---|---|---|---|---|
| 1 | Hardboard Sheet | Shingle Comp | Drywall | Central Air to Air | 0 | 0 | NA | Fleetwood |
| ID | Square Ft | Condo SF | Total Basement SF | Finished Basement SF | Garage SF | Carport SF | Balcony SF | Porch SF |
|---|---|---|---|---|---|---|---|---|
| 1 | 960 | 0 | 0 | 0 | 480 | 0 | 0 | 624 |
| ID | Built As | Square Ft | Year Built | Stories | Length | Width |
|---|---|---|---|---|---|---|
| 1.00 | Mnfctrd Home 1 Story | 960 | 1998 | 1 | 44 | 24 |
| ID | Detail Type | Description | Units |
|---|---|---|---|
| 1 | Add On | Shed Frame | 64.00 |
| 1 | Fixture | Full Bath | 2.00 |
| 1 | Garage | Detached | 480.00 |
| 1 | Porch | Open Slab | 624.00 |
| Account | Parcel | Account Type | Tax Year | Buildings | Actual Value | Local Govt Assessed Value | School Assessed Value |
|---|---|---|---|---|---|---|---|
| R0720001 | 105915403001 | Residential | 2026 | 1 | 484,181 | 30,260 | 34,130 |
| Type | Code | Description | Actual Value | Local Govt Assessed Value | School Assessed Value | Acres | Land SqFt |
|---|---|---|---|---|---|---|---|
| Improvement | 1212 | SINGLE FAMILY RESIDENTIAL IMPROVEMENTS | 302,708 | 18,920 | 21,340 | 0.000 | 0 |
| Land | 1112 | SINGLE FAMILY RESIDENTIAL-LAND | 181,473 | 11,340 | 12,790 | 1.955 | 85,160 |
| Totals | - | - | 484,181 | 30,260 | 34,130 | 1.955 | 85,160 |
Comparable sales for your Residential or Commercial property may be found using our SALES SEARCH TOOL
Values are updated annually on May 1st for Real Property and June 15th for Personal Property and Oil and Gas.
| Account | Parcel | Account Type | Tax Year | Buildings | Actual Value | Local Govt Assessed Value | School Assessed Value |
|---|---|---|---|---|---|---|---|
| R0720001 | 105915403001 | Residential | 2026 | 1 | 484,181 | 30,260 | 34,130 |
| Tax Area | District ID | District Name | Local Govt Mill Levy |
School Mill Levy |
Estimated Taxes |
|---|---|---|---|---|---|
| 5732 | 0700 | AIMS JUNIOR COLLEGE | 6.313 | 0.000 | $191.03 |
| 5732 | 0510 | FRONT RANGE FIRE RESCUE FIRE PROTECTION DISTRICT | 11.483 | 0.000 | $347.48 |
| 5732 | 1050 | HIGH PLAINS LIBRARY | 3.044 | 0.000 | $92.11 |
| 5732 | 0421 | MILLIKEN TOWN | 26.301 | 0.000 | $795.87 |
| 5732 | 0301 | NORTHERN COLORADO WATER (NCW) | 1.000 | 0.000 | $30.26 |
| 5732 | 0205 | SCHOOL DIST RE5J-JOHNSTOWN | 0.000 | 36.271 | $1,237.93 |
| 5732 | 0901 | THOMPSON RIVER REC | 3.594 | 0.000 | $108.75 |
| 5732 | 0100 | WELD COUNTY | 15.956 | 0.000 | $482.83 |
| 5732 | 1200 | WEST GREELEY CONSERVATION | 0.414 | 0.000 | $12.53 |
| Total | - | - | 68.105 | 36.271 | $3,298.79 |
The estimate of tax is based on the prior year mill levy and the 2025 projected assessment rates. Mill levies and tax estimates will be updated yearly on December 22nd for the current year. Additional information can be found at https://assessor.weld.gov



