Account: R0738501

April 1, 2026

Account Parcel Account Type Tax Year Buildings Actual Value Local Govt Assessed Value School Assessed Value
R0738501 131313426001 Residential 2026 1 631,094 39,450 44,490

Legal
FRE NNCW L1 BLK8 NONAME CREEK WEST

Subdivision Block Lot Land Economic Area
NONAME CREEK WEST 8 1 NO NAME CREEK

Property Address Property City Section Township Range
9002 HARLEQUIN CIR FREDERICK 13 02 68




Account Parcel Account Type Tax Year Buildings Actual Value Local Govt Assessed Value School Assessed Value
R0738501 131313426001 Residential 2026 1 631,094 39,450 44,490

Account Owner Name Address
R0738501 JOHNSON LANCE A 9002 HARLEQUIN CIR FREDERICK, CO 805049756
R0738501 JOHNSON KATIE S


Account Parcel Account Type Tax Year Buildings Actual Value Local Govt Assessed Value School Assessed Value
R0738501 131313426001 Residential 2026 1 631,094 39,450 44,490

Reception Rec Date Type Grantor Grantee Doc Fee Sale Date Sale Price
2835138 NA SUB SUBDIVISION NONAME CREEK WEST 0.00 NA 0
3865912 08-14-2012 WD NO NAME CREEK LLC SAINT AUBYN HOMES LLC 23.20 08-10-2012 232,000
3890974 11-27-2012 SWD SAINT AUBYN HOMES LLC JOHNSON SAREDA G 28.97 11-19-2012 289,700
4358511 12-08-2017 BN JOHNSON SAREDA G; JOHNSON LAWRENCE R JOHNSON SAREDA G (BN); JOHNSON LAWREBCE R (BN) 0.00 12-07-2017 0
4528597 10-01-2019 WD JOHNSON SAREDA G (BN); JOHNSON LAWREBCE R (BN) JOHNSON LANCE A 40.00 09-27-2019 400,000
4542295 11-18-2019 QCN JOHNSON LANCE A JOHNSON KATIE S; JOHNSON LANCE A 0.00 10-24-2019 0



Account Parcel Account Type Tax Year Buildings Actual Value Local Govt Assessed Value School Assessed Value
R0738501 131313426001 Residential 2026 1 631,094 39,450 44,490

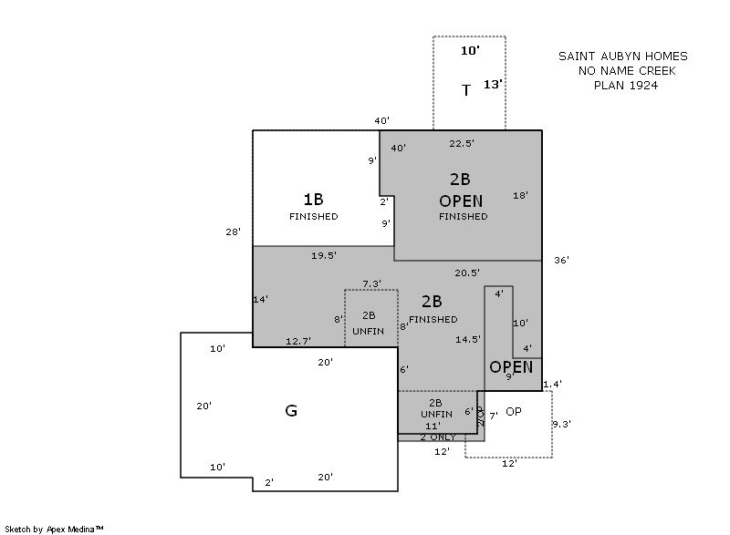
Building 1

AccountNo Building ID Occupancy
R0738501 1 Single Family Residential


ID Type NBHD Occupancy % Complete Bedrooms Baths
1 Residential 3K2026 Single Family Residential 100 5 4.00


ID Exterior Roof Cover Interior HVAC Perimeter Units Unit Type Make
1 Frame Hardboard Composition Shingle Drywall Central Air to Air 0 0 NA NA


ID Square Ft Condo SF Total Basement SF Finished Basement SF Garage SF Carport SF Balcony SF Porch SF
1 2,033 0 1,386 1,262 600 0 0 102


Built As Details for Building 1
ID Built As Square Ft Year Built Stories Length Width
1.00 2 Story 2,033 2012 2 0 0


Additional Details for Building 1
ID Detail Type Description Units
1 Add On Fireplace Gas 1.00
1 Basement Finished 1262.00
1 Basement Total Basement SF 1386.00
1 Fixture Full Bath 3.00
1 Fixture Half Bath 1.00
1 Garage Attached 600.00
1 Porch Open Slab 130.00
1 Porch Slab Roof Ceil 102.00
1 Rough In Rough In 1.00





Account Parcel Account Type Tax Year Buildings Actual Value Local Govt Assessed Value School Assessed Value
R0738501 131313426001 Residential 2026 1 631,094 39,450 44,490

Type Code Description Actual Value Local Govt Assessed Value School Assessed Value Acres Land SqFt
Improvement 1212 SINGLE FAMILY RESIDENTIAL IMPROVEMENTS 516,094 32,260 36,380 0.000 0
Land 1112 SINGLE FAMILY RESIDENTIAL-LAND 115,000 7,190 8,110 0.184 8,002
Totals - - 631,094 39,450 44,490 0.184 8,002


Account Parcel Account Type Tax Year Buildings Actual Value Local Govt Assessed Value School Assessed Value
R0738501 131313426001 Residential 2026 1 631,094 39,450 44,490

Tax Area District ID District Name Local Govt
Mill Levy
School
Mill Levy
Estimated
Taxes
1459 0900 CARBON VALLEY REC 4.427 0.000 $174.65
1459 0408 FREDERICK TOWN 6.555 0.000 $258.59
1459 0507 FREDERICK-FIRESTONE FIRE 15.559 0.000 $613.80
1459 1050 HIGH PLAINS LIBRARY 3.044 0.000 $120.09
1459 0301 NORTHERN COLORADO WATER (NCW) 1.000 0.000 $39.45
1459 0213 SCHOOL DIST RE1J-LONGMONT 0.000 57.717 $2,567.83
1459 0620 ST VRAIN SANITATION 0.316 0.000 $12.47
1459 0100 WELD COUNTY 15.956 0.000 $629.46
Total - - 46.857 57.717 $4,416.34


The estimate of tax is based on the prior year mill levy and the 2025 projected assessment rates. Mill levies and tax estimates will be updated yearly on December 22nd for the current year. Additional information can be found at https://assessor.weld.gov










Select Reports to Print: