Account: R0741101
April 1, 2026
| Account | Parcel | Account Type | Tax Year | Buildings | Actual Value | Local Govt Assessed Value | School Assessed Value |
|---|---|---|---|---|---|---|---|
| R0741101 | 131313427002 | Residential | 2026 | 1 | 585,454 | 36,590 | 41,280 |
| Legal |
|---|
| FRE NNCW L2 BLK9 NONAME CREEK WEST |
| Subdivision | Block | Lot | Land Economic Area |
|---|---|---|---|
| NONAME CREEK WEST | 9 | 2 | NO NAME CREEK |
| Property Address | Property City | Section | Township | Range |
|---|---|---|---|---|
| 9032 HARLEQUIN CIR | FREDERICK | 13 | 02 | 68 |
| Account | Parcel | Account Type | Tax Year | Buildings | Actual Value | Local Govt Assessed Value | School Assessed Value |
|---|---|---|---|---|---|---|---|
| R0741101 | 131313427002 | Residential | 2026 | 1 | 585,454 | 36,590 | 41,280 |
| Account | Owner Name | Address |
|---|---|---|
| R0741101 | WILSON STEPHEN F | 9032 HARLEQUIN CIR FREDERICK, CO 805049756 |
| R0741101 | WILSON NANCY J |
| Account | Parcel | Account Type | Tax Year | Buildings | Actual Value | Local Govt Assessed Value | School Assessed Value |
|---|---|---|---|---|---|---|---|
| R0741101 | 131313427002 | Residential | 2026 | 1 | 585,454 | 36,590 | 41,280 |
| Reception | Rec Date | Type | Grantor | Grantee | Doc Fee | Sale Date | Sale Price |
|---|---|---|---|---|---|---|---|
| 2835138 | NA | SUB | SUBDIVISION | NONAME CREEK WEST | 0.00 | NA | 0 |
| 3116647 | 10-14-2003 | WD | NO NAME CREEK LLC | ADAM PARKER CONSTRUCTION INC | 6.66 | 08-29-2003 | 66,600 |
| 3204856 | 08-03-2004 | WD | ADAM PARKER CONSTRUCTION INC | WILSON STEPHEN F & | 31.27 | 07-27-2004 | 312,700 |
*If the hyperlink for the reception number does not work, try a manual search in the Clerk and Recorder records. Use the Grantor or Grantee in your search.
| Account | Parcel | Account Type | Tax Year | Buildings | Actual Value | Local Govt Assessed Value | School Assessed Value |
|---|---|---|---|---|---|---|---|
| R0741101 | 131313427002 | Residential | 2026 | 1 | 585,454 | 36,590 | 41,280 |
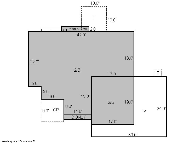
Building 1
| AccountNo | Building ID | Occupancy |
|---|---|---|
| R0741101 | 1 | Single Family Residential |
| ID | Type | NBHD | Occupancy | % Complete | Bedrooms | Baths |
|---|---|---|---|---|---|---|
| 1 | Residential | 3K2026 | Single Family Residential | 100 | 4 | 4.00 |
| ID | Exterior | Roof Cover | Interior | HVAC | Perimeter | Units | Unit Type | Make |
|---|---|---|---|---|---|---|---|---|
| 1 | Frame Hardboard | Composition Shingle | Drywall | Forced Air | 0 | 0 | NA | NA |
| ID | Square Ft | Condo SF | Total Basement SF | Finished Basement SF | Garage SF | Carport SF | Balcony SF | Porch SF |
|---|---|---|---|---|---|---|---|---|
| 1 | 2,421 | 0 | 1,022 | 0 | 720 | 0 | 0 | 81 |
| ID | Built As | Square Ft | Year Built | Stories | Length | Width |
|---|---|---|---|---|---|---|
| 1.00 | 2 Story | 2,421 | 2003 | 2 | 0 | 0 |
| ID | Detail Type | Description | Units |
|---|---|---|---|
| 1 | Add On | Fireplace Gas | 1.00 |
| 1 | Basement | Total Basement SF | 1022.00 |
| 1 | Fixture | Full Bath | 3.00 |
| 1 | Fixture | Half Bath | 1.00 |
| 1 | Garage | Attached | 720.00 |
| 1 | Porch | Open Slab | 109.00 |
| 1 | Porch | Slab Roof Ceil | 81.00 |
| 1 | Rough In | Rough In | 1.00 |
| Account | Parcel | Account Type | Tax Year | Buildings | Actual Value | Local Govt Assessed Value | School Assessed Value |
|---|---|---|---|---|---|---|---|
| R0741101 | 131313427002 | Residential | 2026 | 1 | 585,454 | 36,590 | 41,280 |
| Type | Code | Description | Actual Value | Local Govt Assessed Value | School Assessed Value | Acres | Land SqFt |
|---|---|---|---|---|---|---|---|
| Improvement | 1212 | SINGLE FAMILY RESIDENTIAL IMPROVEMENTS | 470,454 | 29,400 | 33,170 | 0.000 | 0 |
| Land | 1112 | SINGLE FAMILY RESIDENTIAL-LAND | 115,000 | 7,190 | 8,110 | 0.161 | 7,000 |
| Totals | - | - | 585,454 | 36,590 | 41,280 | 0.161 | 7,000 |
Comparable sales for your Residential or Commercial property may be found using our SALES SEARCH TOOL
Values are updated annually on May 1st for Real Property and June 15th for Personal Property and Oil and Gas.
| Account | Parcel | Account Type | Tax Year | Buildings | Actual Value | Local Govt Assessed Value | School Assessed Value |
|---|---|---|---|---|---|---|---|
| R0741101 | 131313427002 | Residential | 2026 | 1 | 585,454 | 36,590 | 41,280 |
| Tax Area | District ID | District Name | Local Govt Mill Levy |
School Mill Levy |
Estimated Taxes |
|---|---|---|---|---|---|
| 1459 | 0900 | CARBON VALLEY REC | 4.427 | 0.000 | $161.98 |
| 1459 | 0408 | FREDERICK TOWN | 6.555 | 0.000 | $239.85 |
| 1459 | 0507 | FREDERICK-FIRESTONE FIRE | 15.559 | 0.000 | $569.30 |
| 1459 | 1050 | HIGH PLAINS LIBRARY | 3.044 | 0.000 | $111.38 |
| 1459 | 0301 | NORTHERN COLORADO WATER (NCW) | 1.000 | 0.000 | $36.59 |
| 1459 | 0213 | SCHOOL DIST RE1J-LONGMONT | 0.000 | 57.717 | $2,382.56 |
| 1459 | 0620 | ST VRAIN SANITATION | 0.316 | 0.000 | $11.56 |
| 1459 | 0100 | WELD COUNTY | 15.956 | 0.000 | $583.83 |
| Total | - | - | 46.857 | 57.717 | $4,097.06 |
The estimate of tax is based on the prior year mill levy and the 2025 projected assessment rates. Mill levies and tax estimates will be updated yearly on December 22nd for the current year. Additional information can be found at https://assessor.weld.gov



