Account: R0743901

April 1, 2026

Account Parcel Account Type Tax Year Buildings Actual Value Local Govt Assessed Value School Assessed Value
R0743901 131313429002 Residential 2026 1 570,117 35,630 40,200

Legal
FRE NNCW L2 BLK11 NONAME CREEK WEST

Subdivision Block Lot Land Economic Area
NONAME CREEK WEST 11 2 NO NAME CREEK

Property Address Property City Section Township Range
9132 HARLEQUIN CIR FREDERICK 13 02 68




Account Parcel Account Type Tax Year Buildings Actual Value Local Govt Assessed Value School Assessed Value
R0743901 131313429002 Residential 2026 1 570,117 35,630 40,200

Account Owner Name Address
R0743901 MARTIN ROBIN R 9132 HARLEQUIN CIR FREDERICK, CO 805049753
R0743901 GORTER CRYSTAL D


Account Parcel Account Type Tax Year Buildings Actual Value Local Govt Assessed Value School Assessed Value
R0743901 131313429002 Residential 2026 1 570,117 35,630 40,200

Reception Rec Date Type Grantor Grantee Doc Fee Sale Date Sale Price
2835138 NA SUB SUBDIVISION NONAME CREEK WEST 0.00 NA 0
2978322 08-15-2002 WD NO NAME CREEK LLC DIETTE JEFFREY A 25.15 07-26-2002 251,500
3060960 05-09-2003 WD DIETTE JEFFREY A CONWAY ALLEN & KATHLEEN A 33.00 04-30-2003 330,000
4661220 12-16-2020 WDE CONWAY KATHLEEN A; CONWAY ALLEN MARTIN ROBIN R; GORTER CRYSTAL D 46.50 12-14-2020 465,000
4898502 05-16-2023 BN MARTIN ROBIN; GORTER CRYSTAL MARTIN ROBIN; GORTER CRYSTAL 0.00 05-05-2023 0



Account Parcel Account Type Tax Year Buildings Actual Value Local Govt Assessed Value School Assessed Value
R0743901 131313429002 Residential 2026 1 570,117 35,630 40,200

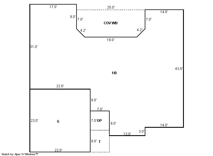
Building 1

AccountNo Building ID Occupancy
R0743901 1 Single Family Residential


ID Type NBHD Occupancy % Complete Bedrooms Baths
1 Residential 3K2026 Single Family Residential 100 3 2.00


ID Exterior Roof Cover Interior HVAC Perimeter Units Unit Type Make
1 Frame Stucco Composition Shingle Drywall Forced Air 0 0 NA NA


ID Square Ft Condo SF Total Basement SF Finished Basement SF Garage SF Carport SF Balcony SF Porch SF
1 1,890 0 1,890 0 506 0 241 49


Built As Details for Building 1
ID Built As Square Ft Year Built Stories Length Width
1.00 Ranch 1 Story 1,890 2002 1 0 0


Additional Details for Building 1
ID Detail Type Description Units
1 Add On Fireplace Gas 1.00
1 Balcony Cover Wood Balc 241.00
1 Basement Full Daylight 1.00
1 Basement Total Basement SF 1890.00
1 Fixture Full Bath 2.00
1 Garage Attached 506.00
1 Porch Slab Roof Ceil 49.00
1 Porch Slab w/Steps 56.00
1 Rough In Rough In 1.00





Account Parcel Account Type Tax Year Buildings Actual Value Local Govt Assessed Value School Assessed Value
R0743901 131313429002 Residential 2026 1 570,117 35,630 40,200

Type Code Description Actual Value Local Govt Assessed Value School Assessed Value Acres Land SqFt
Improvement 1212 SINGLE FAMILY RESIDENTIAL IMPROVEMENTS 455,117 28,440 32,090 0.000 0
Land 1112 SINGLE FAMILY RESIDENTIAL-LAND 115,000 7,190 8,110 0.161 7,000
Totals - - 570,117 35,630 40,200 0.161 7,000


Account Parcel Account Type Tax Year Buildings Actual Value Local Govt Assessed Value School Assessed Value
R0743901 131313429002 Residential 2026 1 570,117 35,630 40,200

Tax Area District ID District Name Local Govt
Mill Levy
School
Mill Levy
Estimated
Taxes
1459 0900 CARBON VALLEY REC 4.427 0.000 $157.73
1459 0408 FREDERICK TOWN 6.555 0.000 $233.55
1459 0507 FREDERICK-FIRESTONE FIRE 15.559 0.000 $554.37
1459 1050 HIGH PLAINS LIBRARY 3.044 0.000 $108.46
1459 0301 NORTHERN COLORADO WATER (NCW) 1.000 0.000 $35.63
1459 0213 SCHOOL DIST RE1J-LONGMONT 0.000 57.717 $2,320.22
1459 0620 ST VRAIN SANITATION 0.316 0.000 $11.26
1459 0100 WELD COUNTY 15.956 0.000 $568.51
Total - - 46.857 57.717 $3,989.74


The estimate of tax is based on the prior year mill levy and the 2025 projected assessment rates. Mill levies and tax estimates will be updated yearly on December 22nd for the current year. Additional information can be found at https://assessor.weld.gov










Select Reports to Print: