Account: R0759401

April 1, 2026

Account Parcel Account Type Tax Year Buildings Actual Value Local Govt Assessed Value School Assessed Value
R0759401 105912015029 Residential 2026 1 458,646 28,670 32,340

Legal
MIL SV L29 BLK1 SETTLERS VILLAGE

Subdivision Block Lot Land Economic Area
SETTLERS VILLAGE 1 29 SETTLERS VILLAGE

Property Address Property City Section Township Range
1763 E SUNSET CIR MILLIKEN 12 04 67




Account Parcel Account Type Tax Year Buildings Actual Value Local Govt Assessed Value School Assessed Value
R0759401 105912015029 Residential 2026 1 458,646 28,670 32,340

Account Owner Name Address
R0759401 ANDERSON BRADLEY S 1763 SUNSET CR MILLIKEN, CO 805433080
R0759401 ANDERSON TIFFANY M


Account Parcel Account Type Tax Year Buildings Actual Value Local Govt Assessed Value School Assessed Value
R0759401 105912015029 Residential 2026 1 458,646 28,670 32,340

Reception Rec Date Type Grantor Grantee Doc Fee Sale Date Sale Price
2833840 NA SUB SUBDIVISION SETTLERS VILLAGE 0.00 NA 0
4245042 10-14-2016 SWD LOT HOLDING INVESTMENTS LLC WINDMILLS LLC 5.75 10-13-2016 57,500
4245100 10-14-2016 SWD WINDMILLS LLC ANDERSON BRADLEY S; ANDERSON TIFFANY M 28.70 10-13-2016 287,000



Account Parcel Account Type Tax Year Buildings Actual Value Local Govt Assessed Value School Assessed Value
R0759401 105912015029 Residential 2026 1 458,646 28,670 32,340

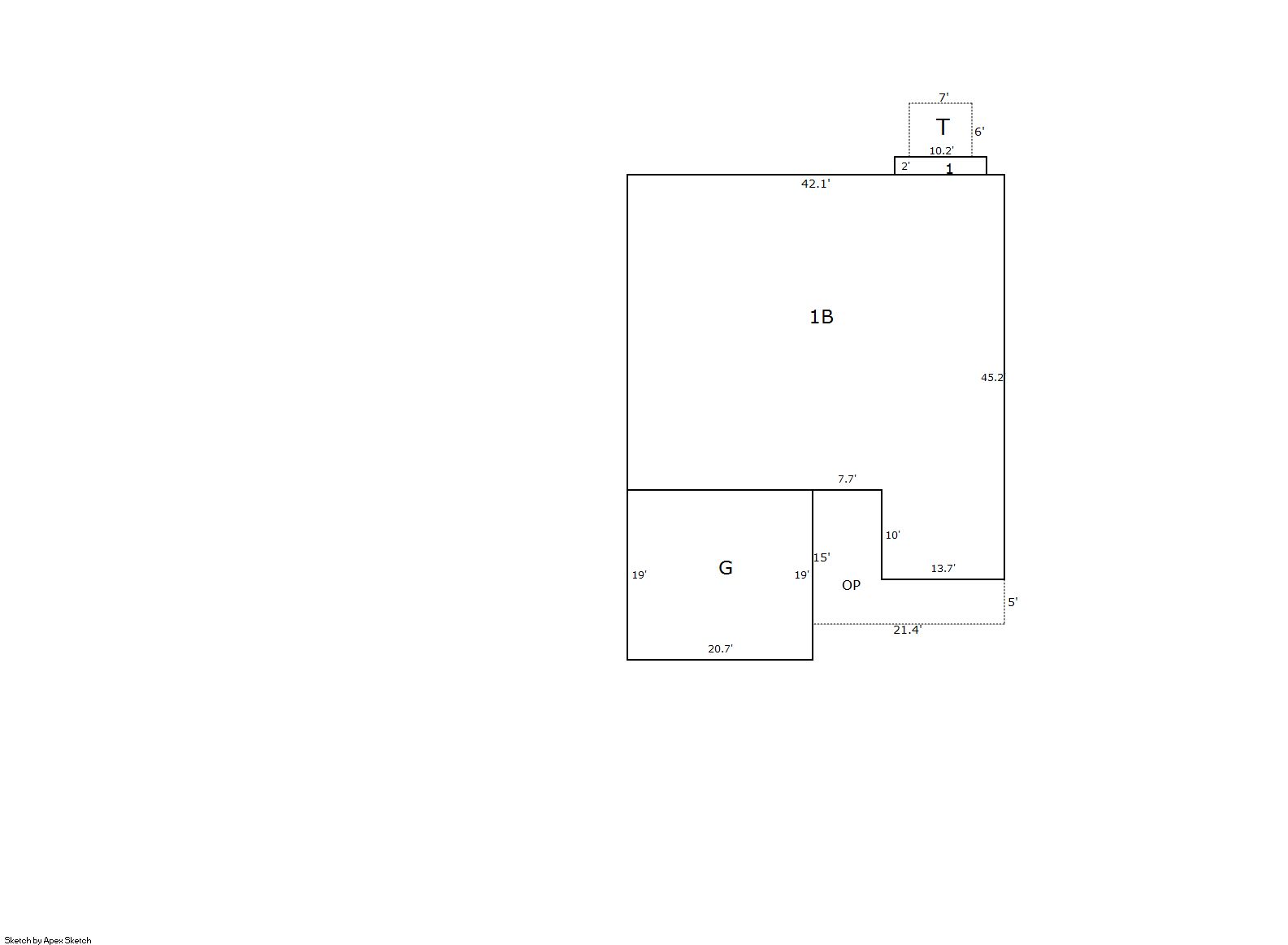
Building 1

AccountNo Building ID Occupancy
R0759401 1 Single Family Residential


ID Type NBHD Occupancy % Complete Bedrooms Baths
1 Residential 0M2074 Single Family Residential 100 3 2.00


ID Exterior Roof Cover Interior HVAC Perimeter Units Unit Type Make
1 Frame Siding Composition Shingle Drywall Central Air to Air 179 0 NA NA


ID Square Ft Condo SF Total Basement SF Finished Basement SF Garage SF Carport SF Balcony SF Porch SF
1 1,638 0 1,618 0 393 0 0 42


Built As Details for Building 1
ID Built As Square Ft Year Built Stories Length Width
1.00 Ranch 1 Story 1,638 2016 1 0 0


Additional Details for Building 1
ID Detail Type Description Units
1 Basement Total Basement SF 1618.00
1 Fixture Full Bath 2.00
1 Garage Attached 393.00
1 Porch Open Slab 42.00
1 Porch Slab Roof Ceil 184.00
1 Rough In Rough In 1.00





Account Parcel Account Type Tax Year Buildings Actual Value Local Govt Assessed Value School Assessed Value
R0759401 105912015029 Residential 2026 1 458,646 28,670 32,340

Type Code Description Actual Value Local Govt Assessed Value School Assessed Value Acres Land SqFt
Improvement 1212 SINGLE FAMILY RESIDENTIAL IMPROVEMENTS 364,646 22,790 25,710 0.000 0
Land 1112 SINGLE FAMILY RESIDENTIAL-LAND 94,000 5,880 6,630 0.138 6,007
Totals - - 458,646 28,670 32,340 0.138 6,007


Account Parcel Account Type Tax Year Buildings Actual Value Local Govt Assessed Value School Assessed Value
R0759401 105912015029 Residential 2026 1 458,646 28,670 32,340

Tax Area District ID District Name Local Govt
Mill Levy
School
Mill Levy
Estimated
Taxes
5783 0700 AIMS JUNIOR COLLEGE 6.313 0.000 $180.99
5783 1413 CENTENNIAL CROSSING METRO 2 45.000 0.000 $1,290.15
5783 0302 CENTRAL COLORADO WATER (CCW) 0.980 0.000 $28.10
5783 0309 CENTRAL COLORADO WATER SUBDISTRICT (CCS) 1.462 0.000 $41.92
5783 0510 FRONT RANGE FIRE RESCUE FIRE PROTECTION DISTRICT 11.483 0.000 $329.22
5783 1050 HIGH PLAINS LIBRARY 3.044 0.000 $87.27
5783 0306 LITTLE THOMPSON WATER (LTW) 0.000 0.000 $0.00
5783 0421 MILLIKEN TOWN 26.301 0.000 $754.05
5783 0301 NORTHERN COLORADO WATER (NCW) 1.000 0.000 $28.67
5783 0205 SCHOOL DIST RE5J-JOHNSTOWN 0.000 36.271 $1,173.00
5783 0901 THOMPSON RIVER REC 3.594 0.000 $103.04
5783 0100 WELD COUNTY 15.956 0.000 $457.46
5783 1200 WEST GREELEY CONSERVATION 0.414 0.000 $11.87
Total - - 115.547 36.271 $4,485.74


The estimate of tax is based on the prior year mill levy and the 2025 projected assessment rates. Mill levies and tax estimates will be updated yearly on December 22nd for the current year. Additional information can be found at https://assessor.weld.gov










Select Reports to Print: