Account: R0762886
April 1, 2026
| Account | Parcel | Account Type | Tax Year | Buildings | Actual Value | Local Govt Assessed Value | School Assessed Value |
|---|---|---|---|---|---|---|---|
| R0762886 | 070708000013 | Residential | 2026 | 5 | 636,742 | 39,800 | 44,890 |
| Legal |
|---|
| 18137 PT S2 8 7 66 BEG AT PT 1318.5'W OF SE COR S89D50'W 432.39' N3D33'E 170.49' N16D07'W 36.68' N22D45'W 705.75' TO PT ON S BANK COLLINS LAT S36D33'E 190.90' S49D26'E 272.27' S85D23'E 66.93' S88D54'E 230.95' S52D52'E 51.34' S0D18'W 126.62' S9D18'W 226.76' N89D39'E 55.54' S0D18'W 40.70' TO BEG (TRACTS A-B-D ON PLAT MAP BK 10 PG 85) EXCEPT THAT PORTION KNOWN AS TRACT A PER BK 1484 PG 611 |
| Subdivision | Block | Lot | Land Economic Area |
|---|---|---|---|
| SEVERANCE RURAL |
| Property Address | Property City | Section | Township | Range |
|---|---|---|---|---|
| 13707 HIGHWAY 14 | WELD | 08 | 07 | 66 |
| Account | Parcel | Account Type | Tax Year | Buildings | Actual Value | Local Govt Assessed Value | School Assessed Value |
|---|---|---|---|---|---|---|---|
| R0762886 | 070708000013 | Residential | 2026 | 5 | 636,742 | 39,800 | 44,890 |
| Account | Owner Name | Address |
|---|---|---|
| R0762886 | ALPS GEORGE A JR (35%) | 13707 HIGHWAY 14 AULT, CO 806109713 |
| R0762886 | ALPS GEORGE A JR (32.5%) | |
| R0762886 | ALPS KATHY S (32.5%) |
| Account | Parcel | Account Type | Tax Year | Buildings | Actual Value | Local Govt Assessed Value | School Assessed Value |
|---|---|---|---|---|---|---|---|
| R0762886 | 070708000013 | Residential | 2026 | 5 | 636,742 | 39,800 | 44,890 |
| Reception | Rec Date | Type | Grantor | Grantee | Doc Fee | Sale Date | Sale Price |
|---|---|---|---|---|---|---|---|
| 01743441 | 02-02-1978 | WDN | 0.00 | 01-01-1900 | 0 | ||
| 2462035 | 11-01-1995 | WD | TROUDT DWAYNE A & DIANA K | BROWN DUANE L & GERALDINE J | 14.09 | 10-27-1995 | 140,900 |
| 4755515 | 09-13-2021 | SWD | BROWN GERALDINE J; BROWN DUANE L | COLYEAR CASH | 48.00 | 09-09-2021 | 480,000 |
| 4774883 | 11-10-2021 | QCN | COLYEAR CASH | COLYEAR JAMIE K; COLYEAR CASH | 0.00 | 11-03-2021 | 0 |
| 4959917 | 05-13-2024 | WD | COLYEAR CASH; COLYEAR JAMIE K | ALPS GEORGE A JR (35%); ALPS GEORGE A JR (32.5%); ALPS KATHY S (32.5%) | 53.00 | 05-10-2024 | 530,000 |
*If the hyperlink for the reception number does not work, try a manual search in the Clerk and Recorder records. Use the Grantor or Grantee in your search.
| Account | Parcel | Account Type | Tax Year | Buildings | Actual Value | Local Govt Assessed Value | School Assessed Value |
|---|---|---|---|---|---|---|---|
| R0762886 | 070708000013 | Residential | 2026 | 5 | 636,742 | 39,800 | 44,890 |
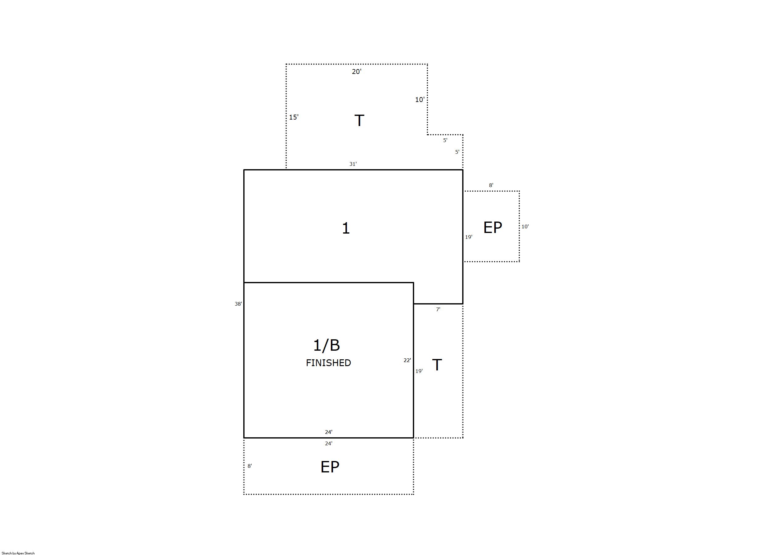
Building 1
| AccountNo | Building ID | Occupancy |
|---|---|---|
| R0762886 | 1 | Single Family Residential |
| ID | Type | NBHD | Occupancy | % Complete | Bedrooms | Baths |
|---|---|---|---|---|---|---|
| 1 | Residential | 2R2051 | Single Family Residential | 100 | 4 | 2.00 |
| ID | Exterior | Roof Cover | Interior | HVAC | Perimeter | Units | Unit Type | Make |
|---|---|---|---|---|---|---|---|---|
| 1 | Frame Hardboard | Composition Shingle | Drywall | Forced Air | 138 | 0 | NA | NA |
| ID | Square Ft | Condo SF | Total Basement SF | Finished Basement SF | Garage SF | Carport SF | Balcony SF | Porch SF |
|---|---|---|---|---|---|---|---|---|
| 1 | 1,045 | 0 | 528 | 528 | 0 | 0 | 0 | 458 |
| ID | Built As | Square Ft | Year Built | Stories | Length | Width |
|---|---|---|---|---|---|---|
| 1.00 | Ranch 1 Story | 1,045 | 1914 | 1 | 0 | 0 |
| ID | Detail Type | Description | Units |
|---|---|---|---|
| 1 | Add On | MH Flue Only | 1.00 |
| 1 | Basement | Finished | 528.00 |
| 1 | Basement | Total Basement SF | 528.00 |
| 1 | Fixture | Full Bath | 2.00 |
| 1 | Porch | Encl Solid Wall | 272.00 |
| 1 | Porch | Open Slab | 458.00 |
Building 2
| AccountNo | Building ID | Occupancy |
|---|---|---|
| R0762886 | 2 | Utility Building |
| ID | Type | NBHD | Occupancy | % Complete | Bedrooms | Baths |
|---|---|---|---|---|---|---|
| 2 | Out Building | NA | Utility Building | 100 | 0 | 0.00 |
| ID | Exterior | Roof Cover | Interior | HVAC | Perimeter | Units | Unit Type | Make |
|---|---|---|---|---|---|---|---|---|
| 2 | NA | NA | NA | None | 156 | 0 | NA | NA |
| ID | Square Ft | Condo SF | Total Basement SF | Finished Basement SF | Garage SF | Carport SF | Balcony SF | Porch SF |
|---|---|---|---|---|---|---|---|---|
| 2 | 1,400 | 0 | 0 | 0 | 0 | 0 | 0 | 0 |
| ID | Built As | Square Ft | Year Built | Stories | Length | Width |
|---|---|---|---|---|---|---|
| 2.00 | Utility Building | 1,400 | 1965 | 1 | 50 | 28 |
No Additional Details for Building 2
Building 3
| AccountNo | Building ID | Occupancy |
|---|---|---|
| R0762886 | 3 | Utility Building |
| ID | Type | NBHD | Occupancy | % Complete | Bedrooms | Baths |
|---|---|---|---|---|---|---|
| 3 | Out Building | NA | Utility Building | 100 | NA | 0.00 |
| ID | Exterior | Roof Cover | Interior | HVAC | Perimeter | Units | Unit Type | Make |
|---|---|---|---|---|---|---|---|---|
| 3 | NA | NA | NA | NA | 148 | 0 | NA | NA |
| ID | Square Ft | Condo SF | Total Basement SF | Finished Basement SF | Garage SF | Carport SF | Balcony SF | Porch SF |
|---|---|---|---|---|---|---|---|---|
| 3 | 1,392 | 0 | 0 | 0 | 0 | 0 | 0 | 0 |
| ID | Built As | Square Ft | Year Built | Stories | Length | Width |
|---|---|---|---|---|---|---|
| 3.00 | Utility Building | 1,392 | 1925 | 1 | 40 | 38 |
No Additional Details for Building 3
Building 4
| AccountNo | Building ID | Occupancy |
|---|---|---|
| R0762886 | 4 | Utility Building |
| ID | Type | NBHD | Occupancy | % Complete | Bedrooms | Baths |
|---|---|---|---|---|---|---|
| 4 | Out Building | NA | Utility Building | 100 | NA | 0.00 |
| ID | Exterior | Roof Cover | Interior | HVAC | Perimeter | Units | Unit Type | Make |
|---|---|---|---|---|---|---|---|---|
| 4 | NA | NA | NA | None | 84 | 0 | NA | NA |
| ID | Square Ft | Condo SF | Total Basement SF | Finished Basement SF | Garage SF | Carport SF | Balcony SF | Porch SF |
|---|---|---|---|---|---|---|---|---|
| 4 | 360 | 0 | 0 | 0 | 0 | 0 | 0 | 0 |
| ID | Built As | Square Ft | Year Built | Stories | Length | Width |
|---|---|---|---|---|---|---|
| 4.00 | Utility Building | 360 | 1914 | 1 | 30 | 12 |
No Additional Details for Building 4
Building 5
| AccountNo | Building ID | Occupancy |
|---|---|---|
| R0762886 | 5 | Utility Building |
| ID | Type | NBHD | Occupancy | % Complete | Bedrooms | Baths |
|---|---|---|---|---|---|---|
| 5 | Out Building | NA | Utility Building | 100 | NA | 0.00 |
| ID | Exterior | Roof Cover | Interior | HVAC | Perimeter | Units | Unit Type | Make |
|---|---|---|---|---|---|---|---|---|
| 5 | NA | NA | NA | NA | 92 | 0 | NA | NA |
| ID | Square Ft | Condo SF | Total Basement SF | Finished Basement SF | Garage SF | Carport SF | Balcony SF | Porch SF |
|---|---|---|---|---|---|---|---|---|
| 5 | 528 | 0 | 0 | 0 | 0 | 0 | 0 | 0 |
| ID | Built As | Square Ft | Year Built | Stories | Length | Width |
|---|---|---|---|---|---|---|
| 5.00 | Utility Building | 528 | 2016 | 1 | 24 | 22 |
No Additional Details for Building 5
| Account | Parcel | Account Type | Tax Year | Buildings | Actual Value | Local Govt Assessed Value | School Assessed Value |
|---|---|---|---|---|---|---|---|
| R0762886 | 070708000013 | Residential | 2026 | 5 | 636,742 | 39,800 | 44,890 |
| Type | Code | Description | Actual Value | Local Govt Assessed Value | School Assessed Value | Acres | Land SqFt |
|---|---|---|---|---|---|---|---|
| Improvement | 1212 | SINGLE FAMILY RESIDENTIAL IMPROVEMENTS | 414,521 | 25,910 | 29,220 | 0.000 | 0 |
| Land | 1112 | SINGLE FAMILY RESIDENTIAL-LAND | 222,221 | 13,890 | 15,670 | 4.480 | 195,149 |
| Totals | - | - | 636,742 | 39,800 | 44,890 | 4.480 | 195,149 |
Comparable sales for your Residential or Commercial property may be found using our SALES SEARCH TOOL
Values are updated annually on May 1st for Real Property and June 15th for Personal Property and Oil and Gas.
| Account | Parcel | Account Type | Tax Year | Buildings | Actual Value | Local Govt Assessed Value | School Assessed Value |
|---|---|---|---|---|---|---|---|
| R0762886 | 070708000013 | Residential | 2026 | 5 | 636,742 | 39,800 | 44,890 |
| Tax Area | District ID | District Name | Local Govt Mill Levy |
School Mill Levy |
Estimated Taxes |
|---|---|---|---|---|---|
| 0919 | 0700 | AIMS JUNIOR COLLEGE | 6.313 | 0.000 | $251.26 |
| 0919 | 0501 | AULT FIRE | 7.266 | 0.000 | $289.19 |
| 0919 | 1050 | HIGH PLAINS LIBRARY | 3.044 | 0.000 | $121.15 |
| 0919 | 0304 | NORTH WELD COUNTY WATER (NWC) | 0.000 | 0.000 | $0.00 |
| 0919 | 0301 | NORTHERN COLORADO WATER (NCW) | 1.000 | 0.000 | $39.80 |
| 0919 | 0209 | SCHOOL DIST RE9-AULT | 0.000 | 34.176 | $1,534.16 |
| 0919 | 0100 | WELD COUNTY | 15.956 | 0.000 | $635.05 |
| 0919 | 1200 | WEST GREELEY CONSERVATION | 0.414 | 0.000 | $16.48 |
| Total | - | - | 33.993 | 34.176 | $2,887.08 |
The estimate of tax is based on the prior year mill levy and the 2025 projected assessment rates. Mill levies and tax estimates will be updated yearly on December 22nd for the current year. Additional information can be found at https://assessor.weld.gov




