Account: R0790386
April 5, 2026
| Account | Parcel | Account Type | Tax Year | Buildings | Actual Value | Local Govt Assessed Value | School Assessed Value |
|---|---|---|---|---|---|---|---|
| R0790386 | 070712300040 | Residential | 2026 | 1 | 390,802 | 24,420 | 27,550 |
| Legal |
|---|
| ALT 18309 PT SW4SW4 12 7 66 BEG 80'N & 355.5'E OF NW COR BLK3 AULT ELY ALG N SIDE 3 ST 74.9' TO SW COR PARCEL DEEDED TO CLIFFORD WHITE NLY 100' WLY 74.9' TO NE COR PARCEL DEEDED TO A R BROYLES TH SLY TO BEG |
| Subdivision | Block | Lot | Land Economic Area |
|---|---|---|---|
| AULT TOWN | 3 | AULT OLD TOWN |
| Property Address | Property City | Section | Township | Range |
|---|---|---|---|---|
| 205 3RD ST | AULT | 12 | 07 | 66 |
| Account | Parcel | Account Type | Tax Year | Buildings | Actual Value | Local Govt Assessed Value | School Assessed Value |
|---|---|---|---|---|---|---|---|
| R0790386 | 070712300040 | Residential | 2026 | 1 | 390,802 | 24,420 | 27,550 |
| Account | Owner Name | Address |
|---|---|---|
| R0790386 | BRADLEY KENNETH PAUL | PO BOX 111 AULT, CO 806100111 |
| Account | Parcel | Account Type | Tax Year | Buildings | Actual Value | Local Govt Assessed Value | School Assessed Value |
|---|---|---|---|---|---|---|---|
| R0790386 | 070712300040 | Residential | 2026 | 1 | 390,802 | 24,420 | 27,550 |
| Reception | Rec Date | Type | Grantor | Grantee | Doc Fee | Sale Date | Sale Price |
|---|---|---|---|---|---|---|---|
| 01699930 | 09-28-1976 | WDN | 0.00 | 01-01-1900 | 0 | ||
| 02068962 | 09-10-1986 | QCN | 0.00 | 07-30-1986 | 0 | ||
| 2071829 | 10-02-1986 | WD | FARMERS NATL BANK OF AULT | HOUSKA AMELIA | 5.50 | 09-19-1986 | 55,000 |
| 2247922 | 04-23-1991 | WD | HOUSKA AMELIA | SCHWAB ARNOLD G & JANET E | 5.50 | 04-11-1991 | 55,000 |
| 3147636 | 01-26-2004 | PTD | SCHWAB ARNOLD G & JANET E | FEDERAL NATIONAL MORTGAGE ASSOCIATION | 0.00 | 01-26-2004 | 0 |
| 3164931 | 03-25-2004 | SWD | FEDERAL NATIONAL MORTGAGE ASSOCIATION | HENSLEY THERESA | 12.35 | 03-19-2004 | 123,500 |
| 3432144 | 11-02-2006 | PTD | HENSLEY THERESA | 205 3RD STREET TRUST | 0.00 | 11-02-2006 | 0 |
| 3845017 | 05-11-2012 | TRD | WELD CO TREASURER | JW LIENS LLC | 0.00 | 05-09-2012 | 0 |
| 3947403 | 07-12-2013 | QCN | JW LIENS LLC | REOCO LLC | 0.00 | 06-17-2013 | 0 |
| 3967843 | 10-02-2013 | QCN | REOCO LLC | CREECH THOMAS | 0.00 | 06-17-2013 | 0 |
| 4040280 | 08-22-2014 | WD | CREECH TONYA | BRADLEY KENNETH PAUL | 18.19 | 08-15-2014 | 181,900 |
| 4970914 | 07-15-2024 | SURV | SURVEY | SURVEY | 0.00 | 07-10-2024 | 0 |
*If the hyperlink for the reception number does not work, try a manual search in the Clerk and Recorder records. Use the Grantor or Grantee in your search.
| Account | Parcel | Account Type | Tax Year | Buildings | Actual Value | Local Govt Assessed Value | School Assessed Value |
|---|---|---|---|---|---|---|---|
| R0790386 | 070712300040 | Residential | 2026 | 1 | 390,802 | 24,420 | 27,550 |
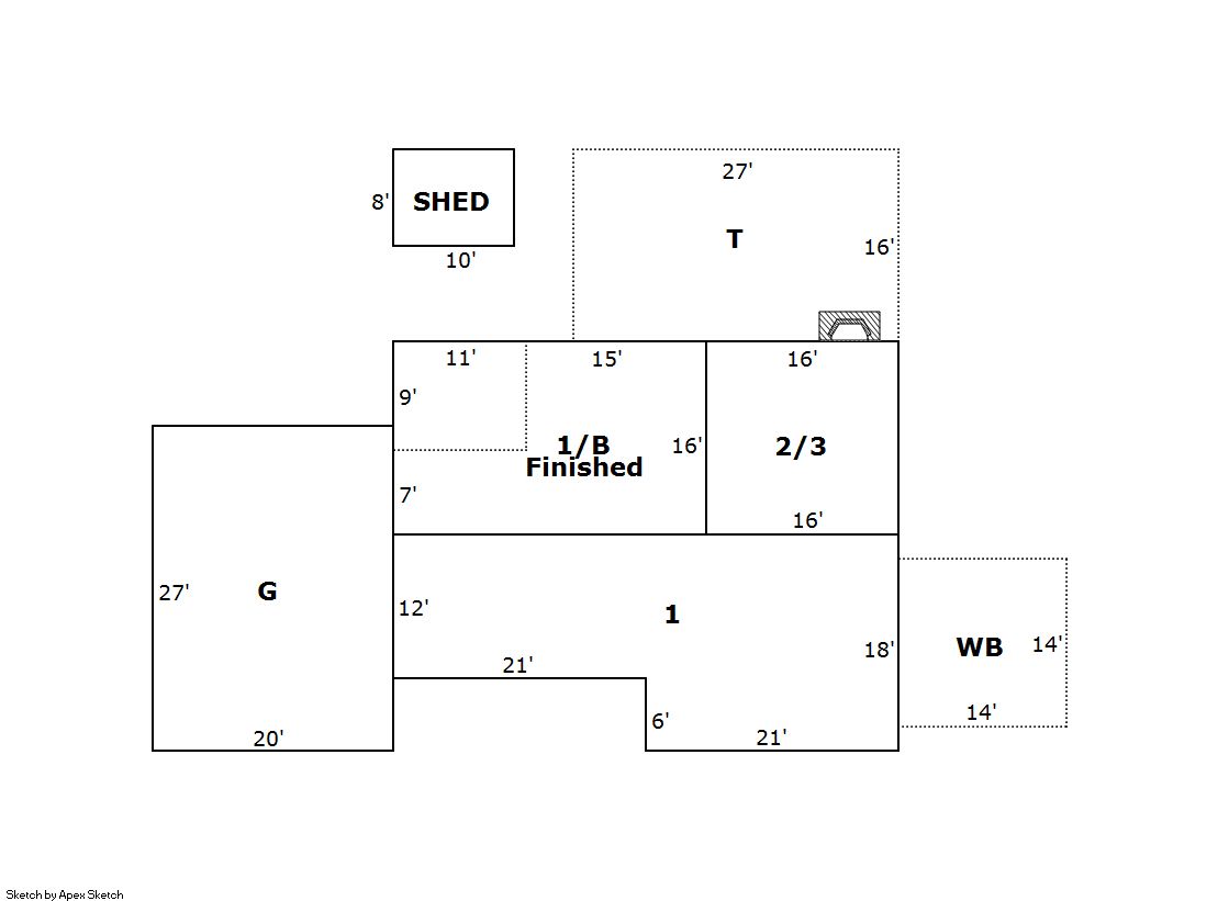
Building 1
| AccountNo | Building ID | Occupancy |
|---|---|---|
| R0790386 | 1 | Single Family Residential |
| ID | Type | NBHD | Occupancy | % Complete | Bedrooms | Baths |
|---|---|---|---|---|---|---|
| 1 | Residential | 9A1046 | Single Family Residential | 100 | 3 | 2.00 |
| ID | Exterior | Roof Cover | Interior | HVAC | Perimeter | Units | Unit Type | Make |
|---|---|---|---|---|---|---|---|---|
| 1 | Frame Siding | Composition Shingle | Drywall | Central Air to Air | 280 | 0 | NA | NA |
| ID | Square Ft | Condo SF | Total Basement SF | Finished Basement SF | Garage SF | Carport SF | Balcony SF | Porch SF |
|---|---|---|---|---|---|---|---|---|
| 1 | 1,558 | 0 | 416 | 317 | 540 | 0 | 196 | 432 |
| ID | Built As | Square Ft | Year Built | Stories | Length | Width |
|---|---|---|---|---|---|---|
| 1.00 | Split Level | 1,558 | 1948 | 1 | 0 | 0 |
| ID | Detail Type | Description | Units |
|---|---|---|---|
| 1 | Add On | Fireplace Wood | 1.00 |
| 1 | Balcony | Wood Wood Fin | 196.00 |
| 1 | Basement | Finished | 317.00 |
| 1 | Basement | Total Basement SF | 416.00 |
| 1 | Fixture | Full Bath | 2.00 |
| 1 | Garage | Attached | 540.00 |
| 1 | Porch | Open Slab | 432.00 |
| 1 | Storage | Wood | 80.00 |
| Account | Parcel | Account Type | Tax Year | Buildings | Actual Value | Local Govt Assessed Value | School Assessed Value |
|---|---|---|---|---|---|---|---|
| R0790386 | 070712300040 | Residential | 2026 | 1 | 390,802 | 24,420 | 27,550 |
| Type | Code | Description | Actual Value | Local Govt Assessed Value | School Assessed Value | Acres | Land SqFt |
|---|---|---|---|---|---|---|---|
| Improvement | 1212 | SINGLE FAMILY RESIDENTIAL IMPROVEMENTS | 333,802 | 20,860 | 23,530 | 0.000 | 0 |
| Land | 1112 | SINGLE FAMILY RESIDENTIAL-LAND | 57,000 | 3,560 | 4,020 | 0.172 | 7,490 |
| Totals | - | - | 390,802 | 24,420 | 27,550 | 0.172 | 7,490 |
Comparable sales for your Residential or Commercial property may be found using our SALES SEARCH TOOL
Values are updated annually on May 1st for Real Property and June 15th for Personal Property and Oil and Gas.
| Account | Parcel | Account Type | Tax Year | Buildings | Actual Value | Local Govt Assessed Value | School Assessed Value |
|---|---|---|---|---|---|---|---|
| R0790386 | 070712300040 | Residential | 2026 | 1 | 390,802 | 24,420 | 27,550 |
| Tax Area | District ID | District Name | Local Govt Mill Levy |
School Mill Levy |
Estimated Taxes |
|---|---|---|---|---|---|
| 0930 | 0700 | AIMS JUNIOR COLLEGE | 6.313 | 0.000 | $154.16 |
| 0930 | 0501 | AULT FIRE | 7.266 | 0.000 | $177.44 |
| 0930 | 0401 | AULT TOWN | 6.741 | 0.000 | $164.62 |
| 0930 | 1050 | HIGH PLAINS LIBRARY | 3.044 | 0.000 | $74.33 |
| 0930 | 0301 | NORTHERN COLORADO WATER (NCW) | 1.000 | 0.000 | $24.42 |
| 0930 | 0209 | SCHOOL DIST RE9-AULT | 0.000 | 34.176 | $941.55 |
| 0930 | 0100 | WELD COUNTY | 15.956 | 0.000 | $389.65 |
| Total | - | - | 40.32 | 34.176 | $1,926.16 |
The estimate of tax is based on the prior year mill levy and the 2025 projected assessment rates. Mill levies and tax estimates will be updated yearly on December 22nd for the current year. Additional information can be found at https://assessor.weld.gov


