Account: R0805001
April 5, 2026
| Account | Parcel | Account Type | Tax Year | Buildings | Actual Value | Local Govt Assessed Value | School Assessed Value |
|---|---|---|---|---|---|---|---|
| R0805001 | 105912029015 | Residential | 2026 | 1 | 355,285 | 22,210 | 25,050 |
| Legal |
|---|
| MIL SV L15 BLK15 SETTLERS VILLAGE |
| Subdivision | Block | Lot | Land Economic Area |
|---|---|---|---|
| SETTLERS VILLAGE | 15 | 15 | SETTLERS VILLAGE |
| Property Address | Property City | Section | Township | Range |
|---|---|---|---|---|
| 703 S CARRIAGE DR | MILLIKEN | 12 | 04 | 67 |
| Account | Parcel | Account Type | Tax Year | Buildings | Actual Value | Local Govt Assessed Value | School Assessed Value |
|---|---|---|---|---|---|---|---|
| R0805001 | 105912029015 | Residential | 2026 | 1 | 355,285 | 22,210 | 25,050 |
| Account | Owner Name | Address |
|---|---|---|
| R0805001 | CAMPBELL NIKOLAS | 703 S CARRIAGE DR MILLIKEN, CO 805433088 |
| R0805001 | CAMPBELL AMBER BONN |
| Account | Parcel | Account Type | Tax Year | Buildings | Actual Value | Local Govt Assessed Value | School Assessed Value |
|---|---|---|---|---|---|---|---|
| R0805001 | 105912029015 | Residential | 2026 | 1 | 355,285 | 22,210 | 25,050 |
| Reception | Rec Date | Type | Grantor | Grantee | Doc Fee | Sale Date | Sale Price |
|---|---|---|---|---|---|---|---|
| 2833840 | NA | SUB | SUBDIVISION | SETTLERS VILLAGE | 0.00 | NA | 0 |
| 3092265 | 08-06-2003 | SWD | MILE HIGH CAPITAL GROUP LTD | PILKINGTON TIMOTHY W & ANGELA D | 30.00 | 07-25-2003 | 300,000 |
| 3092268 | 08-06-2003 | SWD | LOT HOLDING INVESTMENTS LLC | MILE HIGH CAPITAL GROUP LTD | 37.20 | 07-28-2003 | 372,000 |
| 3218781 | 09-15-2004 | SWDN | PILKINGTON TIMOTHY W & ANGELA D | MILE HIGH CAPITAL GROUP LTD | 0.00 | 06-23-2004 | 0 |
| 3226072 | 10-08-2004 | WD | MILE HIGH CAPITAL GROUP LTD | MORRIS WALTER L & | 15.50 | 09-23-2004 | 155,000 |
| 3275975 | 04-08-2005 | QCN | MORRIS WALTER L & | WARO LLC | 0.00 | 04-06-2005 | 0 |
| 4034444 | 07-30-2014 | WD | WARO LLC | DAVID JEREMIAH L | 16.20 | 07-28-2014 | 162,000 |
| 4857580 | 09-26-2022 | WD | DAVID JEREMIAH L | CAMPBELL NIKOLAS; CAMPBELL AMBER BONN | 37.00 | 09-21-2022 | 370,000 |
*If the hyperlink for the reception number does not work, try a manual search in the Clerk and Recorder records. Use the Grantor or Grantee in your search.
| Account | Parcel | Account Type | Tax Year | Buildings | Actual Value | Local Govt Assessed Value | School Assessed Value |
|---|---|---|---|---|---|---|---|
| R0805001 | 105912029015 | Residential | 2026 | 1 | 355,285 | 22,210 | 25,050 |
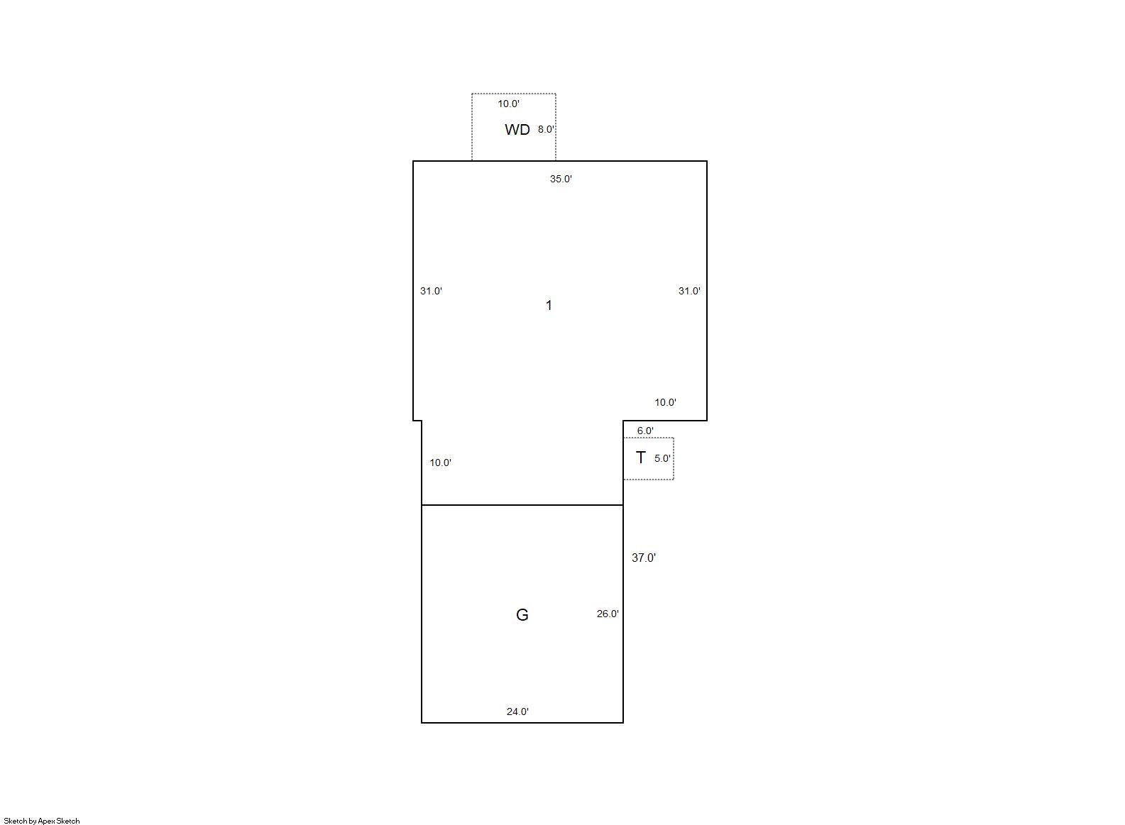
Building 1
| AccountNo | Building ID | Occupancy |
|---|---|---|
| R0805001 | 1 | Duplex |
| ID | Type | NBHD | Occupancy | % Complete | Bedrooms | Baths |
|---|---|---|---|---|---|---|
| 1 | Duplex | 0M2074 | Duplex | 100 | 3 | 2.00 |
| ID | Exterior | Roof Cover | Interior | HVAC | Perimeter | Units | Unit Type | Make |
|---|---|---|---|---|---|---|---|---|
| 1 | Frame Hardboard | Composition Shingle | Drywall | Central Air to Air | 152 | 0 | End | NA |
| ID | Square Ft | Condo SF | Total Basement SF | Finished Basement SF | Garage SF | Carport SF | Balcony SF | Porch SF |
|---|---|---|---|---|---|---|---|---|
| 1 | 1,325 | 0 | 0 | 0 | 624 | 0 | 0 | 80 |
| ID | Built As | Square Ft | Year Built | Stories | Length | Width |
|---|---|---|---|---|---|---|
| 1.00 | Duplex One Story | 1,325 | 2003 | 1 | 0 | 0 |
| ID | Detail Type | Description | Units |
|---|---|---|---|
| 1 | Add On | Fireplace Gas | 1.00 |
| 1 | Fixture | Full Bath | 2.00 |
| 1 | Garage | Attached | 624.00 |
| 1 | Porch | Open Slab | 30.00 |
| 1 | Porch | Wood Deck | 80.00 |
| Account | Parcel | Account Type | Tax Year | Buildings | Actual Value | Local Govt Assessed Value | School Assessed Value |
|---|---|---|---|---|---|---|---|
| R0805001 | 105912029015 | Residential | 2026 | 1 | 355,285 | 22,210 | 25,050 |
| Type | Code | Description | Actual Value | Local Govt Assessed Value | School Assessed Value | Acres | Land SqFt |
|---|---|---|---|---|---|---|---|
| Improvement | 1212 | SINGLE FAMILY RESIDENTIAL IMPROVEMENTS | 261,285 | 16,330 | 18,420 | 0.000 | 0 |
| Land | 1112 | SINGLE FAMILY RESIDENTIAL-LAND | 94,000 | 5,880 | 6,630 | 0.131 | 5,710 |
| Totals | - | - | 355,285 | 22,210 | 25,050 | 0.131 | 5,710 |
Comparable sales for your Residential or Commercial property may be found using our SALES SEARCH TOOL
Values are updated annually on May 1st for Real Property and June 15th for Personal Property and Oil and Gas.
| Account | Parcel | Account Type | Tax Year | Buildings | Actual Value | Local Govt Assessed Value | School Assessed Value |
|---|---|---|---|---|---|---|---|
| R0805001 | 105912029015 | Residential | 2026 | 1 | 355,285 | 22,210 | 25,050 |
| Tax Area | District ID | District Name | Local Govt Mill Levy |
School Mill Levy |
Estimated Taxes |
|---|---|---|---|---|---|
| 5730 | 0700 | AIMS JUNIOR COLLEGE | 6.313 | 0.000 | $140.21 |
| 5730 | 0302 | CENTRAL COLORADO WATER (CCW) | 0.980 | 0.000 | $21.77 |
| 5730 | 0309 | CENTRAL COLORADO WATER SUBDISTRICT (CCS) | 1.462 | 0.000 | $32.47 |
| 5730 | 0510 | FRONT RANGE FIRE RESCUE FIRE PROTECTION DISTRICT | 11.483 | 0.000 | $255.04 |
| 5730 | 1050 | HIGH PLAINS LIBRARY | 3.044 | 0.000 | $67.61 |
| 5730 | 0306 | LITTLE THOMPSON WATER (LTW) | 0.000 | 0.000 | $0.00 |
| 5730 | 0421 | MILLIKEN TOWN | 26.301 | 0.000 | $584.15 |
| 5730 | 0301 | NORTHERN COLORADO WATER (NCW) | 1.000 | 0.000 | $22.21 |
| 5730 | 0205 | SCHOOL DIST RE5J-JOHNSTOWN | 0.000 | 36.271 | $908.59 |
| 5730 | 0901 | THOMPSON RIVER REC | 3.594 | 0.000 | $79.82 |
| 5730 | 0100 | WELD COUNTY | 15.956 | 0.000 | $354.38 |
| 5730 | 1200 | WEST GREELEY CONSERVATION | 0.414 | 0.000 | $9.19 |
| Total | - | - | 70.547 | 36.271 | $2,475.44 |
The estimate of tax is based on the prior year mill levy and the 2025 projected assessment rates. Mill levies and tax estimates will be updated yearly on December 22nd for the current year. Additional information can be found at https://assessor.weld.gov


