Account: R0811201

April 2, 2026

Account Parcel Account Type Tax Year Buildings Actual Value Local Govt Assessed Value School Assessed Value
R0811201 105912032004 Residential 2026 1 446,589 27,920 31,490

Legal
MIL SV L4 BLK18 SETTLERS VILLAGE

Subdivision Block Lot Land Economic Area
SETTLERS VILLAGE 18 4 SETTLERS VILLAGE

Property Address Property City Section Township Range
941 S VILLAGE DR MILLIKEN 12 04 67




Account Parcel Account Type Tax Year Buildings Actual Value Local Govt Assessed Value School Assessed Value
R0811201 105912032004 Residential 2026 1 446,589 27,920 31,490

Account Owner Name Address
R0811201 TICE MORGAN 941 VILLAGE DR MILLIKEN, CO 805433134
R0811201 DELLINGER LOREN


Account Parcel Account Type Tax Year Buildings Actual Value Local Govt Assessed Value School Assessed Value
R0811201 105912032004 Residential 2026 1 446,589 27,920 31,490

Reception Rec Date Type Grantor Grantee Doc Fee Sale Date Sale Price
2833840 NA SUB SUBDIVISION SETTLERS VILLAGE 0.00 NA 0
4152563 10-23-2015 SWD LOT HOLDING INVESTMENTS LLC WINDMILLS LLC 4.50 10-22-2015 45,000
4153426 10-27-2015 SWD WINDMILLS LLC JESS MICHAEL D; MONTANA REA G 27.60 10-22-2015 276,000
4393447 04-24-2018 WD JESS MICHAEL D; MONTANA REA G DELLINGER MORGAN; DELLINGER LOREN 33.40 04-23-2018 334,000
4521863 09-10-2019 QCN DELLINGER MORGAN; DELLINGER LOREN TICE MORGAN; DELLINGER LOREN 0.00 09-05-2019 0



Account Parcel Account Type Tax Year Buildings Actual Value Local Govt Assessed Value School Assessed Value
R0811201 105912032004 Residential 2026 1 446,589 27,920 31,490

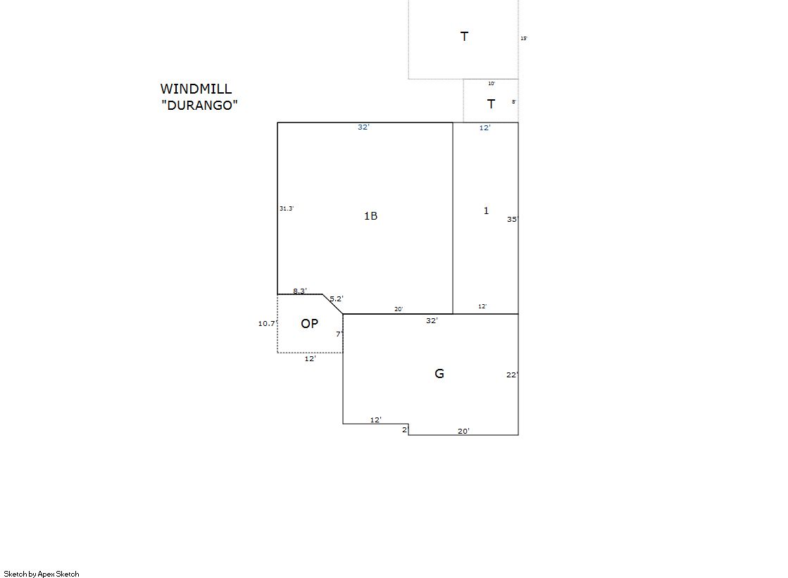
Building 1

AccountNo Building ID Occupancy
R0811201 1 Single Family Residential


ID Type NBHD Occupancy % Complete Bedrooms Baths
1 Residential 0M2074 Single Family Residential 100 3 2.00


ID Exterior Roof Cover Interior HVAC Perimeter Units Unit Type Make
1 Frame Siding Composition Shingle Drywall Central Air to Air 156 0 NA NA


ID Square Ft Condo SF Total Basement SF Finished Basement SF Garage SF Carport SF Balcony SF Porch SF
1 1,502 0 1,082 0 680 0 0 380


Built As Details for Building 1
ID Built As Square Ft Year Built Stories Length Width
1.00 Ranch 1 Story 1,502 2015 1 0 0


Additional Details for Building 1
ID Detail Type Description Units
1 Basement Total Basement SF 1082.00
1 Fixture Full Bath 2.00
1 Garage Attached 680.00
1 Porch Open Slab 380.00
1 Porch Slab Roof Ceil 121.00
1 Rough In Rough In 1.00





Account Parcel Account Type Tax Year Buildings Actual Value Local Govt Assessed Value School Assessed Value
R0811201 105912032004 Residential 2026 1 446,589 27,920 31,490

Type Code Description Actual Value Local Govt Assessed Value School Assessed Value Acres Land SqFt
Improvement 1212 SINGLE FAMILY RESIDENTIAL IMPROVEMENTS 352,589 22,040 24,860 0.000 0
Land 1112 SINGLE FAMILY RESIDENTIAL-LAND 94,000 5,880 6,630 0.139 6,050
Totals - - 446,589 27,920 31,490 0.139 6,050


Account Parcel Account Type Tax Year Buildings Actual Value Local Govt Assessed Value School Assessed Value
R0811201 105912032004 Residential 2026 1 446,589 27,920 31,490

Tax Area District ID District Name Local Govt
Mill Levy
School
Mill Levy
Estimated
Taxes
5783 0700 AIMS JUNIOR COLLEGE 6.313 0.000 $176.26
5783 1413 CENTENNIAL CROSSING METRO 2 45.000 0.000 $1,256.40
5783 0302 CENTRAL COLORADO WATER (CCW) 0.980 0.000 $27.36
5783 0309 CENTRAL COLORADO WATER SUBDISTRICT (CCS) 1.462 0.000 $40.82
5783 0510 FRONT RANGE FIRE RESCUE FIRE PROTECTION DISTRICT 11.483 0.000 $320.61
5783 1050 HIGH PLAINS LIBRARY 3.044 0.000 $84.99
5783 0306 LITTLE THOMPSON WATER (LTW) 0.000 0.000 $0.00
5783 0421 MILLIKEN TOWN 26.301 0.000 $734.32
5783 0301 NORTHERN COLORADO WATER (NCW) 1.000 0.000 $27.92
5783 0205 SCHOOL DIST RE5J-JOHNSTOWN 0.000 36.271 $1,142.17
5783 0901 THOMPSON RIVER REC 3.594 0.000 $100.34
5783 0100 WELD COUNTY 15.956 0.000 $445.49
5783 1200 WEST GREELEY CONSERVATION 0.414 0.000 $11.56
Total - - 115.547 36.271 $4,368.25


The estimate of tax is based on the prior year mill levy and the 2025 projected assessment rates. Mill levies and tax estimates will be updated yearly on December 22nd for the current year. Additional information can be found at https://assessor.weld.gov










Select Reports to Print: