Account: R0822801
April 5, 2026
| Account | Parcel | Account Type | Tax Year | Buildings | Actual Value | Local Govt Assessed Value | School Assessed Value |
|---|---|---|---|---|---|---|---|
| R0822801 | 105912036020 | Residential | 2026 | 1 | 478,922 | 29,940 | 33,770 |
| Legal |
|---|
| MIL SV L20 BLK22 SETTLERS VILLAGE |
| Subdivision | Block | Lot | Land Economic Area |
|---|---|---|---|
| SETTLERS VILLAGE | 22 | 20 | SETTLERS VILLAGE |
| Property Address | Property City | Section | Township | Range |
|---|---|---|---|---|
| 714 S PIONEER DR | MILLIKEN | 12 | 04 | 67 |
| Account | Parcel | Account Type | Tax Year | Buildings | Actual Value | Local Govt Assessed Value | School Assessed Value |
|---|---|---|---|---|---|---|---|
| R0822801 | 105912036020 | Residential | 2026 | 1 | 478,922 | 29,940 | 33,770 |
| Account | Owner Name | Address |
|---|---|---|
| R0822801 | BICKFORD GRANT A | 714 PIONEER DR MILLIKEN, CO 805433140 |
| R0822801 | FANBERG TORI ALLISON |
| Account | Parcel | Account Type | Tax Year | Buildings | Actual Value | Local Govt Assessed Value | School Assessed Value |
|---|---|---|---|---|---|---|---|
| R0822801 | 105912036020 | Residential | 2026 | 1 | 478,922 | 29,940 | 33,770 |
| Reception | Rec Date | Type | Grantor | Grantee | Doc Fee | Sale Date | Sale Price |
|---|---|---|---|---|---|---|---|
| 2833840 | NA | SUB | SUBDIVISION | SETTLERS VILLAGE | 0.00 | NA | 0 |
| 4403623 | 06-01-2018 | QC | LOT HOLDING INVESTMENTS LLC | WINDMILL HOME COMPANY | 6.50 | 05-31-2018 | 65,000 |
| 4403771 | 06-01-2018 | SWD | WINDMILL HOME COMPANY | MAXWELL PETER JACOB; MAXWELL WENDI ANN | 32.21 | 05-31-2018 | 322,100 |
| 4651099 | 11-16-2020 | SWD | MAXWELL PETER JACOB; MAXWELL WENDI ANN | BESTON THOMAS J; BESTON MARGIE J | 37.20 | 11-13-2020 | 372,000 |
| 4943111 | 02-06-2024 | SWD | BESTON THOMAS J; BESTON MARGIE J | BICKFORD GRANT A; FANBERG TORI ALLISON | 45.90 | 02-05-2024 | 459,000 |
*If the hyperlink for the reception number does not work, try a manual search in the Clerk and Recorder records. Use the Grantor or Grantee in your search.
| Account | Parcel | Account Type | Tax Year | Buildings | Actual Value | Local Govt Assessed Value | School Assessed Value |
|---|---|---|---|---|---|---|---|
| R0822801 | 105912036020 | Residential | 2026 | 1 | 478,922 | 29,940 | 33,770 |
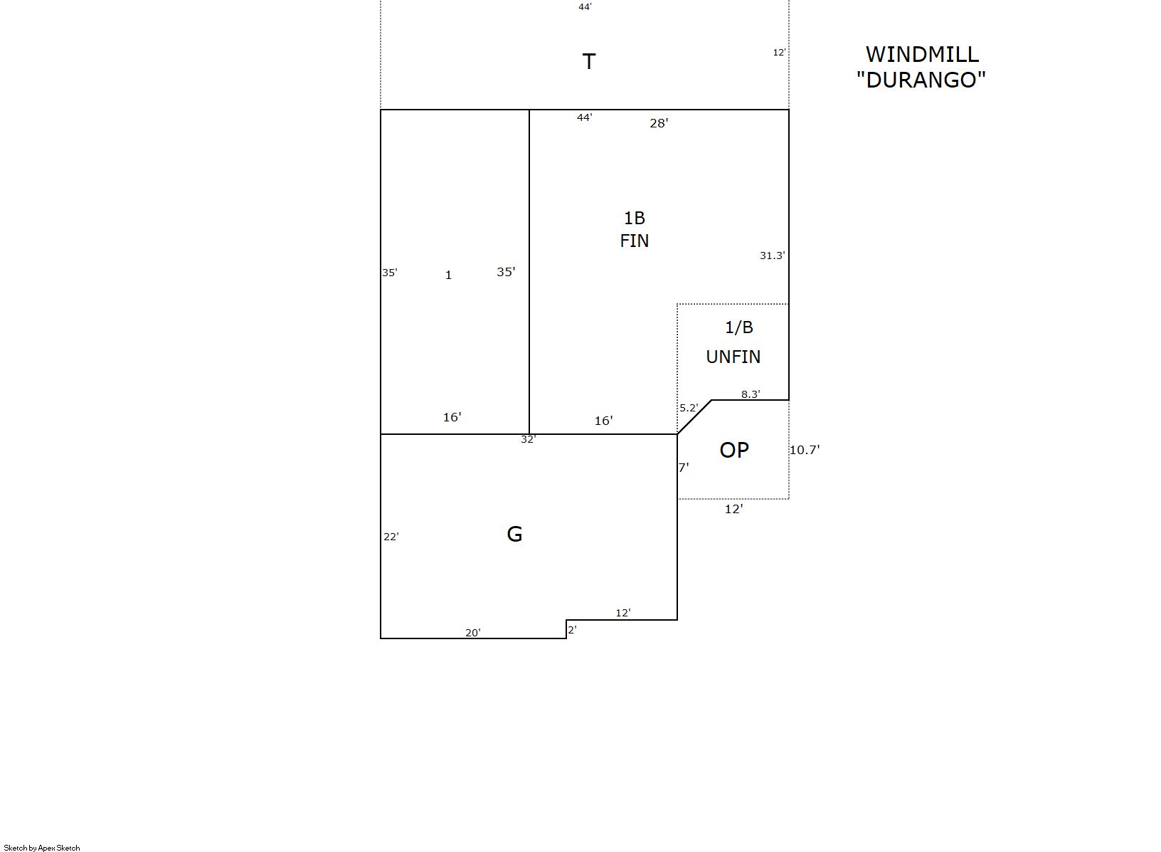
Building 1
| AccountNo | Building ID | Occupancy |
|---|---|---|
| R0822801 | 1 | Single Family Residential |
| ID | Type | NBHD | Occupancy | % Complete | Bedrooms | Baths |
|---|---|---|---|---|---|---|
| 1 | Residential | 0M2074 | Single Family Residential | 100 | 3 | 3.00 |
| ID | Exterior | Roof Cover | Interior | HVAC | Perimeter | Units | Unit Type | Make |
|---|---|---|---|---|---|---|---|---|
| 1 | Frame Siding | Composition Shingle | Drywall | Central Air to Air | 156 | 0 | NA | NA |
| ID | Square Ft | Condo SF | Total Basement SF | Finished Basement SF | Garage SF | Carport SF | Balcony SF | Porch SF |
|---|---|---|---|---|---|---|---|---|
| 1 | 1,502 | 0 | 942 | 812 | 680 | 0 | 0 | 121 |
| ID | Built As | Square Ft | Year Built | Stories | Length | Width |
|---|---|---|---|---|---|---|
| 1.00 | Ranch 1 Story | 1,502 | 2017 | 1 | 0 | 0 |
| ID | Detail Type | Description | Units |
|---|---|---|---|
| 1 | Basement | Finished | 812.00 |
| 1 | Basement | Total Basement SF | 942.00 |
| 1 | Fixture | Full Bath | 3.00 |
| 1 | Garage | Attached | 680.00 |
| 1 | Porch | Open Slab | 528.00 |
| 1 | Porch | Slab Roof Ceil | 121.00 |
| Account | Parcel | Account Type | Tax Year | Buildings | Actual Value | Local Govt Assessed Value | School Assessed Value |
|---|---|---|---|---|---|---|---|
| R0822801 | 105912036020 | Residential | 2026 | 1 | 478,922 | 29,940 | 33,770 |
| Type | Code | Description | Actual Value | Local Govt Assessed Value | School Assessed Value | Acres | Land SqFt |
|---|---|---|---|---|---|---|---|
| Improvement | 1212 | SINGLE FAMILY RESIDENTIAL IMPROVEMENTS | 384,922 | 24,060 | 27,140 | 0.000 | 0 |
| Land | 1112 | SINGLE FAMILY RESIDENTIAL-LAND | 94,000 | 5,880 | 6,630 | 0.139 | 6,050 |
| Totals | - | - | 478,922 | 29,940 | 33,770 | 0.139 | 6,050 |
Comparable sales for your Residential or Commercial property may be found using our SALES SEARCH TOOL
Values are updated annually on May 1st for Real Property and June 15th for Personal Property and Oil and Gas.
| Account | Parcel | Account Type | Tax Year | Buildings | Actual Value | Local Govt Assessed Value | School Assessed Value |
|---|---|---|---|---|---|---|---|
| R0822801 | 105912036020 | Residential | 2026 | 1 | 478,922 | 29,940 | 33,770 |
| Tax Area | District ID | District Name | Local Govt Mill Levy |
School Mill Levy |
Estimated Taxes |
|---|---|---|---|---|---|
| 5783 | 0700 | AIMS JUNIOR COLLEGE | 6.313 | 0.000 | $189.01 |
| 5783 | 1413 | CENTENNIAL CROSSING METRO 2 | 45.000 | 0.000 | $1,347.30 |
| 5783 | 0302 | CENTRAL COLORADO WATER (CCW) | 0.980 | 0.000 | $29.34 |
| 5783 | 0309 | CENTRAL COLORADO WATER SUBDISTRICT (CCS) | 1.462 | 0.000 | $43.77 |
| 5783 | 0510 | FRONT RANGE FIRE RESCUE FIRE PROTECTION DISTRICT | 11.483 | 0.000 | $343.80 |
| 5783 | 1050 | HIGH PLAINS LIBRARY | 3.044 | 0.000 | $91.14 |
| 5783 | 0306 | LITTLE THOMPSON WATER (LTW) | 0.000 | 0.000 | $0.00 |
| 5783 | 0421 | MILLIKEN TOWN | 26.301 | 0.000 | $787.45 |
| 5783 | 0301 | NORTHERN COLORADO WATER (NCW) | 1.000 | 0.000 | $29.94 |
| 5783 | 0205 | SCHOOL DIST RE5J-JOHNSTOWN | 0.000 | 36.271 | $1,224.87 |
| 5783 | 0901 | THOMPSON RIVER REC | 3.594 | 0.000 | $107.60 |
| 5783 | 0100 | WELD COUNTY | 15.956 | 0.000 | $477.72 |
| 5783 | 1200 | WEST GREELEY CONSERVATION | 0.414 | 0.000 | $12.40 |
| Total | - | - | 115.547 | 36.271 | $4,684.35 |
The estimate of tax is based on the prior year mill levy and the 2025 projected assessment rates. Mill levies and tax estimates will be updated yearly on December 22nd for the current year. Additional information can be found at https://assessor.weld.gov


