Account: R0823886
April 1, 2026
| Account | Parcel | Account Type | Tax Year | Buildings | Actual Value | Local Govt Assessed Value | School Assessed Value |
|---|---|---|---|---|---|---|---|
| R0823886 | 070713210007 | Residential | 2026 | 1 | 386,755 | 24,180 | 27,270 |
| Legal |
|---|
| ALT 18193 E100' LOT A BLK8 H & G |
| Subdivision | Block | Lot | Land Economic Area |
|---|---|---|---|
| HASBROUCK & GALE'S ADD | 8 | A | AULT RURAL |
| Property Address | Property City | Section | Township | Range |
|---|---|---|---|---|
| 315 3RD AVE | AULT | 13 | 07 | 66 |
| Account | Parcel | Account Type | Tax Year | Buildings | Actual Value | Local Govt Assessed Value | School Assessed Value |
|---|---|---|---|---|---|---|---|
| R0823886 | 070713210007 | Residential | 2026 | 1 | 386,755 | 24,180 | 27,270 |
| Account | Owner Name | Address |
|---|---|---|
| R0823886 | ALFARO JANIE | PO BOX 1081 AULT, CO 806101081 |
| R0823886 | NUNEZ MONICA MARIA ALFARO |
| Account | Parcel | Account Type | Tax Year | Buildings | Actual Value | Local Govt Assessed Value | School Assessed Value |
|---|---|---|---|---|---|---|---|
| R0823886 | 070713210007 | Residential | 2026 | 1 | 386,755 | 24,180 | 27,270 |
| Reception | Rec Date | Type | Grantor | Grantee | Doc Fee | Sale Date | Sale Price |
|---|---|---|---|---|---|---|---|
| 02042469 | 02-11-1986 | WDN | 0.00 | 01-01-1900 | 0 | ||
| 116004 | NA | SUB | SUBDIVISION | HASBROUCK & GALES ADD | 0.00 | NA | 0 |
| 3342007 | 11-22-2005 | QCN | ALFARO CELESTINA & JANIE | ALFARO CELESTINA | 0.00 | 11-17-2005 | 0 |
| 3343105 | 11-29-2005 | QCN | ALFARO CELESTINA | ALFARO CELESTINA & | 0.00 | 11-17-2005 | 0 |
| 4296626 | 04-25-2017 | DTHC | ALFARO CELESTINA | ALFARO CELESTINA | 0.00 | 10-25-2016 | 0 |
| 4888426 | 03-24-2023 | QCNE | ALFARO JANIE | NUNEZ MONICA MARIA ALFARO; ALFARO JANIE | 0.00 | 03-21-2023 | 0 |
*If the hyperlink for the reception number does not work, try a manual search in the Clerk and Recorder records. Use the Grantor or Grantee in your search.
| Account | Parcel | Account Type | Tax Year | Buildings | Actual Value | Local Govt Assessed Value | School Assessed Value |
|---|---|---|---|---|---|---|---|
| R0823886 | 070713210007 | Residential | 2026 | 1 | 386,755 | 24,180 | 27,270 |
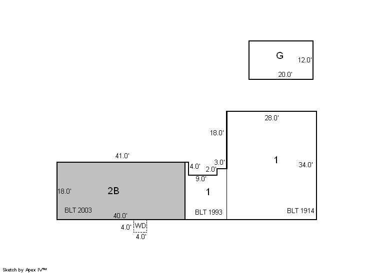
Building 1
| AccountNo | Building ID | Occupancy |
|---|---|---|
| R0823886 | 1 | Single Family Residential |
| ID | Type | NBHD | Occupancy | % Complete | Bedrooms | Baths |
|---|---|---|---|---|---|---|
| 1 | Residential | 9A1045 | Single Family Residential | 100 | 6 | 2.00 |
| ID | Exterior | Roof Cover | Interior | HVAC | Perimeter | Units | Unit Type | Make |
|---|---|---|---|---|---|---|---|---|
| 1 | Frame Hardboard | Composition Shingle | Drywall | Forced Air | 0 | 0 | NA | NA |
| ID | Square Ft | Condo SF | Total Basement SF | Finished Basement SF | Garage SF | Carport SF | Balcony SF | Porch SF |
|---|---|---|---|---|---|---|---|---|
| 1 | 2,584 | 0 | 720 | 0 | 240 | 0 | 0 | 16 |
| ID | Built As | Square Ft | Year Built | Stories | Length | Width |
|---|---|---|---|---|---|---|
| 1.00 | 2 Story | 2,584 | 1914 | 2 | 0 | 0 |
| ID | Detail Type | Description | Units |
|---|---|---|---|
| 1 | Basement | Total Basement SF | 720.00 |
| 1 | Fixture | Full Bath | 2.00 |
| 1 | Garage | Detached | 240.00 |
| 1 | Porch | Wood Deck | 16.00 |
| Account | Parcel | Account Type | Tax Year | Buildings | Actual Value | Local Govt Assessed Value | School Assessed Value |
|---|---|---|---|---|---|---|---|
| R0823886 | 070713210007 | Residential | 2026 | 1 | 386,755 | 24,180 | 27,270 |
| Type | Code | Description | Actual Value | Local Govt Assessed Value | School Assessed Value | Acres | Land SqFt |
|---|---|---|---|---|---|---|---|
| Improvement | 1212 | SINGLE FAMILY RESIDENTIAL IMPROVEMENTS | 311,620 | 19,480 | 21,970 | 0.000 | 0 |
| Land | 1112 | SINGLE FAMILY RESIDENTIAL-LAND | 75,135 | 4,700 | 5,300 | 0.500 | 21,780 |
| Totals | - | - | 386,755 | 24,180 | 27,270 | 0.500 | 21,780 |
Comparable sales for your Residential or Commercial property may be found using our SALES SEARCH TOOL
Values are updated annually on May 1st for Real Property and June 15th for Personal Property and Oil and Gas.
| Account | Parcel | Account Type | Tax Year | Buildings | Actual Value | Local Govt Assessed Value | School Assessed Value |
|---|---|---|---|---|---|---|---|
| R0823886 | 070713210007 | Residential | 2026 | 1 | 386,755 | 24,180 | 27,270 |
| Tax Area | District ID | District Name | Local Govt Mill Levy |
School Mill Levy |
Estimated Taxes |
|---|---|---|---|---|---|
| 0930 | 0700 | AIMS JUNIOR COLLEGE | 6.313 | 0.000 | $152.65 |
| 0930 | 0501 | AULT FIRE | 7.266 | 0.000 | $175.69 |
| 0930 | 0401 | AULT TOWN | 6.741 | 0.000 | $163.00 |
| 0930 | 1050 | HIGH PLAINS LIBRARY | 3.044 | 0.000 | $73.60 |
| 0930 | 0301 | NORTHERN COLORADO WATER (NCW) | 1.000 | 0.000 | $24.18 |
| 0930 | 0209 | SCHOOL DIST RE9-AULT | 0.000 | 34.176 | $931.98 |
| 0930 | 0100 | WELD COUNTY | 15.956 | 0.000 | $385.82 |
| Total | - | - | 40.32 | 34.176 | $1,906.92 |
The estimate of tax is based on the prior year mill levy and the 2025 projected assessment rates. Mill levies and tax estimates will be updated yearly on December 22nd for the current year. Additional information can be found at https://assessor.weld.gov



