Account: R0839901
April 1, 2026
| Account | Parcel | Account Type | Tax Year | Buildings | Actual Value | Local Govt Assessed Value | School Assessed Value |
|---|---|---|---|---|---|---|---|
| R0839901 | 105912045021 | Vacant Land | 2026 | 1 | 477,377 | 29,840 | 33,660 |
| Legal |
|---|
| MIL SV L21 BLK31 SETTLERS VILLAGE |
| Subdivision | Block | Lot | Land Economic Area |
|---|---|---|---|
| SETTLERS VILLAGE | 31 | 21 | SETTLERS VILLAGE |
| Property Address | Property City | Section | Township | Range |
|---|---|---|---|---|
| 868 S DEPOT DR | MILLIKEN | 12 | 04 | 67 |
| Account | Parcel | Account Type | Tax Year | Buildings | Actual Value | Local Govt Assessed Value | School Assessed Value |
|---|---|---|---|---|---|---|---|
| R0839901 | 105912045021 | Vacant Land | 2026 | 1 | 477,377 | 29,840 | 33,660 |
| Account | Owner Name | Address |
|---|---|---|
| R0839901 | ENRIQUEZ TANYA | 868 DEPOT DR MILLIKEN, CO 805433209 |
| R0839901 | HIDALGO JUAN EDUARDO ALCANTAR |
| Account | Parcel | Account Type | Tax Year | Buildings | Actual Value | Local Govt Assessed Value | School Assessed Value |
|---|---|---|---|---|---|---|---|
| R0839901 | 105912045021 | Vacant Land | 2026 | 1 | 477,377 | 29,840 | 33,660 |
| Reception | Rec Date | Type | Grantor | Grantee | Doc Fee | Sale Date | Sale Price |
|---|---|---|---|---|---|---|---|
| 2833840 | NA | SUB | SUBDIVISION | SETTLERS VILLAGE | 0.00 | NA | 0 |
| 4535997 | 10-29-2019 | QC | LOT HOLDING INVESTMENTS LLC | WINDMILL HOMES COMPANY | 7.00 | 10-28-2019 | 70,000 |
| 4536124 | 10-29-2019 | SWD | WINDMILL HOMES COMPANY | ENRIQUEZ TANYA; ALCANTAR JUAN EDUARDO | 37.29 | 10-28-2019 | 372,900 |
| 4754338 | 09-09-2021 | QCN | ALCANTAR JUAN EDUARDO; ENRIQUEZ TANYA | HIDALGO JUAN EDUARDO ALCANTAR; ENRIQUEZ TANYA | 0.00 | 03-06-2021 | 0 |
*If the hyperlink for the reception number does not work, try a manual search in the Clerk and Recorder records. Use the Grantor or Grantee in your search.
| Account | Parcel | Account Type | Tax Year | Buildings | Actual Value | Local Govt Assessed Value | School Assessed Value |
|---|---|---|---|---|---|---|---|
| R0839901 | 105912045021 | Vacant Land | 2026 | 1 | 477,377 | 29,840 | 33,660 |
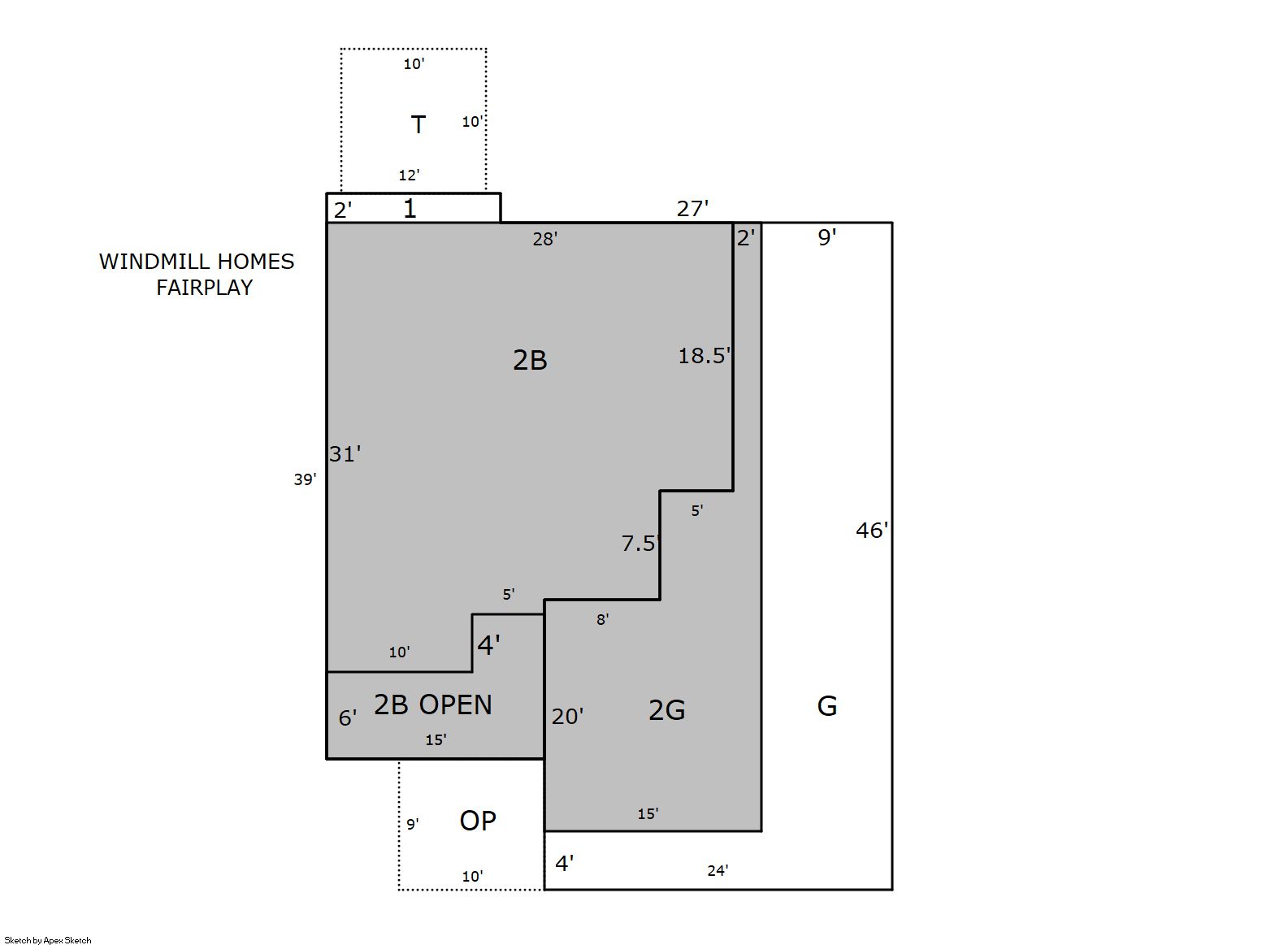
Building 1
| AccountNo | Building ID | Occupancy |
|---|---|---|
| R0839901 | 1 | Single Family Residential |
| ID | Type | NBHD | Occupancy | % Complete | Bedrooms | Baths |
|---|---|---|---|---|---|---|
| 1 | Residential | 0M2074 | Single Family Residential | 100 | 4 | 3.00 |
| ID | Exterior | Roof Cover | Interior | HVAC | Perimeter | Units | Unit Type | Make |
|---|---|---|---|---|---|---|---|---|
| 1 | Frame Siding | Composition Shingle | Drywall | Central Air to Air | 328 | 0 | NA | NA |
| ID | Square Ft | Condo SF | Total Basement SF | Finished Basement SF | Garage SF | Carport SF | Balcony SF | Porch SF |
|---|---|---|---|---|---|---|---|---|
| 1 | 1,955 | 0 | 880 | 0 | 804 | 0 | 0 | 100 |
| ID | Built As | Square Ft | Year Built | Stories | Length | Width |
|---|---|---|---|---|---|---|
| 1.00 | 2 Story | 1,955 | 2019 | 2 | 0 | 0 |
| ID | Detail Type | Description | Units |
|---|---|---|---|
| 1 | Basement | Total Basement SF | 880.00 |
| 1 | Fixture | Full Bath | 2.00 |
| 1 | Fixture | Half Bath | 1.00 |
| 1 | Garage | Attached | 804.00 |
| 1 | Porch | Open Slab | 100.00 |
| 1 | Porch | Slab Roof Ceil | 90.00 |
| 1 | Rough In | Rough In | 1.00 |
| Account | Parcel | Account Type | Tax Year | Buildings | Actual Value | Local Govt Assessed Value | School Assessed Value |
|---|---|---|---|---|---|---|---|
| R0839901 | 105912045021 | Vacant Land | 2026 | 1 | 477,377 | 29,840 | 33,660 |
| Type | Code | Description | Actual Value | Local Govt Assessed Value | School Assessed Value | Acres | Land SqFt |
|---|---|---|---|---|---|---|---|
| Improvement | 1212 | SINGLE FAMILY RESIDENTIAL IMPROVEMENTS | 383,377 | 23,960 | 27,030 | 0.000 | 0 |
| Land | 1112 | SINGLE FAMILY RESIDENTIAL-LAND | 94,000 | 5,880 | 6,630 | 0.139 | 6,050 |
| Totals | - | - | 477,377 | 29,840 | 33,660 | 0.139 | 6,050 |
Comparable sales for your Residential or Commercial property may be found using our SALES SEARCH TOOL
Values are updated annually on May 1st for Real Property and June 15th for Personal Property and Oil and Gas.
| Account | Parcel | Account Type | Tax Year | Buildings | Actual Value | Local Govt Assessed Value | School Assessed Value |
|---|---|---|---|---|---|---|---|
| R0839901 | 105912045021 | Vacant Land | 2026 | 1 | 477,377 | 29,840 | 33,660 |
| Tax Area | District ID | District Name | Local Govt Mill Levy |
School Mill Levy |
Estimated Taxes |
|---|---|---|---|---|---|
| 5783 | 0700 | AIMS JUNIOR COLLEGE | 6.313 | 0.000 | $188.38 |
| 5783 | 1413 | CENTENNIAL CROSSING METRO 2 | 45.000 | 0.000 | $1,342.80 |
| 5783 | 0302 | CENTRAL COLORADO WATER (CCW) | 0.980 | 0.000 | $29.24 |
| 5783 | 0309 | CENTRAL COLORADO WATER SUBDISTRICT (CCS) | 1.462 | 0.000 | $43.63 |
| 5783 | 0510 | FRONT RANGE FIRE RESCUE FIRE PROTECTION DISTRICT | 11.483 | 0.000 | $342.65 |
| 5783 | 1050 | HIGH PLAINS LIBRARY | 3.044 | 0.000 | $90.83 |
| 5783 | 0306 | LITTLE THOMPSON WATER (LTW) | 0.000 | 0.000 | $0.00 |
| 5783 | 0421 | MILLIKEN TOWN | 26.301 | 0.000 | $784.82 |
| 5783 | 0301 | NORTHERN COLORADO WATER (NCW) | 1.000 | 0.000 | $29.84 |
| 5783 | 0205 | SCHOOL DIST RE5J-JOHNSTOWN | 0.000 | 36.271 | $1,220.88 |
| 5783 | 0901 | THOMPSON RIVER REC | 3.594 | 0.000 | $107.24 |
| 5783 | 0100 | WELD COUNTY | 15.956 | 0.000 | $476.13 |
| 5783 | 1200 | WEST GREELEY CONSERVATION | 0.414 | 0.000 | $12.35 |
| Total | - | - | 115.547 | 36.271 | $4,668.80 |
The estimate of tax is based on the prior year mill levy and the 2025 projected assessment rates. Mill levies and tax estimates will be updated yearly on December 22nd for the current year. Additional information can be found at https://assessor.weld.gov


