Account: R0864686

April 1, 2026

Account Parcel Account Type Tax Year Buildings Actual Value Local Govt Assessed Value School Assessed Value
R0864686 070736407003 Residential 2026 1 396,641 24,790 27,970

Legal
ETN 14347 L29-30 BLK4 WEST SIDE

Subdivision Block Lot Land Economic Area
WEST SIDE ADD 4 29 HISTORIC EATON

Property Address Property City Section Township Range
325 PARK AVE EATON 36 07 66




Account Parcel Account Type Tax Year Buildings Actual Value Local Govt Assessed Value School Assessed Value
R0864686 070736407003 Residential 2026 1 396,641 24,790 27,970

Account Owner Name Address
R0864686 ADOLF JASON G 1017 E 20TH ST GREELEY, CO 806316151
R0864686 ADOLF CARRIE L


Account Parcel Account Type Tax Year Buildings Actual Value Local Govt Assessed Value School Assessed Value
R0864686 070736407003 Residential 2026 1 396,641 24,790 27,970

Reception Rec Date Type Grantor Grantee Doc Fee Sale Date Sale Price
02269140 11-13-1991 QCN 0.00 01-01-1900 0
2188843 08-17-1989 PRD SHERROW ELLA LOCKMAN RONALD J & 2.65 08-16-1989 26,500
2644617 10-02-1998 WD LOCKMAN RONALD J HABERKORN JONATHAN & CARRIE 8.35 09-25-1998 83,500
2848840 05-16-2001 WD HABERKORN JONATHAN & CARRIE MACGREGOR MEIGHEN H & 10.44 05-11-2001 104,400
3482578 06-11-2007 PTD MACGREGOR MEIGHEN H & SECRETARY OF HOUSING AND URBAN DEVELOPME 0.00 06-11-2007 0
3501506 09-04-2007 SWD SECRETARY OF HOUSING AND URBAN DEVELOPME BOLIN ROBERT R & 0.00 08-24-2007 81,000
3984225 12-16-2013 QCN BOLIN DENA M BOLIN ROBERT R 0.00 12-16-2013 0
4285057 03-13-2017 WD BOLIN ROBERT R ADOLF CARRIE L; ADOLF JASON G 4.98 03-02-2017 49,800
81751 NA SUB SUBDIVISION WESTSIDE ADD 0.00 NA 0



Account Parcel Account Type Tax Year Buildings Actual Value Local Govt Assessed Value School Assessed Value
R0864686 070736407003 Residential 2026 1 396,641 24,790 27,970

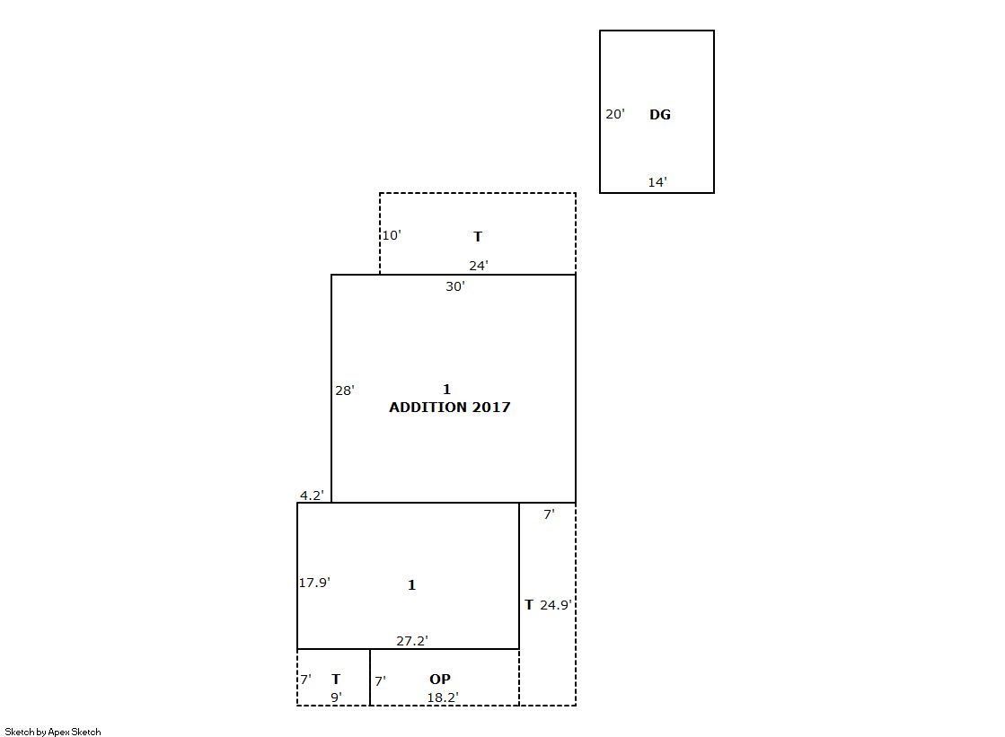
Building 1

AccountNo Building ID Occupancy
R0864686 1 Single Family Residential


ID Type NBHD Occupancy % Complete Bedrooms Baths
1 Residential 9E0009 Single Family Residential 100 3 1.00


ID Exterior Roof Cover Interior HVAC Perimeter Units Unit Type Make
1 Frame Hardboard Composition Shingle Drywall Forced Air 160 0 NA NA


ID Square Ft Condo SF Total Basement SF Finished Basement SF Garage SF Carport SF Balcony SF Porch SF
1 1,327 0 0 0 280 0 0 127


Built As Details for Building 1
ID Built As Square Ft Year Built Stories Length Width
1.00 Ranch 1 Story 1,327 1910 1


Additional Details for Building 1
ID Detail Type Description Units
1 Fixture Full Bath 1.00
1 Garage Detached 280.00
1 Porch Open Slab 477.00
1 Porch Slab Roof Ceil 127.00





Account Parcel Account Type Tax Year Buildings Actual Value Local Govt Assessed Value School Assessed Value
R0864686 070736407003 Residential 2026 1 396,641 24,790 27,970

Type Code Description Actual Value Local Govt Assessed Value School Assessed Value Acres Land SqFt
Improvement 1212 SINGLE FAMILY RESIDENTIAL IMPROVEMENTS 343,641 21,480 24,230 0.000 0
Land 1112 SINGLE FAMILY RESIDENTIAL-LAND 53,000 3,310 3,740 0.161 7,000
Totals - - 396,641 24,790 27,970 0.161 7,000


Account Parcel Account Type Tax Year Buildings Actual Value Local Govt Assessed Value School Assessed Value
R0864686 070736407003 Residential 2026 1 396,641 24,790 27,970

Tax Area District ID District Name Local Govt
Mill Levy
School
Mill Levy
Estimated
Taxes
5059 0700 AIMS JUNIOR COLLEGE 6.313 0.000 $156.50
5059 0911 EATON AREA PARK AND RECREATION DISTRICT 5.425 0.000 $134.49
5059 0505 EATON FIRE 9.000 0.000 $223.11
5059 0403 EATON TOWN 5.007 0.000 $124.12
5059 1050 HIGH PLAINS LIBRARY 3.044 0.000 $75.46
5059 0301 NORTHERN COLORADO WATER (NCW) 1.000 0.000 $24.79
5059 0202 SCHOOL DIST RE2-EATON 0.000 34.206 $956.74
5059 0100 WELD COUNTY 15.956 0.000 $395.55
Total - - 45.745 34.206 $2,090.76


The estimate of tax is based on the prior year mill levy and the 2025 projected assessment rates. Mill levies and tax estimates will be updated yearly on December 22nd for the current year. Additional information can be found at https://assessor.weld.gov










Select Reports to Print: