Account: R0882001
April 1, 2026
| Account | Parcel | Account Type | Tax Year | Buildings | Actual Value | Local Govt Assessed Value | School Assessed Value |
|---|---|---|---|---|---|---|---|
| R0882001 | 080306010014 | Residential | 2026 | 1 | 421,961 | 26,380 | 29,750 |
| Legal |
|---|
| ETN MWE L14 BLK7 MAPLEWOOD ESTATES |
| Subdivision | Block | Lot | Land Economic Area |
|---|---|---|---|
| MAPLEWOOD ESTATES SUB | 7 | 14 | MAPLEWOOD |
| Property Address | Property City | Section | Township | Range |
|---|---|---|---|---|
| 425 BUCKEYE AVE | EATON | 06 | 06 | 65 |
| Account | Parcel | Account Type | Tax Year | Buildings | Actual Value | Local Govt Assessed Value | School Assessed Value |
|---|---|---|---|---|---|---|---|
| R0882001 | 080306010014 | Residential | 2026 | 1 | 421,961 | 26,380 | 29,750 |
| Account | Owner Name | Address |
|---|---|---|
| R0882001 | AMERICAN HOMES 4 RENT PROPERTIES FIVE | ATTN: PROPERTY TAX DEPARTMENT 23975 PARK SORRENTO STE 300 CALABASAS, CA 913024012 |
| Account | Parcel | Account Type | Tax Year | Buildings | Actual Value | Local Govt Assessed Value | School Assessed Value |
|---|---|---|---|---|---|---|---|
| R0882001 | 080306010014 | Residential | 2026 | 1 | 421,961 | 26,380 | 29,750 |
| Reception | Rec Date | Type | Grantor | Grantee | Doc Fee | Sale Date | Sale Price |
|---|---|---|---|---|---|---|---|
| 2851742 | NA | SUB | SUBDIVISION | MAPLEWOOD ESTATES | 0.00 | NA | 0 |
| 2882626 | 09-11-2001 | QCN | RENFROE JACK P (1/3 INT UND) & | RENFROE BRUNNER DEVELOPMENT LLC | 0.00 | 09-04-2001 | 0 |
| 3264689 | 03-02-2005 | WD | RENFROE BRUNNER DEVELOPMENT LLC | DAN & PAT MALPIEDE HOMES LLC | 10.20 | 03-01-2005 | 102,000 |
| 3314170 | 08-18-2005 | WD | DAN & PAT MALPEIDE HOMES LLC | ADAMS CHRISTINA L | 19.95 | 08-17-2005 | 199,500 |
| 3944249 | 07-01-2013 | PTDE | ADAMS CHRISTINA | AMERICAN HOMES 4 RENT PROPERTIES FIVE LLC | 0.00 | 06-28-2013 | 0 |
*If the hyperlink for the reception number does not work, try a manual search in the Clerk and Recorder records. Use the Grantor or Grantee in your search.
| Account | Parcel | Account Type | Tax Year | Buildings | Actual Value | Local Govt Assessed Value | School Assessed Value |
|---|---|---|---|---|---|---|---|
| R0882001 | 080306010014 | Residential | 2026 | 1 | 421,961 | 26,380 | 29,750 |
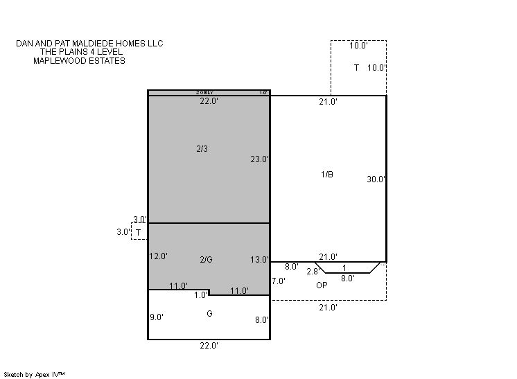
Building 1
| AccountNo | Building ID | Occupancy |
|---|---|---|
| R0882001 | 1 | Single Family Residential |
| ID | Type | NBHD | Occupancy | % Complete | Bedrooms | Baths |
|---|---|---|---|---|---|---|
| 1 | Residential | 9E2010 | Single Family Residential | 100 | 3 | 2.00 |
| ID | Exterior | Roof Cover | Interior | HVAC | Perimeter | Units | Unit Type | Make |
|---|---|---|---|---|---|---|---|---|
| 1 | Frame Hardboard | Composition Shingle | Drywall | Central Air to Air | 0 | 0 | NA | NA |
| ID | Square Ft | Condo SF | Total Basement SF | Finished Basement SF | Garage SF | Carport SF | Balcony SF | Porch SF |
|---|---|---|---|---|---|---|---|---|
| 1 | 1,959 | 0 | 630 | 0 | 462 | 0 | 0 | 127 |
| ID | Built As | Square Ft | Year Built | Stories | Length | Width |
|---|---|---|---|---|---|---|
| 1.00 | Split Level | 1,959 | 2005 | 1 | 0 | 0 |
| ID | Detail Type | Description | Units |
|---|---|---|---|
| 1 | Add On | Unfinished Area | 506.00 |
| 1 | Basement | Total Basement SF | 630.00 |
| 1 | Fixture | Full Bath | 2.00 |
| 1 | Garage | Attached | 462.00 |
| 1 | Porch | Open Slab | 109.00 |
| 1 | Porch | Slab Roof Ceil | 127.00 |
| 1 | Rough In | Rough In | 1.00 |
| Account | Parcel | Account Type | Tax Year | Buildings | Actual Value | Local Govt Assessed Value | School Assessed Value |
|---|---|---|---|---|---|---|---|
| R0882001 | 080306010014 | Residential | 2026 | 1 | 421,961 | 26,380 | 29,750 |
| Type | Code | Description | Actual Value | Local Govt Assessed Value | School Assessed Value | Acres | Land SqFt |
|---|---|---|---|---|---|---|---|
| Improvement | 1212 | SINGLE FAMILY RESIDENTIAL IMPROVEMENTS | 338,961 | 21,190 | 23,900 | 0.000 | 0 |
| Land | 1112 | SINGLE FAMILY RESIDENTIAL-LAND | 83,000 | 5,190 | 5,850 | 0.179 | 7,800 |
| Totals | - | - | 421,961 | 26,380 | 29,750 | 0.179 | 7,800 |
Comparable sales for your Residential or Commercial property may be found using our SALES SEARCH TOOL
Values are updated annually on May 1st for Real Property and June 15th for Personal Property and Oil and Gas.
| Account | Parcel | Account Type | Tax Year | Buildings | Actual Value | Local Govt Assessed Value | School Assessed Value |
|---|---|---|---|---|---|---|---|
| R0882001 | 080306010014 | Residential | 2026 | 1 | 421,961 | 26,380 | 29,750 |
| Tax Area | District ID | District Name | Local Govt Mill Levy |
School Mill Levy |
Estimated Taxes |
|---|---|---|---|---|---|
| 6324 | 0700 | AIMS JUNIOR COLLEGE | 6.313 | 0.000 | $166.54 |
| 6324 | 0911 | EATON AREA PARK AND RECREATION DISTRICT | 5.425 | 0.000 | $143.11 |
| 6324 | 0505 | EATON FIRE | 9.000 | 0.000 | $237.42 |
| 6324 | 0403 | EATON TOWN | 5.007 | 0.000 | $132.08 |
| 6324 | 1050 | HIGH PLAINS LIBRARY | 3.044 | 0.000 | $80.30 |
| 6324 | 0301 | NORTHERN COLORADO WATER (NCW) | 1.000 | 0.000 | $26.38 |
| 6324 | 0202 | SCHOOL DIST RE2-EATON | 0.000 | 34.206 | $1,017.63 |
| 6324 | 0100 | WELD COUNTY | 15.956 | 0.000 | $420.92 |
| 6324 | 1200 | WEST GREELEY CONSERVATION | 0.414 | 0.000 | $10.92 |
| Total | - | - | 46.159 | 34.206 | $2,235.30 |
The estimate of tax is based on the prior year mill levy and the 2025 projected assessment rates. Mill levies and tax estimates will be updated yearly on December 22nd for the current year. Additional information can be found at https://assessor.weld.gov



