Account: R0890186

April 5, 2026

Account Parcel Account Type Tax Year Buildings Actual Value Local Govt Assessed Value School Assessed Value
R0890186 070736428005 Residential 2026 1 416,398 26,020 29,360

Legal
ETN NW4-10 L10 BLK4 NORTHWEST SUB

Subdivision Block Lot Land Economic Area
NORTHWEST SUB 4 10 WEST EATON

Property Address Property City Section Township Range
830 PONDEROSA CT EATON 36 07 66




Account Parcel Account Type Tax Year Buildings Actual Value Local Govt Assessed Value School Assessed Value
R0890186 070736428005 Residential 2026 1 416,398 26,020 29,360

Account Owner Name Address
R0890186 MARTIN REJEANA 830 PONDEROSA CT EATON, CO 806153558


Account Parcel Account Type Tax Year Buildings Actual Value Local Govt Assessed Value School Assessed Value
R0890186 070736428005 Residential 2026 1 416,398 26,020 29,360

Reception Rec Date Type Grantor Grantee Doc Fee Sale Date Sale Price
01967625 05-21-1984 WDN 0.00 01-01-1900 0
1611484 NA SUB SUBDIVISION NORTHWEST 0.00 NA 0
2353152 10-04-1993 WD SCHMUNK GARY D & JUDY L SMITH RICHARD K & 8.79 09-30-1993 87,900
2499244 07-02-1996 WD SMITH RICHARD K & HABERMAN BRIAN J & LORI L 13.25 06-28-1996 132,500
2511462 09-18-1996 QCN HABERMAN BRIAN J & LORI L HABERMAN BRIAN JAMES & LORI L 0.00 08-19-1996 0
2877110 08-23-2001 WD HABERMAN BRIAN JAMES & LORI L CASE LINDA JEAN 17.30 08-21-2001 173,000
3850698 06-06-2012 WD CASE LINDA JEAN SLY THOMAS GRANT JR 17.70 05-18-2012 177,000
4163774 12-08-2015 SURV SURVEY SURVEY 0.00 11-09-2015 0
4846890 08-08-2022 WD SLY THOMAS GRANT JR; LOONEY HEATHER COLLEEN MARTIN REJEANA 45.00 08-05-2022 450,000
X0002861 05-21-1984 WD CARROLL LORE I; CARROLL JAMES H SCHMUNK GARY D & JUDY L 6.70 05-21-1984 67,000



Account Parcel Account Type Tax Year Buildings Actual Value Local Govt Assessed Value School Assessed Value
R0890186 070736428005 Residential 2026 1 416,398 26,020 29,360

Building 1

AccountNo Building ID Occupancy
R0890186 1 Single Family Residential


ID Type NBHD Occupancy % Complete Bedrooms Baths
1 Residential 9E2011 Single Family Residential 100 5 2.00


ID Exterior Roof Cover Interior HVAC Perimeter Units Unit Type Make
1 Frame Hardboard Composition Shingle Drywall Central Air to Air 162 0 NA NA


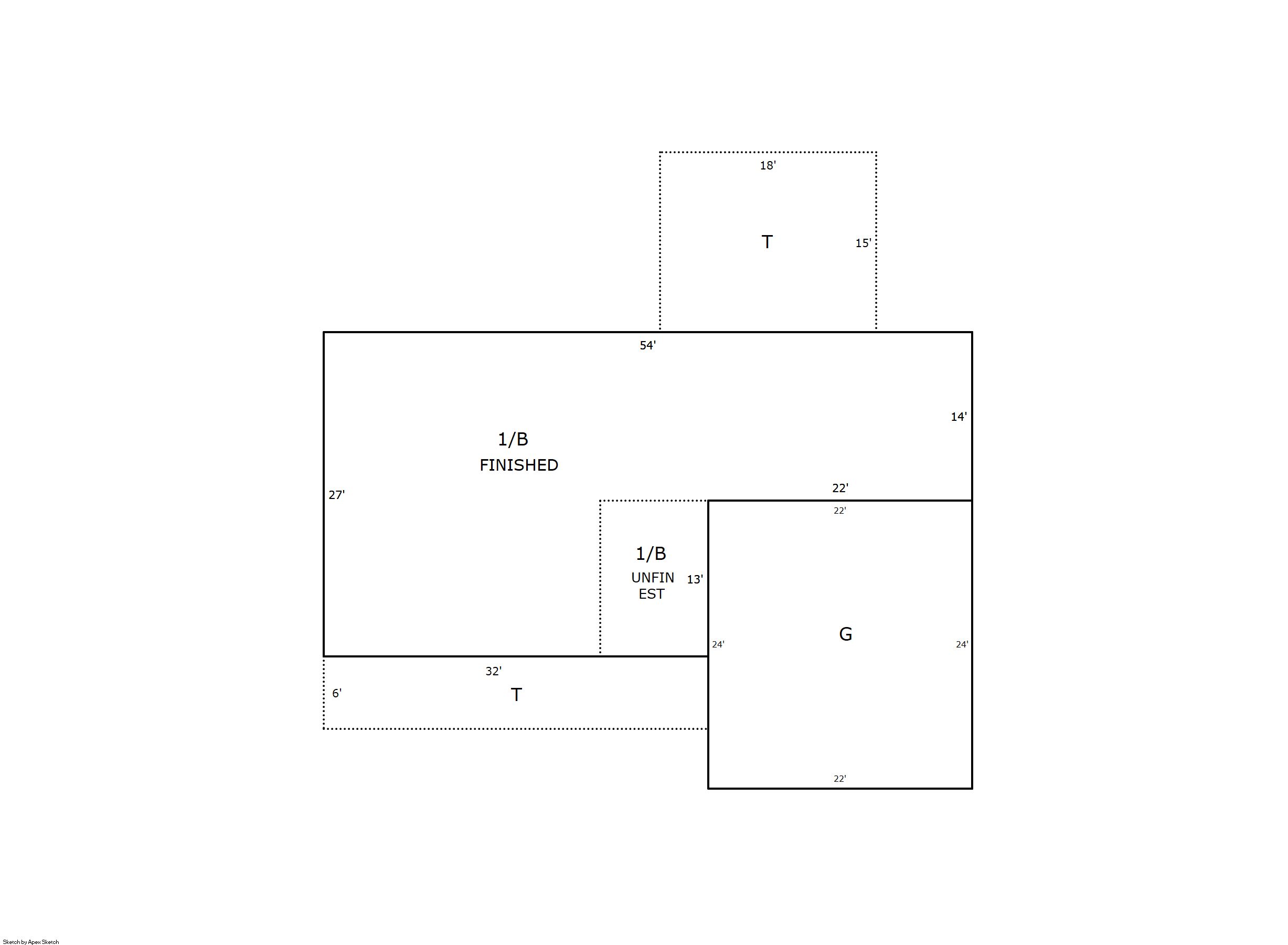
ID Square Ft Condo SF Total Basement SF Finished Basement SF Garage SF Carport SF Balcony SF Porch SF
1 1,172 0 1,172 1,055 528 0 0 462


Built As Details for Building 1
ID Built As Square Ft Year Built Stories Length Width
1.00 Ranch 1 Story 1,172 1974 1 0 0


Additional Details for Building 1
ID Detail Type Description Units
1 Add On Fireplace Wood 1.00
1 Add On Shed Frame 320.00
1 Basement Finished 1055.00
1 Basement Total Basement SF 1172.00
1 Fixture Full Bath 2.00
1 Garage Attached 528.00
1 Porch Open Slab 462.00





Account Parcel Account Type Tax Year Buildings Actual Value Local Govt Assessed Value School Assessed Value
R0890186 070736428005 Residential 2026 1 416,398 26,020 29,360

Type Code Description Actual Value Local Govt Assessed Value School Assessed Value Acres Land SqFt
Improvement 1212 SINGLE FAMILY RESIDENTIAL IMPROVEMENTS 355,398 22,210 25,060 0.000 0
Land 1112 SINGLE FAMILY RESIDENTIAL-LAND 61,000 3,810 4,300 0.220 9,581
Totals - - 416,398 26,020 29,360 0.220 9,581


Account Parcel Account Type Tax Year Buildings Actual Value Local Govt Assessed Value School Assessed Value
R0890186 070736428005 Residential 2026 1 416,398 26,020 29,360

Tax Area District ID District Name Local Govt
Mill Levy
School
Mill Levy
Estimated
Taxes
5059 0700 AIMS JUNIOR COLLEGE 6.313 0.000 $164.26
5059 0911 EATON AREA PARK AND RECREATION DISTRICT 5.425 0.000 $141.16
5059 0505 EATON FIRE 9.000 0.000 $234.18
5059 0403 EATON TOWN 5.007 0.000 $130.28
5059 1050 HIGH PLAINS LIBRARY 3.044 0.000 $79.20
5059 0301 NORTHERN COLORADO WATER (NCW) 1.000 0.000 $26.02
5059 0202 SCHOOL DIST RE2-EATON 0.000 34.206 $1,004.29
5059 0100 WELD COUNTY 15.956 0.000 $415.18
Total - - 45.745 34.206 $2,194.57


The estimate of tax is based on the prior year mill levy and the 2025 projected assessment rates. Mill levies and tax estimates will be updated yearly on December 22nd for the current year. Additional information can be found at https://assessor.weld.gov










Select Reports to Print: