Account: R0925186
April 4, 2026
| Account | Parcel | Account Type | Tax Year | Buildings | Actual Value | Local Govt Assessed Value | School Assessed Value |
|---|---|---|---|---|---|---|---|
| R0925186 | 070931202019 | Residential | 2026 | 2 | 368,477 | 23,030 | 25,980 |
| Legal |
|---|
| ETN AH1-7 L7 BLK1 ARROWHEAD |
| Subdivision | Block | Lot | Land Economic Area |
|---|---|---|---|
| ARROWHEAD ADD | 1 | 7 | HISTORIC EATON |
| Property Address | Property City | Section | Township | Range |
|---|---|---|---|---|
| 630 MAPLE AVE | EATON | 31 | 07 | 65 |
| Account | Parcel | Account Type | Tax Year | Buildings | Actual Value | Local Govt Assessed Value | School Assessed Value |
|---|---|---|---|---|---|---|---|
| R0925186 | 070931202019 | Residential | 2026 | 2 | 368,477 | 23,030 | 25,980 |
| Account | Owner Name | Address |
|---|---|---|
| R0925186 | WESELOH JESSICA | 630 MAPLE AVE EATON, CO 806153459 |
| Account | Parcel | Account Type | Tax Year | Buildings | Actual Value | Local Govt Assessed Value | School Assessed Value |
|---|---|---|---|---|---|---|---|
| R0925186 | 070931202019 | Residential | 2026 | 2 | 368,477 | 23,030 | 25,980 |
| Reception | Rec Date | Type | Grantor | Grantee | Doc Fee | Sale Date | Sale Price |
|---|---|---|---|---|---|---|---|
| 01760531 | 07-18-1978 | WDN | 0.00 | 01-01-1900 | 0 | ||
| 02343550 | 07-29-1993 | QCN | 0.00 | 07-28-1993 | 0 | ||
| 1170987 | NA | SUB | SUBDIVISION | ARROWHEAD ADD | 0.00 | NA | 0 |
| 3486515 | 06-28-2007 | WD | SHOWERS HELEN M | JOHNSON FRANKLIN M & | 15.24 | 06-26-2007 | 152,400 |
| 3847541 | 05-22-2012 | PTD | JOHNSON FRANKLIN M | NATIONSTAR MORTGAGE LLC | 0.00 | 05-21-2012 | 0 |
| 3849062 | 05-29-2012 | WDN | NATIONSTAR MORTGAGE LLC | FEDERAL NATIONAL MORTGAGE ASSOCIATION | 0.00 | 05-18-2012 | 0 |
| 3870761 | 09-04-2012 | SWD | FEDERAL NATIONAL MORTGAGE ASSN | HOLLEMON MICHAEL W | 14.94 | 08-30-2012 | 149,400 |
| 4038275 | 08-14-2014 | SURV | SURVEY | SURVEY | 0.00 | 08-14-2014 | 0 |
| 4112650 | 06-03-2015 | WD | HOLLEMON MICHAEL W | MARTIN BRANDON; MARTIN KIM | 20.00 | 05-29-2015 | 200,000 |
| 4515329 | 08-16-2019 | SWD | MARTIN BRANDON; MARTIN KIM | DEFIBAUGH CHRIS J | 27.50 | 08-15-2019 | 275,000 |
| 5061058 | 10-23-2025 | QCN | DEFIBAUGH CHRIS J | WESELOH JESSICA | 0.00 | 10-23-2025 | 0 |
*If the hyperlink for the reception number does not work, try a manual search in the Clerk and Recorder records. Use the Grantor or Grantee in your search.
| Account | Parcel | Account Type | Tax Year | Buildings | Actual Value | Local Govt Assessed Value | School Assessed Value |
|---|---|---|---|---|---|---|---|
| R0925186 | 070931202019 | Residential | 2026 | 2 | 368,477 | 23,030 | 25,980 |
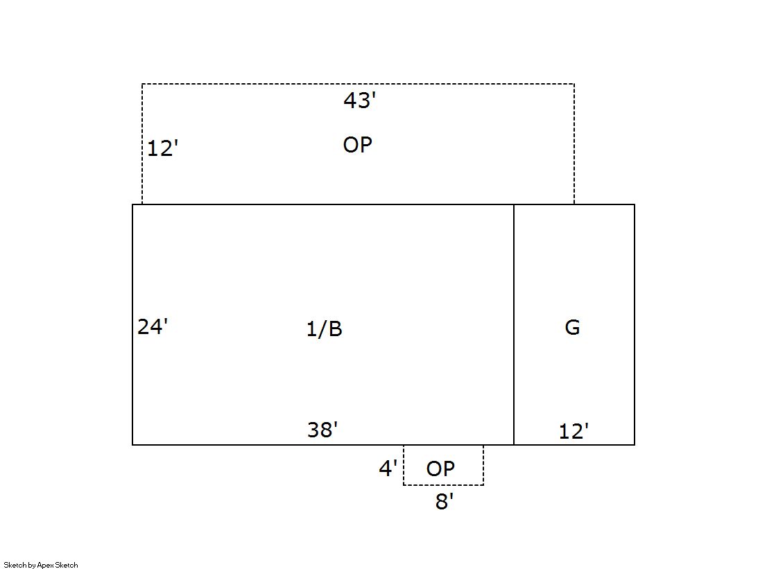
Building 1
| AccountNo | Building ID | Occupancy |
|---|---|---|
| R0925186 | 1 | Single Family Residential |
| ID | Type | NBHD | Occupancy | % Complete | Bedrooms | Baths |
|---|---|---|---|---|---|---|
| 1 | Residential | 9E0009 | Single Family Residential | 100 | 5 | 3.00 |
| ID | Exterior | Roof Cover | Interior | HVAC | Perimeter | Units | Unit Type | Make |
|---|---|---|---|---|---|---|---|---|
| 1 | Frame Siding | Composition Shingle | Drywall | Central Air to Air | 124 | 0 | NA | NA |
| ID | Square Ft | Condo SF | Total Basement SF | Finished Basement SF | Garage SF | Carport SF | Balcony SF | Porch SF |
|---|---|---|---|---|---|---|---|---|
| 1 | 912 | 0 | 912 | 912 | 288 | 0 | 0 | 548 |
| ID | Built As | Square Ft | Year Built | Stories | Length | Width |
|---|---|---|---|---|---|---|
| 1.00 | Ranch 1 Story | 912 | 1958 | 1 | 0 | 0 |
| ID | Detail Type | Description | Units |
|---|---|---|---|
| 1 | Basement | Finished | 912.00 |
| 1 | Basement | Total Basement SF | 912.00 |
| 1 | Fixture | Full Bath | 2.00 |
| 1 | Garage | Attached | 288.00 |
| 1 | Porch | Slab Roof Ceil | 548.00 |
Building 2
| AccountNo | Building ID | Occupancy |
|---|---|---|
| R0925186 | 2 | Utility Building |
| ID | Type | NBHD | Occupancy | % Complete | Bedrooms | Baths |
|---|---|---|---|---|---|---|
| 2 | Out Building | NA | Utility Building | 100 | NA | 0.00 |
| ID | Exterior | Roof Cover | Interior | HVAC | Perimeter | Units | Unit Type | Make |
|---|---|---|---|---|---|---|---|---|
| 2 | NA | NA | NA | None | 80 | 0 | NA | NA |
| ID | Square Ft | Condo SF | Total Basement SF | Finished Basement SF | Garage SF | Carport SF | Balcony SF | Porch SF |
|---|---|---|---|---|---|---|---|---|
| 2 | 400 | 0 | 0 | 0 | 0 | 0 | 0 | 0 |
| ID | Built As | Square Ft | Year Built | Stories | Length | Width |
|---|---|---|---|---|---|---|
| 2.00 | Utility Building | 400 | 1989 | 1 | 20 | 20 |
| ID | Detail Type | Description | Units |
|---|---|---|---|
| 2 | Add On | Finished Space in OutBldg | 400.00 |
| 2 | Add On | Suspended Heat | 1.00 |
| Account | Parcel | Account Type | Tax Year | Buildings | Actual Value | Local Govt Assessed Value | School Assessed Value |
|---|---|---|---|---|---|---|---|
| R0925186 | 070931202019 | Residential | 2026 | 2 | 368,477 | 23,030 | 25,980 |
| Type | Code | Description | Actual Value | Local Govt Assessed Value | School Assessed Value | Acres | Land SqFt |
|---|---|---|---|---|---|---|---|
| Improvement | 1212 | SINGLE FAMILY RESIDENTIAL IMPROVEMENTS | 315,477 | 19,720 | 22,240 | 0.000 | 0 |
| Land | 1112 | SINGLE FAMILY RESIDENTIAL-LAND | 53,000 | 3,310 | 3,740 | 0.158 | 6,900 |
| Totals | - | - | 368,477 | 23,030 | 25,980 | 0.158 | 6,900 |
Comparable sales for your Residential or Commercial property may be found using our SALES SEARCH TOOL
Values are updated annually on May 1st for Real Property and June 15th for Personal Property and Oil and Gas.
| Account | Parcel | Account Type | Tax Year | Buildings | Actual Value | Local Govt Assessed Value | School Assessed Value |
|---|---|---|---|---|---|---|---|
| R0925186 | 070931202019 | Residential | 2026 | 2 | 368,477 | 23,030 | 25,980 |
| Tax Area | District ID | District Name | Local Govt Mill Levy |
School Mill Levy |
Estimated Taxes |
|---|---|---|---|---|---|
| 5059 | 0700 | AIMS JUNIOR COLLEGE | 6.313 | 0.000 | $145.39 |
| 5059 | 0911 | EATON AREA PARK AND RECREATION DISTRICT | 5.425 | 0.000 | $124.94 |
| 5059 | 0505 | EATON FIRE | 9.000 | 0.000 | $207.27 |
| 5059 | 0403 | EATON TOWN | 5.007 | 0.000 | $115.31 |
| 5059 | 1050 | HIGH PLAINS LIBRARY | 3.044 | 0.000 | $70.10 |
| 5059 | 0301 | NORTHERN COLORADO WATER (NCW) | 1.000 | 0.000 | $23.03 |
| 5059 | 0202 | SCHOOL DIST RE2-EATON | 0.000 | 34.206 | $888.67 |
| 5059 | 0100 | WELD COUNTY | 15.956 | 0.000 | $367.47 |
| Total | - | - | 45.745 | 34.206 | $1,942.18 |
The estimate of tax is based on the prior year mill levy and the 2025 projected assessment rates. Mill levies and tax estimates will be updated yearly on December 22nd for the current year. Additional information can be found at https://assessor.weld.gov


