Account: R0937386

April 1, 2026

Account Parcel Account Type Tax Year Buildings Actual Value Local Govt Assessed Value School Assessed Value
R0937386 070931306007 Residential 2026 1 280,841 17,550 19,800

Legal
ETN 14434 L21 BLK2

Subdivision Block Lot Land Economic Area
EATON TOWN 2 21 HISTORIC EATON

Property Address Property City Section Township Range
407 MAPLE AVE EATON 31 07 65




Account Parcel Account Type Tax Year Buildings Actual Value Local Govt Assessed Value School Assessed Value
R0937386 070931306007 Residential 2026 1 280,841 17,550 19,800

Account Owner Name Address
R0937386 HIRSCH JACOB IV 407 MAPLE AVE EATON, CO 806153453
R0937386 ANDERS KELLY


Account Parcel Account Type Tax Year Buildings Actual Value Local Govt Assessed Value School Assessed Value
R0937386 070931306007 Residential 2026 1 280,841 17,550 19,800

Reception Rec Date Type Grantor Grantee Doc Fee Sale Date Sale Price
2203761 01-26-1990 WD WAGNER LETA WAGNER KENNETH E & 2.25 01-26-1990 22,500
2394167 06-20-1994 WD WAGNER KENNETH E & ENQUIST LARRY DUANE 4.80 06-17-1994 48,000
3074316 06-18-2003 PRD ENQUIST LARRY DUANE BOWNESS JOHN E II & KARLA M & SARAH L 9.00 06-12-2003 90,000
3112876 10-02-2003 QCN BOWNESS JOHN E II & JOLIN MORTGAGE SERVICES INC 0.00 09-25-2003 0
33390 NA SUB SUBDIVISION EATON 0.00 NA 0
4376476 02-20-2018 WD JOLIN MORTGAGE SERVICES INC MCCASKILL CLINT; MCCASKILL SHERI 13.00 02-09-2018 130,000
4990164 10-24-2024 WD MCCASKILL CLINT; MCCASKILL SHERI HIRSCH JACOB IV; ANDERS KELLY 27.80 10-22-2024 278,000
5006618 01-17-2025 SURV SURVEY SURVEY 0.00 10-07-2024 0



Account Parcel Account Type Tax Year Buildings Actual Value Local Govt Assessed Value School Assessed Value
R0937386 070931306007 Residential 2026 1 280,841 17,550 19,800

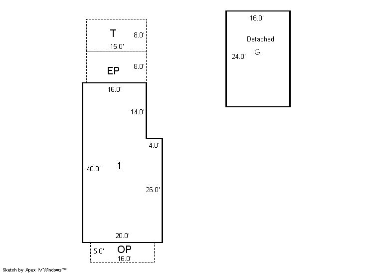
Building 1

AccountNo Building ID Occupancy
R0937386 1 Single Family Residential


ID Type NBHD Occupancy % Complete Bedrooms Baths
1 Residential 9E0009 Single Family Residential 100 2 1.00


ID Exterior Roof Cover Interior HVAC Perimeter Units Unit Type Make
1 Frame Siding Composition Shingle Drywall Floor/Wall Furnace 0 0 NA NA


ID Square Ft Condo SF Total Basement SF Finished Basement SF Garage SF Carport SF Balcony SF Porch SF
1 744 0 0 0 384 0 0 120


Built As Details for Building 1
ID Built As Square Ft Year Built Stories Length Width
1.00 Ranch 1 Story 744 1905 1 0 0


Additional Details for Building 1
ID Detail Type Description Units
1 Fixture Full Bath 1.00
1 Garage Detached 384.00
1 Porch Encl Solid Wall 120.00
1 Porch Open Slab 120.00
1 Porch Slab Roof Ceil 80.00





Account Parcel Account Type Tax Year Buildings Actual Value Local Govt Assessed Value School Assessed Value
R0937386 070931306007 Residential 2026 1 280,841 17,550 19,800

Type Code Description Actual Value Local Govt Assessed Value School Assessed Value Acres Land SqFt
Improvement 1212 SINGLE FAMILY RESIDENTIAL IMPROVEMENTS 243,741 15,230 17,180 0.000 0
Land 1112 SINGLE FAMILY RESIDENTIAL-LAND 37,100 2,320 2,620 0.093 4,063
Totals - - 280,841 17,550 19,800 0.093 4,063


Account Parcel Account Type Tax Year Buildings Actual Value Local Govt Assessed Value School Assessed Value
R0937386 070931306007 Residential 2026 1 280,841 17,550 19,800

Tax Area District ID District Name Local Govt
Mill Levy
School
Mill Levy
Estimated
Taxes
5059 0700 AIMS JUNIOR COLLEGE 6.313 0.000 $110.79
5059 0911 EATON AREA PARK AND RECREATION DISTRICT 5.425 0.000 $95.21
5059 0505 EATON FIRE 9.000 0.000 $157.95
5059 0403 EATON TOWN 5.007 0.000 $87.87
5059 1050 HIGH PLAINS LIBRARY 3.044 0.000 $53.42
5059 0301 NORTHERN COLORADO WATER (NCW) 1.000 0.000 $17.55
5059 0202 SCHOOL DIST RE2-EATON 0.000 34.206 $677.28
5059 0100 WELD COUNTY 15.956 0.000 $280.03
Total - - 45.745 34.206 $1,480.10


The estimate of tax is based on the prior year mill levy and the 2025 projected assessment rates. Mill levies and tax estimates will be updated yearly on December 22nd for the current year. Additional information can be found at https://assessor.weld.gov










Select Reports to Print: