Account: R0937486

April 1, 2026

Account Parcel Account Type Tax Year Buildings Actual Value Local Govt Assessed Value School Assessed Value
R0937486 070931306008 Residential 2026 1 276,686 17,290 19,510

Legal
ETN 14433 L20 BLK2

Subdivision Block Lot Land Economic Area
EATON TOWN 2 20 HISTORIC EATON

Property Address Property City Section Township Range
405 MAPLE AVE EATON 31 07 65




Account Parcel Account Type Tax Year Buildings Actual Value Local Govt Assessed Value School Assessed Value
R0937486 070931306008 Residential 2026 1 276,686 17,290 19,510

Account Owner Name Address
R0937486 HIRSCH JACOB IV 38400 COUNTY ROAD 23 EATON, CO 806158417
R0937486 ANDERS KELLY


Account Parcel Account Type Tax Year Buildings Actual Value Local Govt Assessed Value School Assessed Value
R0937486 070931306008 Residential 2026 1 276,686 17,290 19,510

Reception Rec Date Type Grantor Grantee Doc Fee Sale Date Sale Price
02137079 04-08-1988 WDN 0.00 02-25-1988 0
1574039 08-26-1971 WDN 0.00 08-26-1971 0
1580248 03-20-1961 WDN 0.00 03-20-1961 0
2626248 07-15-1998 AFFD STENGAARD COLLEEN ANN & HEIN MARIE E & STENGAARD COLLEEN ANN & 0.00 07-14-1998 0
2878272 08-28-2001 WD STENGAARD COLLEEN ANN & GURNSEY CHRISTY D 10.05 08-24-2001 100,500
3067336 05-29-2003 WD GURNSEY CHRISTY D WESTMORELAND DEBORAH C 11.20 05-28-2003 112,000
33390 NA SUB SUBDIVISION EATON 0.00 NA 0
3980642 11-26-2013 WDE WESTMORELAND DEBORAH C LAMB WESLEY S 8.50 11-22-2013 85,000
4306882 06-02-2017 WD LAMB WESLEY S; CORNISH MARILYN A MCCARTY LORI L 19.50 06-01-2017 195,000
5038968 07-01-2025 WD MCCARTY LORI L HIRSCH JACOB IV; ANDERS KELLY 32.00 06-30-2025 320,000



Account Parcel Account Type Tax Year Buildings Actual Value Local Govt Assessed Value School Assessed Value
R0937486 070931306008 Residential 2026 1 276,686 17,290 19,510

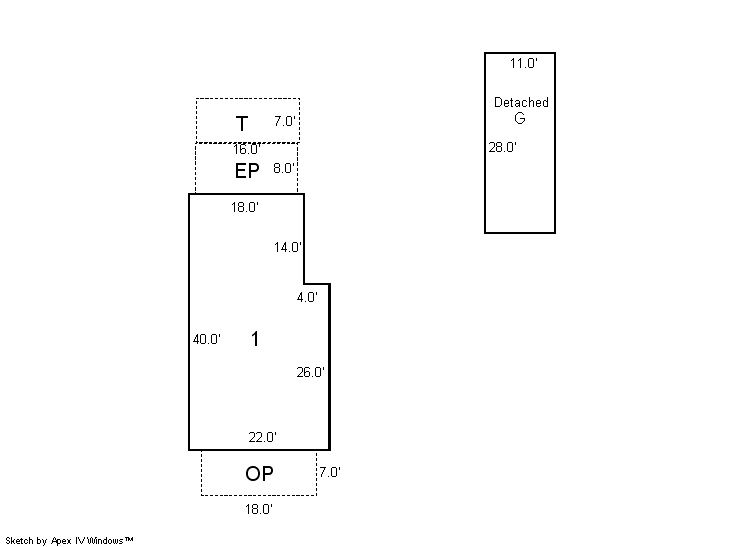
Building 1

AccountNo Building ID Occupancy
R0937486 1 Single Family Residential


ID Type NBHD Occupancy % Complete Bedrooms Baths
1 Residential 9E0009 Single Family Residential 100 2 1.00


ID Exterior Roof Cover Interior HVAC Perimeter Units Unit Type Make
1 Frame Vinyl Composition Shingle Drywall Central Air to Air 0 0 NA NA


ID Square Ft Condo SF Total Basement SF Finished Basement SF Garage SF Carport SF Balcony SF Porch SF
1 824 0 0 0 308 0 0 112


Built As Details for Building 1
ID Built As Square Ft Year Built Stories Length Width
1.00 Ranch 1 Story 824 1900 1 0 0


Additional Details for Building 1
ID Detail Type Description Units
1 Fixture Full Bath 1.00
1 Garage Detached 308.00
1 Porch Encl Solid Wall 128.00
1 Porch Open Slab 112.00
1 Porch Slab Roof Ceil 126.00





Account Parcel Account Type Tax Year Buildings Actual Value Local Govt Assessed Value School Assessed Value
R0937486 070931306008 Residential 2026 1 276,686 17,290 19,510

Type Code Description Actual Value Local Govt Assessed Value School Assessed Value Acres Land SqFt
Improvement 1212 SINGLE FAMILY RESIDENTIAL IMPROVEMENTS 239,586 14,970 16,890 0.000 0
Land 1112 SINGLE FAMILY RESIDENTIAL-LAND 37,100 2,320 2,620 0.093 4,063
Totals - - 276,686 17,290 19,510 0.093 4,063


Account Parcel Account Type Tax Year Buildings Actual Value Local Govt Assessed Value School Assessed Value
R0937486 070931306008 Residential 2026 1 276,686 17,290 19,510

Tax Area District ID District Name Local Govt
Mill Levy
School
Mill Levy
Estimated
Taxes
5059 0700 AIMS JUNIOR COLLEGE 6.313 0.000 $109.15
5059 0911 EATON AREA PARK AND RECREATION DISTRICT 5.425 0.000 $93.80
5059 0505 EATON FIRE 9.000 0.000 $155.61
5059 0403 EATON TOWN 5.007 0.000 $86.57
5059 1050 HIGH PLAINS LIBRARY 3.044 0.000 $52.63
5059 0301 NORTHERN COLORADO WATER (NCW) 1.000 0.000 $17.29
5059 0202 SCHOOL DIST RE2-EATON 0.000 34.206 $667.36
5059 0100 WELD COUNTY 15.956 0.000 $275.88
Total - - 45.745 34.206 $1,458.29


The estimate of tax is based on the prior year mill levy and the 2025 projected assessment rates. Mill levies and tax estimates will be updated yearly on December 22nd for the current year. Additional information can be found at https://assessor.weld.gov










Select Reports to Print: