Account: R0956201
April 4, 2026
| Account | Parcel | Account Type | Tax Year | Buildings | Actual Value | Local Govt Assessed Value | School Assessed Value |
|---|---|---|---|---|---|---|---|
| R0956201 | 131304057002 | Residential | 2026 | 1 | 952,375 | 59,520 | 67,140 |
| Legal |
|---|
| 3EMV L2 BLK5 ELMS AT MEADOW VALE 3RD FG |
| Subdivision | Block | Lot | Land Economic Area |
|---|---|---|---|
| ELMS AT MEADOW VALE 3RD FG | 5 | 2 | ELMS AT MEADOW VALE |
| Property Address | Property City | Section | Township | Range |
|---|---|---|---|---|
| 11813 PLEASANT VIEW RDG | WELD | 04 | 02 | 68 |
| Account | Parcel | Account Type | Tax Year | Buildings | Actual Value | Local Govt Assessed Value | School Assessed Value |
|---|---|---|---|---|---|---|---|
| R0956201 | 131304057002 | Residential | 2026 | 1 | 952,375 | 59,520 | 67,140 |
| Account | Owner Name | Address |
|---|---|---|
| R0956201 | APSOKARDU MATTHEW ALLEN | 11813 PLEASANT VIEW RDG LONGMONT, CO 805046752 |
| R0956201 | APSOKARDU LAUREN BALOGH |
| Account | Parcel | Account Type | Tax Year | Buildings | Actual Value | Local Govt Assessed Value | School Assessed Value |
|---|---|---|---|---|---|---|---|
| R0956201 | 131304057002 | Residential | 2026 | 1 | 952,375 | 59,520 | 67,140 |
| Reception | Rec Date | Type | Grantor | Grantee | Doc Fee | Sale Date | Sale Price |
|---|---|---|---|---|---|---|---|
| 2710178 | 07-29-1999 | COZ | WELD COUNTY ZONING | CASE: Z-513 ZONING R-1, PUD | 0.00 | NA | 0 |
| 2867820 | NA | SUB | SUBDIVISION | ELMS AT MEADOW VALE 3RD FG | 0.00 | NA | 0 |
| 2888253 | 10-02-2001 | WD | ELMS LAND COMPANY LLC | GENESEE COMPANY/MEADOW VALE LLC | 495.00 | 09-14-2001 | 4,950,000 |
| 2963101 | 06-21-2002 | SWD | GENESEE COMPANY/MEADOW VALE LLC | GENESEE COMPANY LLC | 439.65 | 06-14-2002 | 4,396,500 |
| 3325581 | 09-23-2005 | SWD | GENESEE COMPANY LLC | MERTZ PETER G & | 40.59 | 06-19-2003 | 405,900 |
| 3483441 | 06-14-2007 | WD | MERTZ PETER G & | BORGER TODD J & | 55.00 | 05-25-2007 | 550,000 |
| 4882796 | 02-23-2023 | SWD | BORGER MARIANNE; BORGER TODD J | APSOKARDU MATTHEW ALLEN; APSOKARDU LAUREN BALOGH | 83.00 | 02-15-2023 | 830,000 |
*If the hyperlink for the reception number does not work, try a manual search in the Clerk and Recorder records. Use the Grantor or Grantee in your search.
| Account | Parcel | Account Type | Tax Year | Buildings | Actual Value | Local Govt Assessed Value | School Assessed Value |
|---|---|---|---|---|---|---|---|
| R0956201 | 131304057002 | Residential | 2026 | 1 | 952,375 | 59,520 | 67,140 |
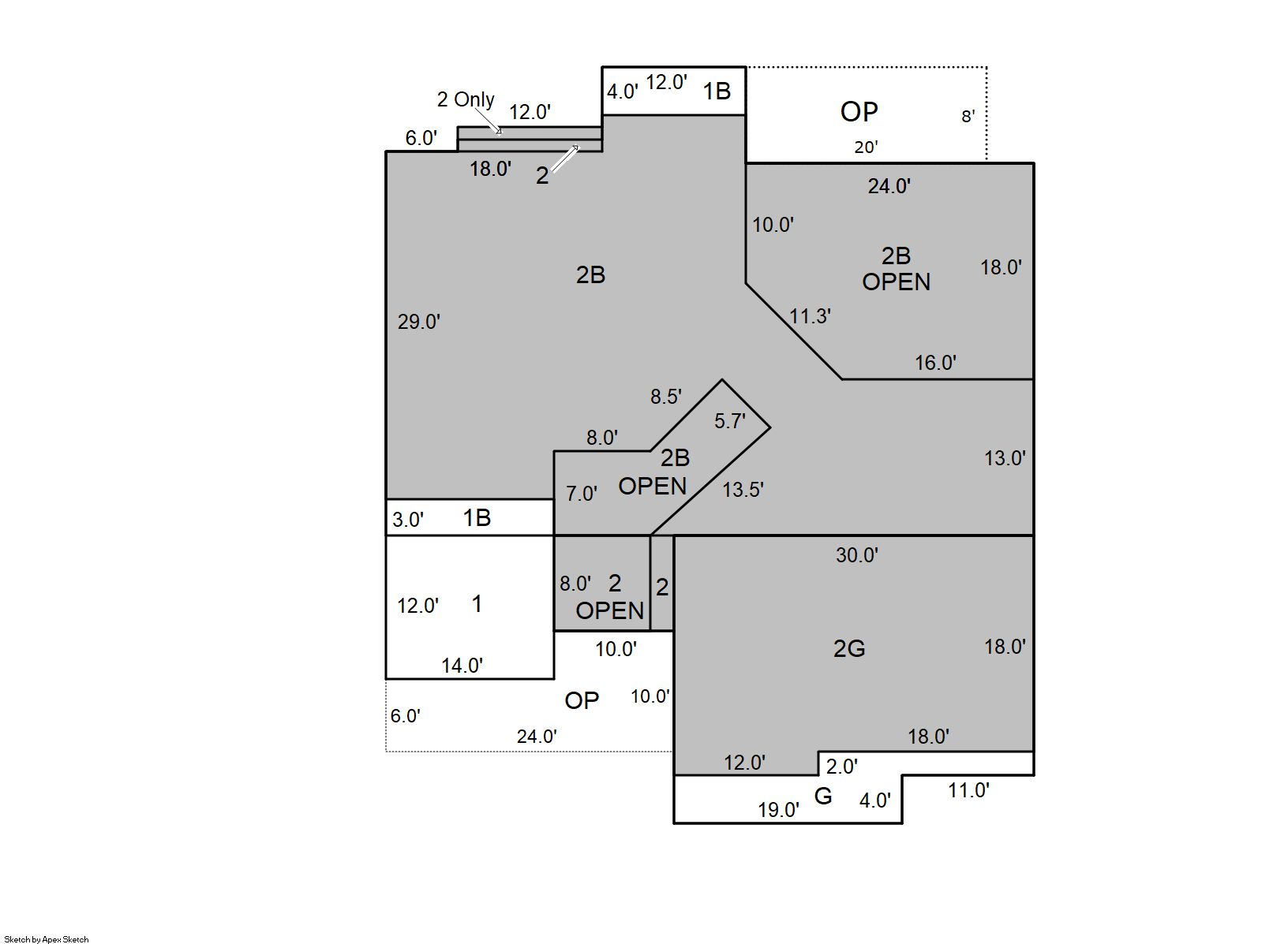
Building 1
| AccountNo | Building ID | Occupancy |
|---|---|---|
| R0956201 | 1 | Single Family Residential |
| ID | Type | NBHD | Occupancy | % Complete | Bedrooms | Baths |
|---|---|---|---|---|---|---|
| 1 | Residential | 3R1042 | Single Family Residential | 100 | 5 | 5.00 |
| ID | Exterior | Roof Cover | Interior | HVAC | Perimeter | Units | Unit Type | Make |
|---|---|---|---|---|---|---|---|---|
| 1 | Frame Siding | Composition Shingle | Drywall | Central Air to Air | 590 | 0 | NA | NA |
| ID | Square Ft | Condo SF | Total Basement SF | Finished Basement SF | Garage SF | Carport SF | Balcony SF | Porch SF |
|---|---|---|---|---|---|---|---|---|
| 1 | 3,835 | 0 | 1,788 | 1,788 | 676 | 0 | 0 | 344 |
| ID | Built As | Square Ft | Year Built | Stories | Length | Width |
|---|---|---|---|---|---|---|
| 1.00 | 2 Story | 3,835 | 2002 | 2 | 0 | 0 |
| ID | Detail Type | Description | Units |
|---|---|---|---|
| 1 | Add On | Fireplace Gas | 2.00 |
| 1 | Basement | Finished | 1788.00 |
| 1 | Basement | Total Basement SF | 1788.00 |
| 1 | Fixture | Full Bath | 4.00 |
| 1 | Fixture | Half Bath | 1.00 |
| 1 | Fixture | Wet Bar | 1.00 |
| 1 | Garage | Built In | 676.00 |
| 1 | Porch | Slab Roof Ceil | 344.00 |
| Account | Parcel | Account Type | Tax Year | Buildings | Actual Value | Local Govt Assessed Value | School Assessed Value |
|---|---|---|---|---|---|---|---|
| R0956201 | 131304057002 | Residential | 2026 | 1 | 952,375 | 59,520 | 67,140 |
| Type | Code | Description | Actual Value | Local Govt Assessed Value | School Assessed Value | Acres | Land SqFt |
|---|---|---|---|---|---|---|---|
| Improvement | 1212 | SINGLE FAMILY RESIDENTIAL IMPROVEMENTS | 787,375 | 49,210 | 55,510 | 0.000 | 0 |
| Land | 1112 | SINGLE FAMILY RESIDENTIAL-LAND | 165,000 | 10,310 | 11,630 | 0.259 | 11,291 |
| Totals | - | - | 952,375 | 59,520 | 67,140 | 0.259 | 11,291 |
Comparable sales for your Residential or Commercial property may be found using our SALES SEARCH TOOL
Values are updated annually on May 1st for Real Property and June 15th for Personal Property and Oil and Gas.
| Account | Parcel | Account Type | Tax Year | Buildings | Actual Value | Local Govt Assessed Value | School Assessed Value |
|---|---|---|---|---|---|---|---|
| R0956201 | 131304057002 | Residential | 2026 | 1 | 952,375 | 59,520 | 67,140 |
| Tax Area | District ID | District Name | Local Govt Mill Levy |
School Mill Levy |
Estimated Taxes |
|---|---|---|---|---|---|
| 2340 | 1050 | HIGH PLAINS LIBRARY | 3.044 | 0.000 | $181.18 |
| 2340 | 1202 | LONGMONT CONSERVATION | 0.000 | 0.000 | $0.00 |
| 2340 | 0312 | LONGS PEAK WATER | 0.000 | 0.000 | $0.00 |
| 2340 | 0512 | MOUNTAIN VIEW FIRE PROTECTION DISTRICT | 16.342 | 0.000 | $972.68 |
| 2340 | 0301 | NORTHERN COLORADO WATER (NCW) | 1.000 | 0.000 | $59.52 |
| 2340 | 0213 | SCHOOL DIST RE1J-LONGMONT | 0.000 | 57.717 | $3,875.12 |
| 2340 | 0303 | ST VRAIN LEFT HAND WATER (SVW) | 1.406 | 0.000 | $83.69 |
| 2340 | 0620 | ST VRAIN SANITATION | 0.316 | 0.000 | $18.81 |
| 2340 | 0100 | WELD COUNTY | 15.956 | 0.000 | $949.70 |
| Total | - | - | 38.064 | 57.717 | $6,140.69 |
The estimate of tax is based on the prior year mill levy and the 2025 projected assessment rates. Mill levies and tax estimates will be updated yearly on December 22nd for the current year. Additional information can be found at https://assessor.weld.gov


