Account: R1008901
April 4, 2026
| Account | Parcel | Account Type | Tax Year | Buildings | Actual Value | Local Govt Assessed Value | School Assessed Value |
|---|---|---|---|---|---|---|---|
| R1008901 | 131131117004 | Residential | 2026 | 1 | 526,124 | 32,880 | 37,090 |
| Legal |
|---|
| FRE 5MS L4 BLK5 MAPLEWOOD FG 5 |
| Subdivision | Block | Lot | Land Economic Area |
|---|---|---|---|
| MAPLEWOOD SUB FG#5 | 5 | 4 | MAPLEWOOD |
| Property Address | Property City | Section | Township | Range |
|---|---|---|---|---|
| 827 SPRUCE CT | FREDERICK | 31 | 02 | 67 |
| Account | Parcel | Account Type | Tax Year | Buildings | Actual Value | Local Govt Assessed Value | School Assessed Value |
|---|---|---|---|---|---|---|---|
| R1008901 | 131131117004 | Residential | 2026 | 1 | 526,124 | 32,880 | 37,090 |
| Account | Owner Name | Address |
|---|---|---|
| R1008901 | HALL TRACY | 827 SPRUCE CT FREDERICK, CO 805307064 |
| Account | Parcel | Account Type | Tax Year | Buildings | Actual Value | Local Govt Assessed Value | School Assessed Value |
|---|---|---|---|---|---|---|---|
| R1008901 | 131131117004 | Residential | 2026 | 1 | 526,124 | 32,880 | 37,090 |
| Reception | Rec Date | Type | Grantor | Grantee | Doc Fee | Sale Date | Sale Price |
|---|---|---|---|---|---|---|---|
| 2853437 | NA | SUB | SUBDIVISION | MAPLEWOOD FG#5 | 0.00 | NA | 0 |
| 3003702 | 11-08-2002 | SWDN | BLACKFOX REAL ESTATE GROUP LLC | HEPP ENTERPRISES LLC | 0.00 | 11-04-2002 | 0 |
| 3003703 | 11-08-2002 | SWDN | HEPP ENTERPRISES LLC | HEPP JOHN M | 0.00 | 11-04-2002 | 0 |
| 3003704 | 11-08-2002 | SWDN | HEPP JOHN M | MAPLEWOOD 5 LLC | 0.00 | 11-04-2002 | 0 |
| 3119817 | 10-23-2003 | WD | MAPLEWOOD 5 LLC | ROCK HOMES LLC | 6.90 | 10-09-2003 | 69,000 |
| 3277579 | 04-14-2005 | SWD | ROCK HOMES LLC | MERICLE MICHAEL J & | 29.30 | 04-11-2005 | 293,000 |
| 4106067 | 05-11-2015 | WD | WILLIAMS AMY L; MERICLE MICHAEL J | HALL TRACY | 28.52 | 05-08-2015 | 285,200 |
*If the hyperlink for the reception number does not work, try a manual search in the Clerk and Recorder records. Use the Grantor or Grantee in your search.
| Account | Parcel | Account Type | Tax Year | Buildings | Actual Value | Local Govt Assessed Value | School Assessed Value |
|---|---|---|---|---|---|---|---|
| R1008901 | 131131117004 | Residential | 2026 | 1 | 526,124 | 32,880 | 37,090 |
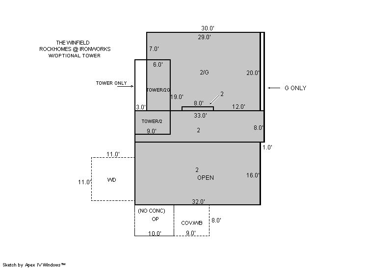
Building 1
| AccountNo | Building ID | Occupancy |
|---|---|---|
| R1008901 | 1 | Single Family Residential |
| ID | Type | NBHD | Occupancy | % Complete | Bedrooms | Baths |
|---|---|---|---|---|---|---|
| 1 | Residential | 3K3025 | Single Family Residential | 100 | 2 | 3.00 |
| ID | Exterior | Roof Cover | Interior | HVAC | Perimeter | Units | Unit Type | Make |
|---|---|---|---|---|---|---|---|---|
| 1 | Frame Vinyl | Composition Shingle | Drywall | Central Air to Air | 0 | 0 | NA | NA |
| ID | Square Ft | Condo SF | Total Basement SF | Finished Basement SF | Garage SF | Carport SF | Balcony SF | Porch SF |
|---|---|---|---|---|---|---|---|---|
| 1 | 1,799 | 0 | 0 | 0 | 592 | 0 | 72 | 80 |
| ID | Built As | Square Ft | Year Built | Stories | Length | Width |
|---|---|---|---|---|---|---|
| 1.00 | 2 Story | 1,799 | 2004 | 2 | 0 | 0 |
| ID | Detail Type | Description | Units |
|---|---|---|---|
| 1 | Add On | Fireplace Gas | 1.00 |
| 1 | Balcony | Cover Wood Balc | 72.00 |
| 1 | Fixture | Full Bath | 2.00 |
| 1 | Fixture | Half Bath | 1.00 |
| 1 | Garage | Built In | 592.00 |
| 1 | Porch | Ceiling | 80.00 |
| 1 | Porch | Wood Deck | 121.00 |
| 1 | Porch | Wood Roof | 80.00 |
| Account | Parcel | Account Type | Tax Year | Buildings | Actual Value | Local Govt Assessed Value | School Assessed Value |
|---|---|---|---|---|---|---|---|
| R1008901 | 131131117004 | Residential | 2026 | 1 | 526,124 | 32,880 | 37,090 |
| Type | Code | Description | Actual Value | Local Govt Assessed Value | School Assessed Value | Acres | Land SqFt |
|---|---|---|---|---|---|---|---|
| Improvement | 1212 | SINGLE FAMILY RESIDENTIAL IMPROVEMENTS | 406,124 | 25,380 | 28,630 | 0.000 | 0 |
| Land | 1112 | SINGLE FAMILY RESIDENTIAL-LAND | 120,000 | 7,500 | 8,460 | 0.144 | 6,270 |
| Totals | - | - | 526,124 | 32,880 | 37,090 | 0.144 | 6,270 |
Comparable sales for your Residential or Commercial property may be found using our SALES SEARCH TOOL
Values are updated annually on May 1st for Real Property and June 15th for Personal Property and Oil and Gas.
| Account | Parcel | Account Type | Tax Year | Buildings | Actual Value | Local Govt Assessed Value | School Assessed Value |
|---|---|---|---|---|---|---|---|
| R1008901 | 131131117004 | Residential | 2026 | 1 | 526,124 | 32,880 | 37,090 |
| Tax Area | District ID | District Name | Local Govt Mill Levy |
School Mill Levy |
Estimated Taxes |
|---|---|---|---|---|---|
| 1459 | 0900 | CARBON VALLEY REC | 4.427 | 0.000 | $145.56 |
| 1459 | 0408 | FREDERICK TOWN | 6.555 | 0.000 | $215.53 |
| 1459 | 0507 | FREDERICK-FIRESTONE FIRE | 15.559 | 0.000 | $511.58 |
| 1459 | 1050 | HIGH PLAINS LIBRARY | 3.044 | 0.000 | $100.09 |
| 1459 | 0301 | NORTHERN COLORADO WATER (NCW) | 1.000 | 0.000 | $32.88 |
| 1459 | 0213 | SCHOOL DIST RE1J-LONGMONT | 0.000 | 57.717 | $2,140.72 |
| 1459 | 0620 | ST VRAIN SANITATION | 0.316 | 0.000 | $10.39 |
| 1459 | 0100 | WELD COUNTY | 15.956 | 0.000 | $524.63 |
| Total | - | - | 46.857 | 57.717 | $3,681.38 |
The estimate of tax is based on the prior year mill levy and the 2025 projected assessment rates. Mill levies and tax estimates will be updated yearly on December 22nd for the current year. Additional information can be found at https://assessor.weld.gov



