Account: R1016696
April 1, 2026
| Account | Parcel | Account Type | Tax Year | Buildings | Actual Value | Local Govt Assessed Value | School Assessed Value |
|---|---|---|---|---|---|---|---|
| R1016696 | 105911242003 | Residential | 2026 | 1 | 408,858 | 25,560 | 28,830 |
| Legal |
|---|
| MIL 2WM81-3 L3 BLK81 WAL MAR 2ND SUB |
| Subdivision | Block | Lot | Land Economic Area |
|---|---|---|---|
| WAL MAR 2ND SUB | 81 | 3 | WAL MAR |
| Property Address | Property City | Section | Township | Range |
|---|---|---|---|---|
| 305 S PAULINE AVE | MILLIKEN | 11 | 04 | 67 |
| Account | Parcel | Account Type | Tax Year | Buildings | Actual Value | Local Govt Assessed Value | School Assessed Value |
|---|---|---|---|---|---|---|---|
| R1016696 | 105911242003 | Residential | 2026 | 1 | 408,858 | 25,560 | 28,830 |
| Account | Owner Name | Address |
|---|---|---|
| R1016696 | AIKEN RICHARD S | 305 S PAULINE AVE MILLIKEN, CO 805438018 |
| Account | Parcel | Account Type | Tax Year | Buildings | Actual Value | Local Govt Assessed Value | School Assessed Value |
|---|---|---|---|---|---|---|---|
| R1016696 | 105911242003 | Residential | 2026 | 1 | 408,858 | 25,560 | 28,830 |
| Reception | Rec Date | Type | Grantor | Grantee | Doc Fee | Sale Date | Sale Price |
|---|---|---|---|---|---|---|---|
| 1984759 | 10-11-1984 | PRDN | SEELE WALTER F | 0.00 | 01-01-1900 | 0 | |
| 2385993 | NA | SUB | SUBDIVISION | WAL MAR 2ND | 0.00 | NA | 0 |
| 2429110 | 03-07-1995 | WD | SEELE WALTER F | RUST CONSTRUCTION INC | 16.00 | 03-06-1995 | 160,000 |
| 2473353 | 01-25-1996 | WD | RUST CONSTRUCTION INC | VALLEJO MARCOS F & SILVIA M | 10.81 | 01-12-1996 | 108,100 |
| 2704832 | 07-07-1999 | PTD | VALLEJO MARCOS F & SILVIA M | NATIONSBANC MORTGAGE CORPORATION | 0.00 | 07-06-1999 | 0 |
| 2704833 | 07-07-1999 | SWDN | NATIONSBANC MORTGAGE CORPORATION | FEDERAL NATIONAL MORTGAGE ASSOCIATION | 0.00 | 03-31-1999 | 0 |
| 2707766 | 07-19-1999 | SWD | FEDERAL NATIONAL MORTGAGE ASSO | FLECK LISA KAY & RICHARD L JR | 12.40 | 07-16-1999 | 124,000 |
| 3927439 | 04-25-2013 | WD | FLECK LISA KEY | AIKEN RICHARD S | 15.05 | 04-23-2013 | 150,500 |
*If the hyperlink for the reception number does not work, try a manual search in the Clerk and Recorder records. Use the Grantor or Grantee in your search.
| Account | Parcel | Account Type | Tax Year | Buildings | Actual Value | Local Govt Assessed Value | School Assessed Value |
|---|---|---|---|---|---|---|---|
| R1016696 | 105911242003 | Residential | 2026 | 1 | 408,858 | 25,560 | 28,830 |
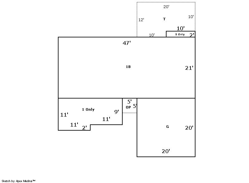
Building 1
| AccountNo | Building ID | Occupancy |
|---|---|---|
| R1016696 | 1 | Single Family Residential |
| ID | Type | NBHD | Occupancy | % Complete | Bedrooms | Baths |
|---|---|---|---|---|---|---|
| 1 | Residential | 0M2071 | Single Family Residential | 100 | 3 | 2.00 |
| ID | Exterior | Roof Cover | Interior | HVAC | Perimeter | Units | Unit Type | Make |
|---|---|---|---|---|---|---|---|---|
| 1 | Frame Hardboard | Composition Shingle | Drywall | Forced Air | 0 | 0 | NA | NA |
| ID | Square Ft | Condo SF | Total Basement SF | Finished Basement SF | Garage SF | Carport SF | Balcony SF | Porch SF |
|---|---|---|---|---|---|---|---|---|
| 1 | 1,227 | 0 | 987 | 0 | 400 | 0 | 0 | 220 |
| ID | Built As | Square Ft | Year Built | Stories | Length | Width |
|---|---|---|---|---|---|---|
| 1.00 | Ranch 1 Story | 1,227 | 1995 | 1 | 0 | 0 |
| ID | Detail Type | Description | Units |
|---|---|---|---|
| 1 | Basement | Total Basement SF | 987.00 |
| 1 | Fixture | Full Bath | 2.00 |
| 1 | Garage | Attached | 400.00 |
| 1 | Porch | Open Slab | 220.00 |
| 1 | Porch | Slab Roof Ceil | 25.00 |
| 1 | Rough In | Rough In | 1.00 |
| Account | Parcel | Account Type | Tax Year | Buildings | Actual Value | Local Govt Assessed Value | School Assessed Value |
|---|---|---|---|---|---|---|---|
| R1016696 | 105911242003 | Residential | 2026 | 1 | 408,858 | 25,560 | 28,830 |
| Type | Code | Description | Actual Value | Local Govt Assessed Value | School Assessed Value | Acres | Land SqFt |
|---|---|---|---|---|---|---|---|
| Improvement | 1212 | SINGLE FAMILY RESIDENTIAL IMPROVEMENTS | 314,858 | 19,680 | 22,200 | 0.000 | 0 |
| Land | 1112 | SINGLE FAMILY RESIDENTIAL-LAND | 94,000 | 5,880 | 6,630 | 0.190 | 8,125 |
| Totals | - | - | 408,858 | 25,560 | 28,830 | 0.190 | 8,125 |
Comparable sales for your Residential or Commercial property may be found using our SALES SEARCH TOOL
Values are updated annually on May 1st for Real Property and June 15th for Personal Property and Oil and Gas.
| Account | Parcel | Account Type | Tax Year | Buildings | Actual Value | Local Govt Assessed Value | School Assessed Value |
|---|---|---|---|---|---|---|---|
| R1016696 | 105911242003 | Residential | 2026 | 1 | 408,858 | 25,560 | 28,830 |
| Tax Area | District ID | District Name | Local Govt Mill Levy |
School Mill Levy |
Estimated Taxes |
|---|---|---|---|---|---|
| 5731 | 0700 | AIMS JUNIOR COLLEGE | 6.313 | 0.000 | $161.36 |
| 5731 | 0510 | FRONT RANGE FIRE RESCUE FIRE PROTECTION DISTRICT | 11.483 | 0.000 | $293.51 |
| 5731 | 1050 | HIGH PLAINS LIBRARY | 3.044 | 0.000 | $77.80 |
| 5731 | 0306 | LITTLE THOMPSON WATER (LTW) | 0.000 | 0.000 | $0.00 |
| 5731 | 0421 | MILLIKEN TOWN | 26.301 | 0.000 | $672.25 |
| 5731 | 0301 | NORTHERN COLORADO WATER (NCW) | 1.000 | 0.000 | $25.56 |
| 5731 | 0205 | SCHOOL DIST RE5J-JOHNSTOWN | 0.000 | 36.271 | $1,045.69 |
| 5731 | 0901 | THOMPSON RIVER REC | 3.594 | 0.000 | $91.86 |
| 5731 | 0100 | WELD COUNTY | 15.956 | 0.000 | $407.84 |
| Total | - | - | 67.691 | 36.271 | $2,775.87 |
The estimate of tax is based on the prior year mill levy and the 2025 projected assessment rates. Mill levies and tax estimates will be updated yearly on December 22nd for the current year. Additional information can be found at https://assessor.weld.gov



