Account: R1029296
April 5, 2026
| Account | Parcel | Account Type | Tax Year | Buildings | Actual Value | Local Govt Assessed Value | School Assessed Value |
|---|---|---|---|---|---|---|---|
| R1029296 | 105908101091 | Residential | 2026 | 1 | 511,301 | 31,950 | 36,050 |
| Legal |
|---|
| JOH 3JC-91 L91 JOHNSTOWN CENTER 3RD ADD |
| Subdivision | Block | Lot | Land Economic Area |
|---|---|---|---|
| JOHNSTOWN CENTER 3RD ADD | 91 | JOHNSTOWN CENTER |
| Property Address | Property City | Section | Township | Range |
|---|---|---|---|---|
| 635 TORREY PINES LN | JOHNSTOWN | 08 | 04 | 67 |
| Account | Parcel | Account Type | Tax Year | Buildings | Actual Value | Local Govt Assessed Value | School Assessed Value |
|---|---|---|---|---|---|---|---|
| R1029296 | 105908101091 | Residential | 2026 | 1 | 511,301 | 31,950 | 36,050 |
| Account | Owner Name | Address |
|---|---|---|
| R1029296 | HANCOCK SUZAN B | 635 TORREY PINES LN JOHNSTOWN, CO 805349048 |
| R1029296 | FAIROW RYAN | |
| R1029296 | PATTERSON ROCKY L |
| Account | Parcel | Account Type | Tax Year | Buildings | Actual Value | Local Govt Assessed Value | School Assessed Value |
|---|---|---|---|---|---|---|---|
| R1029296 | 105908101091 | Residential | 2026 | 1 | 511,301 | 31,950 | 36,050 |
| Reception | Rec Date | Type | Grantor | Grantee | Doc Fee | Sale Date | Sale Price |
|---|---|---|---|---|---|---|---|
| 2407309 | 09-20-1994 | WDN | JOHNSTOWN CENTER LLC | 0.00 | 01-01-1900 | 0 | |
| 2439090 | NA | SUB | SUBDIVISION | JOHNSTOWN CENTER 3RD ADD | 0.00 | NA | 0 |
| 2453654 | 08-31-1995 | WD | JOHNSTOWN CENTER LLC | DOW RANDLEMAN TRUST | 4.14 | 08-28-1995 | 41,400 |
| 2476717 | 02-16-1996 | WDN | DOW RANDLEMAN TRUST | HOCHSTETLER WAYNE A | 0.00 | 01-31-1996 | 0 |
| 2506731 | 08-16-1996 | WDN | HOCHSTETLER WAYNE A | WALZ JOHN & | 0.00 | 08-09-1996 | 0 |
| 2506732 | 08-16-1996 | WD | WALZ JOHN & | SEIGERWALD SKIP | 11.67 | 08-09-1996 | 116,700 |
| 3211356 | 08-20-2004 | QCN | STEIGERWALD SKIP | STEIGERWALD SKIP & | 0.00 | 08-06-2004 | 0 |
| 3667629 | 12-30-2009 | PTD | STEIGERWALD TAMIE ELAINE STEIGERWALD SKIP & | C-BASS TRUST 2006 CB9 C-BASS MORTGAGE | 0.00 | 12-29-2009 | 0 |
| 3686834 | 04-14-2010 | SWD | C-BASS MORTGAGE LOAN CERT C/O BANK NEW YORK MELLON | CHESHER HOLLY ELIZABETH & CHESHER SAMUEL TIMOTHY | 15.70 | 02-23-2010 | 157,000 |
| 3909226 | 02-11-2013 | QCN | CHESHER SAMUEL TIMOTHY | CHESHER ERIK | 0.00 | 01-25-2013 | 0 |
| 4148595 | 10-08-2015 | DTHC | CHESHER HOLLY | CHESHER HOLLY | 0.00 | 02-17-2015 | 0 |
| 4148597 | 10-08-2015 | PRD | CHESHER ERIK | RODRIGUEZ RAYMUNDO; RODRIGUEZ CYNTHIA | 26.75 | 09-08-2015 | 267,500 |
| 4313963 | 06-28-2017 | QCN | RODRIGUEZ RAYMUNDO; RODRIGUEZ CYNTHIA | URIBE RAYMUNDO RODRIGUEZ:RODRIGUEZ CYNTHIA | 0.00 | 06-21-2017 | 0 |
| 4774475 | 11-09-2021 | SWD | RODRIGUEZ CYNTHIA; URIBE RAYMUNDO RODRIGUEZ | HANCOCK SUZAN B; PATTERSON ROCKY L; FAIROW RYAN | 43.00 | 11-08-2021 | 430,000 |
*If the hyperlink for the reception number does not work, try a manual search in the Clerk and Recorder records. Use the Grantor or Grantee in your search.
| Account | Parcel | Account Type | Tax Year | Buildings | Actual Value | Local Govt Assessed Value | School Assessed Value |
|---|---|---|---|---|---|---|---|
| R1029296 | 105908101091 | Residential | 2026 | 1 | 511,301 | 31,950 | 36,050 |
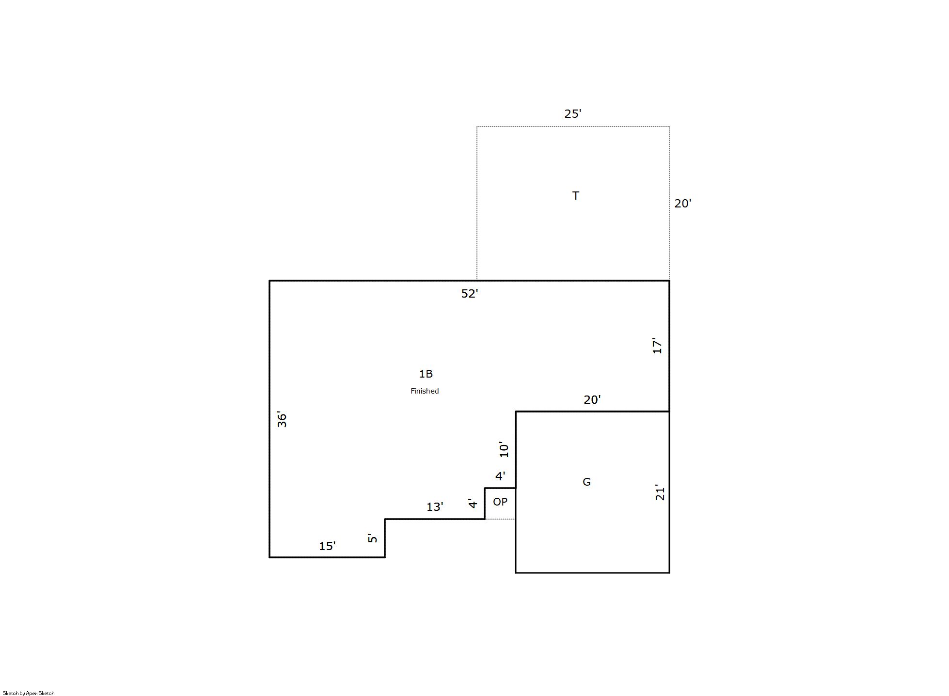
Building 1
| AccountNo | Building ID | Occupancy |
|---|---|---|
| R1029296 | 1 | Single Family Residential |
| ID | Type | NBHD | Occupancy | % Complete | Bedrooms | Baths |
|---|---|---|---|---|---|---|
| 1 | Residential | 0J1077 | Single Family Residential | 100 | 4 | 3.00 |
| ID | Exterior | Roof Cover | Interior | HVAC | Perimeter | Units | Unit Type | Make |
|---|---|---|---|---|---|---|---|---|
| 1 | Frame Hardboard | Composition Shingle | Drywall | Central Air to Air | 176 | 0 | NA | NA |
| ID | Square Ft | Condo SF | Total Basement SF | Finished Basement SF | Garage SF | Carport SF | Balcony SF | Porch SF |
|---|---|---|---|---|---|---|---|---|
| 1 | 1,391 | 0 | 1,391 | 1,391 | 420 | 0 | 0 | 500 |
| ID | Built As | Square Ft | Year Built | Stories | Length | Width |
|---|---|---|---|---|---|---|
| 1.00 | Ranch 1 Story | 1,391 | 1995 | 1 | 0 | 0 |
| ID | Detail Type | Description | Units |
|---|---|---|---|
| 1 | Add On | Fireplace Gas | 1.00 |
| 1 | Basement | Finished | 1391.00 |
| 1 | Basement | Total Basement SF | 1391.00 |
| 1 | Fixture | Full Bath | 3.00 |
| 1 | Garage | Attached | 420.00 |
| 1 | Porch | Open Slab | 500.00 |
| 1 | Porch | Slab Roof Ceil | 16.00 |
| Account | Parcel | Account Type | Tax Year | Buildings | Actual Value | Local Govt Assessed Value | School Assessed Value |
|---|---|---|---|---|---|---|---|
| R1029296 | 105908101091 | Residential | 2026 | 1 | 511,301 | 31,950 | 36,050 |
| Type | Code | Description | Actual Value | Local Govt Assessed Value | School Assessed Value | Acres | Land SqFt |
|---|---|---|---|---|---|---|---|
| Improvement | 1212 | SINGLE FAMILY RESIDENTIAL IMPROVEMENTS | 398,301 | 24,890 | 28,080 | 0.000 | 0 |
| Land | 1112 | SINGLE FAMILY RESIDENTIAL-LAND | 113,000 | 7,060 | 7,970 | 0.140 | 6,100 |
| Totals | - | - | 511,301 | 31,950 | 36,050 | 0.140 | 6,100 |
Comparable sales for your Residential or Commercial property may be found using our SALES SEARCH TOOL
Values are updated annually on May 1st for Real Property and June 15th for Personal Property and Oil and Gas.
| Account | Parcel | Account Type | Tax Year | Buildings | Actual Value | Local Govt Assessed Value | School Assessed Value |
|---|---|---|---|---|---|---|---|
| R1029296 | 105908101091 | Residential | 2026 | 1 | 511,301 | 31,950 | 36,050 |
| Tax Area | District ID | District Name | Local Govt Mill Levy |
School Mill Levy |
Estimated Taxes |
|---|---|---|---|---|---|
| 0567 | 0700 | AIMS JUNIOR COLLEGE | 6.313 | 0.000 | $201.70 |
| 0567 | 0510 | FRONT RANGE FIRE RESCUE FIRE PROTECTION DISTRICT | 11.483 | 0.000 | $366.88 |
| 0567 | 0414 | JOHNSTOWN TOWN | 23.947 | 0.000 | $765.11 |
| 0567 | 0301 | NORTHERN COLORADO WATER (NCW) | 1.000 | 0.000 | $31.95 |
| 0567 | 0205 | SCHOOL DIST RE5J-JOHNSTOWN | 0.000 | 36.271 | $1,307.57 |
| 0567 | 0901 | THOMPSON RIVER REC | 3.594 | 0.000 | $114.83 |
| 0567 | 0100 | WELD COUNTY | 15.956 | 0.000 | $509.79 |
| Total | - | - | 62.293 | 36.271 | $3,297.83 |
The estimate of tax is based on the prior year mill levy and the 2025 projected assessment rates. Mill levies and tax estimates will be updated yearly on December 22nd for the current year. Additional information can be found at https://assessor.weld.gov


