Account: R1050602

April 2, 2026

Account Parcel Account Type Tax Year Buildings Actual Value Local Govt Assessed Value School Assessed Value
R1050602 096116109010 Residential 2026 1 329,344 20,580 23,220

Legal
GR 2BV L5A BLK3 BALSAM VILLAGE 2ND FG

Subdivision Block Lot Land Economic Area
BALSAM VILLAGE 2ND FG 3 5A BALSAM VILLAGE

Property Address Property City Section Township Range
850 E 20TH STREET RD GREELEY 16 05 65




Account Parcel Account Type Tax Year Buildings Actual Value Local Govt Assessed Value School Assessed Value
R1050602 096116109010 Residential 2026 1 329,344 20,580 23,220

Account Owner Name Address
R1050602 CUEVAS BREZA MAYRA 850 E 20TH STREET RD GREELEY, CO 806316169


Account Parcel Account Type Tax Year Buildings Actual Value Local Govt Assessed Value School Assessed Value
R1050602 096116109010 Residential 2026 1 329,344 20,580 23,220

Reception Rec Date Type Grantor Grantee Doc Fee Sale Date Sale Price
2863869 NA SUB SUBDIVISION BALSAM VILLAGE 2ND FG 0.00 NA 0
2932690 03-13-2002 WD BALSAM VILLAGE II LLC J & J CONSTRUCTION OF NORTHERN CO LLC 79.10 03-12-2002 791,000
2992507 10-02-2002 WD J & J CONSTRUCTION OF NORTHERN COLO LLC SILVA ANA M 11.86 09-30-2002 118,600
3811606 12-13-2011 PTD SILVA ANA M WELLS FARGO BANK N A 0.00 12-12-2011 0
3839524 04-17-2012 SWDN WELLS FARGO BANK NA USA HUD 0.00 12-13-2011 0
3859605 07-18-2012 SWD USA HUD AVITIA ERIKA 0.00 07-16-2012 65,000
4246998 10-21-2016 WD AVITIA ERIKA OLAVE MARTHA 7.60 10-17-2016 76,000
4566210 02-12-2020 WD OLAVE MARTHA MORENO SELENA 24.99 02-11-2020 249,900
5025791 04-28-2025 SWD MORENO SELENA 850 E 20TH STREET RD LLC 27.25 04-28-2025 272,500
5056056 09-29-2025 WD 850 E 20TH STREET RD LLC CUEVAS BREZA MAYRA 35.50 09-25-2025 355,000



Account Parcel Account Type Tax Year Buildings Actual Value Local Govt Assessed Value School Assessed Value
R1050602 096116109010 Residential 2026 1 329,344 20,580 23,220

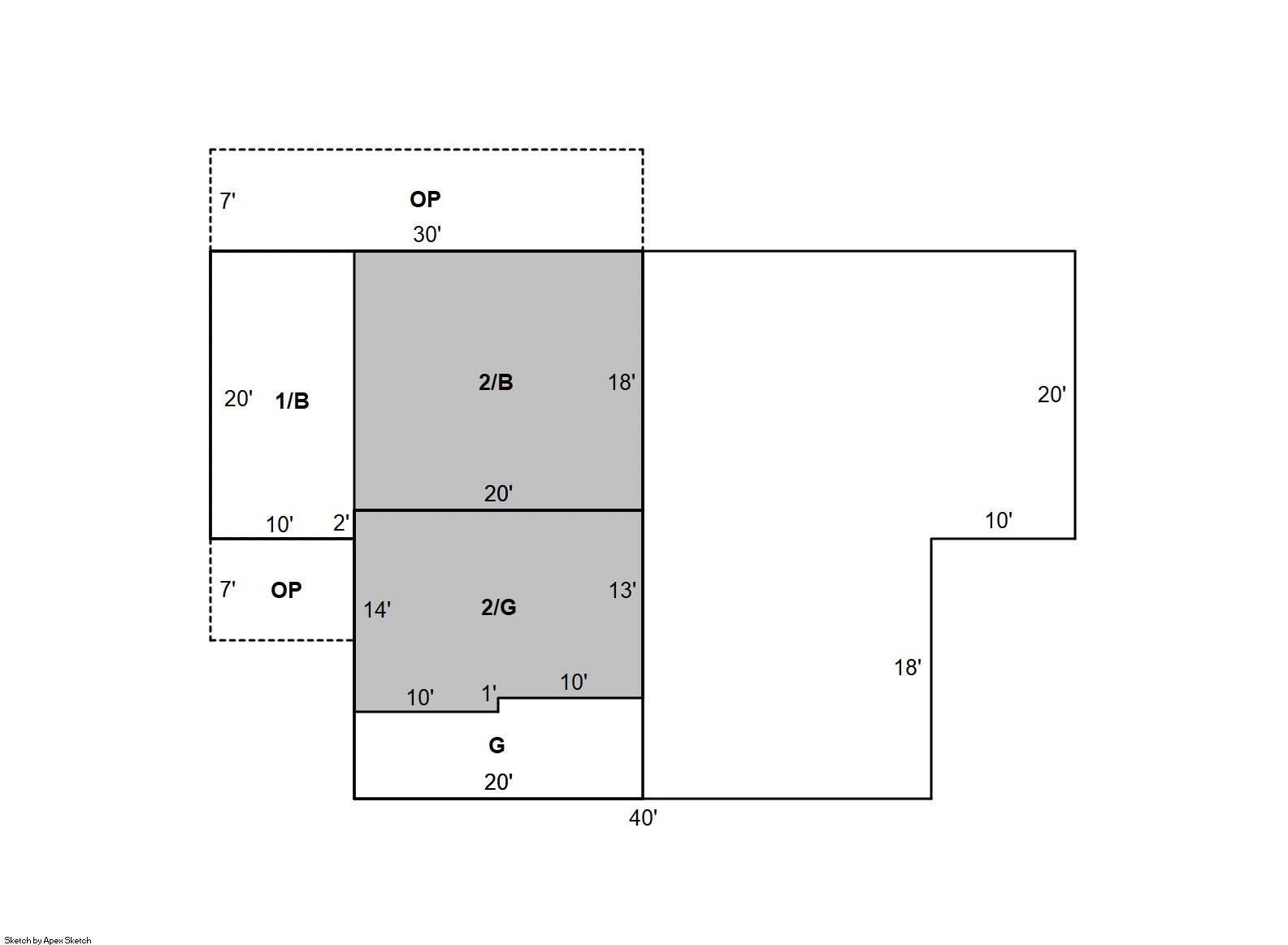
Building 1

AccountNo Building ID Occupancy
R1050602 1 Duplex


ID Type NBHD Occupancy % Complete Bedrooms Baths
1 Duplex 6G0035 Duplex 100 4 3.00


ID Exterior Roof Cover Interior HVAC Perimeter Units Unit Type Make
1 Frame Hardboard Composition Shingle Drywall Central Air to Air 204 1 End NA


ID Square Ft Condo SF Total Basement SF Finished Basement SF Garage SF Carport SF Balcony SF Porch SF
1 1,190 0 560 560 400 0 0 280


Built As Details for Building 1
ID Built As Square Ft Year Built Stories Length Width
1.00 Duplex Two Story 1,190 2002 2 0 0


Additional Details for Building 1
ID Detail Type Description Units
1 Basement Finished 560.00
1 Basement Total Basement SF 560.00
1 Fixture Full Bath 2.00
1 Fixture Half Bath 1.00
1 Garage Attached 400.00
1 Porch Slab Roof Ceil 280.00





Account Parcel Account Type Tax Year Buildings Actual Value Local Govt Assessed Value School Assessed Value
R1050602 096116109010 Residential 2026 1 329,344 20,580 23,220

Type Code Description Actual Value Local Govt Assessed Value School Assessed Value Acres Land SqFt
Improvement 1212 SINGLE FAMILY RESIDENTIAL IMPROVEMENTS 272,344 17,020 19,200 0.000 0
Land 1112 SINGLE FAMILY RESIDENTIAL-LAND 57,000 3,560 4,020 0.081 3,532
Totals - - 329,344 20,580 23,220 0.081 3,532


Account Parcel Account Type Tax Year Buildings Actual Value Local Govt Assessed Value School Assessed Value
R1050602 096116109010 Residential 2026 1 329,344 20,580 23,220

Tax Area District ID District Name Local Govt
Mill Levy
School
Mill Levy
Estimated
Taxes
0600 0700 AIMS JUNIOR COLLEGE 6.313 0.000 $129.92
0600 0411 GREELEY CITY 11.274 0.000 $232.02
0600 1050 HIGH PLAINS LIBRARY 3.044 0.000 $62.65
0600 0301 NORTHERN COLORADO WATER (NCW) 1.000 0.000 $20.58
0600 0206 SCHOOL DIST 6-GREELEY 0.000 47.615 $1,105.62
0600 0100 WELD COUNTY 15.956 0.000 $328.37
Total - - 37.587 47.615 $1,879.16


The estimate of tax is based on the prior year mill levy and the 2025 projected assessment rates. Mill levies and tax estimates will be updated yearly on December 22nd for the current year. Additional information can be found at https://assessor.weld.gov










Select Reports to Print: